TE KOOP IN De Pinte Azaleastraat 4
€ 407.046
Een pand van Vastgoed Speybroeck
Overzicht
- 618 m² grond
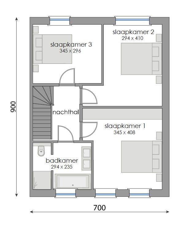
- 3 Slaapkamer(s)
- 1 Badkamer(s)
- 2 Toilet(ten)
Beschrijving
TE KOOP IN De Pinte Azaleastraat 4
Mooi gelegen perceel bouwgrond voor het bouwen van een half - open bebouwing.
Prijs grond ( Lot 7 ) : € 203.940 Opp.: 618 m²
FORMULE WATER- EN WINDDICHT:
- Ruwbouwwerken
- Timmerwerken
- PVC ramen met beglazing kw 1.0
- Dak- & zinkwerken
_________________
= € 203.106 excl. btw
OPTIE AFWERKING:
- Elektriciteit en ventilatie
- Chape -en vloerisolatie
- Pleisterwerken
- Sanitaire werken ( HW toestellen = € 4.000 excl. btw )
- Warmtepomp lucht/water ( Viessmann )
- Bevloering ( HW vloer : 35€/m² HW plinten : 12.50€/lm HW wandtegels : 25€/m² )
- Keukeninstallatie ( HW = € 8.000 excl. btw)
- Binnen schrijnwerk
- Voegwerken
- Blowerdoortest
- Zonnepanelen 8st. ( Wp 435 )
_________________
= € 95.580 excl.btw
WIJ BOUWEN OOK A LA CARTE
Opties zijn mogelijk tot net voor " Normale Bewoonbaarheid" (volgens aannemingsovereenkomst)
Informeer naar onze interessante HUISRUIL-FORMULE
zie ook : WWW.SPEYBROECK.BE
Bel 0473 300 700 of GRATIS 0800 15 700
Mooi gelegen perceel bouwgrond voor het bouwen van een half - open bebouwing.
Prijs grond ( Lot 7 ) : € 203.940 Opp.: 618 m²
FORMULE WATER- EN WINDDICHT:
- Ruwbouwwerken
- Timmerwerken
- PVC ramen met beglazing kw 1.0
- Dak- & zinkwerken
_________________
= € 203.106 excl. btw
OPTIE AFWERKING:
- Elektriciteit en ventilatie
- Chape -en vloerisolatie
- Pleisterwerken
- Sanitaire werken ( HW toestellen = € 4.000 excl. btw )
- Warmtepomp lucht/water ( Viessmann )
- Bevloering ( HW vloer : 35€/m² HW plinten : 12.50€/lm HW wandtegels : 25€/m² )
- Keukeninstallatie ( HW = € 8.000 excl. btw)
- Binnen schrijnwerk
- Voegwerken
- Blowerdoortest
- Zonnepanelen 8st. ( Wp 435 )
_________________
= € 95.580 excl.btw
WIJ BOUWEN OOK A LA CARTE
Opties zijn mogelijk tot net voor " Normale Bewoonbaarheid" (volgens aannemingsovereenkomst)
Informeer naar onze interessante HUISRUIL-FORMULE
zie ook : WWW.SPEYBROECK.BE
Bel 0473 300 700 of GRATIS 0800 15 700
Energie
- E-peil: E15
- Beglazing: Standaard dubbel
Op de kaart

Financieel
| Prijs |
|---|
Bijkomende info
Gebouw
| Bouwjaar | 2026 |
|---|---|
| Staat | Nieuw |
| Verdieping | 0 |
| Badkamers | 1 |
| Slaapkamers | 3 |
| Verdiepingen | 0 |
| Garages | 0 |
| Parkeerplaatsen | 0 |
| Toiletten | 2 |
Faciliteiten
| Keuken uitrusting | Goed uitgerust |
|---|---|
| Beglazing | Standaard dubbel |
| Septische tank | Ja |
Perceel
| Overstromingsgevoelig | Geen |
|---|---|
| Totale oppervlakte (m²) | 618 |
| Bebouwde oppervlakte (m²) | 0 |
Vergunning
| Verkavelingsvergunning | Geen beschikbaar |
|---|
Uitrusting
| Investeringspand | Nee |
|---|---|
| Parking | Nee |
| Garage | Nee |
| Lift | Nee |
| Rioolaansluiting | Nee |
| Gasaansluiting | Nee |
| Wateraansluiting | Nee |
| Elektriciteitsaansluiting | Nee |
| Internetaansluiting | Nee |
| Telefoonaansluiting | Nee |
| Zonnepanelen | Ja |
| Zonneboiler | Nee |
| Alarm | Nee |
| Videofoon | Nee |
| Grondwaterput | Ja |
Een pand van
Vastgoed Speybroeck
Vastgoed SPEYBROECK
We schrijven 1971, Antoine Speybroeck start met "WONINGBOUW SPEYBROECK", tot op heden nog steeds een echt familiebedrijf en heeft -met een bouwtraditie van vier generaties- de tand des tijds ruim doorstaan.
Wat ooit begon als een éénmanszaak, groeide al snel uit tot een moderne familieonderneming waar normen en waarden hoog in het vaandel werden gedragen.
Dat vertaalt zich vandaag in een unieke combinatie van professionalisme en een doorgedreven persoonlijke benadering van de kandidaatbouwer. Samen met een vakkundig team zullen Stefaan en Isabella Speybroeck u bijstaan in de zoektocht naar uw droomhuis.
Met ons "huisruil"-concept kunnen wij u bovendien onze diensten aanbieden zowel als bouwbedrijf als vastgoedmakelaar. Deze verkoopformule is uniek in België. Wij verkopen uw bestaande woning en bouwen op korte tijd een nieuwe woning voor u.
We hopen u binnenkort welkom te mogen heten voor de bespreking van uw bouwplannen!
4192218
Leer meer over vastgoed
Nieuw
24 November 2025
Uitgezocht voor jouw gemeente: Hoeveel stijgt de waarde van je woning door een renovatie?
22 October 2025
Hoeveel kan ik lenen om een huis te kopen?
11 June 2025
Huis kopen met bouwovertreding? Dit moet je weten
11 May 2025