Instapklare, gerenoveerde villa met zicht op natuur te koop
€ 530.000
Een pand van Casteels vastgoed
Overzicht
- 161 m² bewoonbaar
- 657 m² grond
- 3 Slaapkamer(s)
- 1 Badkamer(s)
- 3 Toilet(ten)
- 1 Garage(s)
Beschrijving
Contacteer Louis op 09 396 10 22 of via louis@casteelsvastgoed.be
Dossierstukken en plannen steeds beschikbaar op onze website
__
Op zoek naar een moderne, energiezuinige woning waar je enkel nog je koffers hoeft uit te pakken? Ontdek deze prachtig gerenoveerde villa in de Dreef 20 te Merendree.
Tussen 2020 en vandaag werd deze woning volledig vernieuwd met oog voor esthetiek, comfort en energiezuinigheid.
Lichte, open leefruimte met woonkamer, eetplaats en keuken in één harmonieus geheel. Grote schuiframen bieden veel daglicht en zicht op de tuin. De volledig uitgeruste keuken is ideaal voor wie graag kookt. Verder: berging, technische ruimte en garage met rechtstreekse toegang.
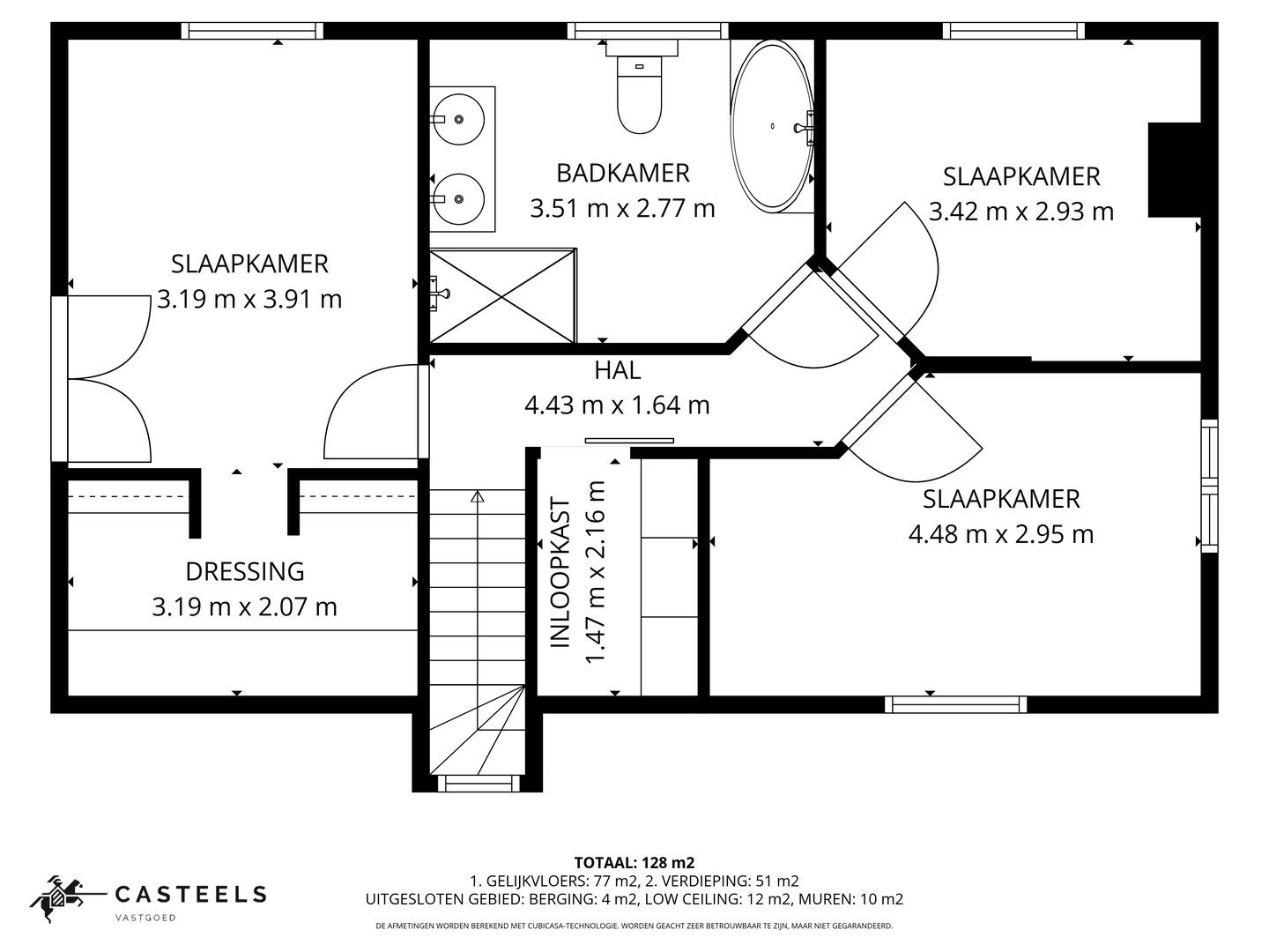
Drie slaapkamers, waaronder een ruime master bedroom met dressing. Vernieuwde badkamer met bad, douche en kwalitatieve afwerking. Extra berging en zolder over de volledige woning.
Perceel van 680 m² met bewoonbare oppervlakte van ca. 160 m². nieuw aangelegde tuin , oprit met carport en fietsenberging, plus laadpaal voor elektrische wagens.
Energiezuinig
Dankzij muurisolatie, nieuwe ramen met hoogrendementsglas, ventilatiesysteem, nieuwe ketel en zonnepanelen behaalt de woning een gunstig EPC-label B, is asbestvrij en klaar voor de toekomst.
Rustige, kindvriendelijke buurt aan de rand van het natuurgebied Oude Kalevallei, met wandel- en fietsroutes om de hoek. De ideale combinatie van natuur, rust en bereikbaarheid ( school en winkels op wandelafstand).
Dossierstukken en plannen steeds beschikbaar op onze website
__
Op zoek naar een moderne, energiezuinige woning waar je enkel nog je koffers hoeft uit te pakken? Ontdek deze prachtig gerenoveerde villa in de Dreef 20 te Merendree.
Tussen 2020 en vandaag werd deze woning volledig vernieuwd met oog voor esthetiek, comfort en energiezuinigheid.
Lichte, open leefruimte met woonkamer, eetplaats en keuken in één harmonieus geheel. Grote schuiframen bieden veel daglicht en zicht op de tuin. De volledig uitgeruste keuken is ideaal voor wie graag kookt. Verder: berging, technische ruimte en garage met rechtstreekse toegang.
Drie slaapkamers, waaronder een ruime master bedroom met dressing. Vernieuwde badkamer met bad, douche en kwalitatieve afwerking. Extra berging en zolder over de volledige woning.
Perceel van 680 m² met bewoonbare oppervlakte van ca. 160 m². nieuw aangelegde tuin , oprit met carport en fietsenberging, plus laadpaal voor elektrische wagens.
Energiezuinig
Dankzij muurisolatie, nieuwe ramen met hoogrendementsglas, ventilatiesysteem, nieuwe ketel en zonnepanelen behaalt de woning een gunstig EPC-label B, is asbestvrij en klaar voor de toekomst.
Rustige, kindvriendelijke buurt aan de rand van het natuurgebied Oude Kalevallei, met wandel- en fietsroutes om de hoek. De ideale combinatie van natuur, rust en bereikbaarheid ( school en winkels op wandelafstand).
Op zoek naar een moderne, energiezuinige woning waar je enkel nog je koffers moet uitpakken?
Ontdek deze prachtig gerenoveerde villa in de Dreef 20 te Merendree.
Deze woning werd tussen 2020 en vandaag volledig vernieuwd, met oog voor esthetiek, comfort én energiezuinigheid.
Gelijkvloers
Bij het binnenkomen valt meteen de lichte en open leefruimte op, waar woonkamer, eetplaats en keuken één harmonieus geheel vormen. De grote schuiframen zorgen voor overvloedig daglicht en een mooi zicht op de tuin.
De volledig uitgeruste keuken is de ideale plek voor wie graag kookt en geniet met familie of vrienden.
Aansluitend vind je nog een handige bergruimte, technische ruimte en garage met directe toegang tot de woning.
Verdieping 1
Op de eerste verdieping bevinden zich drie slaapkamers, waaronder een ruime master bedroom met dressing.
De volledig vernieuwde badkamer is uitgerust met zowel bad als douche en afgewerkt met kwalitatieve materialen.
Daarnaast is er nog een praktische bergruimte en een ruime zolder die zich over de volledige woning uitstrekt.
Buitenruimte en extra troeven
De woning is gelegen op een perceel van 680 m² met een bewoonbare oppervlakte van ca. 160 m².
Buiten geniet je van een nieuwe aangelegde tuin en naast de oprit is er een carport en fietsenberging voorzien.
Verder beschikt de woning over een laadpaal voor elektrische wagens.
Energiezuinig wonen
Tijdens de renovatie werd sterk ingezet op energieprestaties:
Het resultaat? Een gunstig EPC-label B, geen asbest en een woning die klaar is voor de toekomst.
Ligging
De woning is gelegen in een rustige en kindvriendelijke buurt vlak aan het prachtige natuurgebied van de Oude Kalevallei. Hier woon je te midden van het groen, met talloze wandel- en fietsroutes letterlijk om de hoek. Daarnaast vind je er een school en verschillende winkels op wandelafstand. De ideale combinatie van natuur, rust en bereikbaarheid.
Deze woning combineert moderne afwerking, energiezuinigheid en een unieke ligging aan de rand van een natuurgebied. De perfecte thuis voor wie houdt van comfort en een vleugje natuur.
Ontdek deze prachtig gerenoveerde villa in de Dreef 20 te Merendree.
Deze woning werd tussen 2020 en vandaag volledig vernieuwd, met oog voor esthetiek, comfort én energiezuinigheid.
Gelijkvloers
Bij het binnenkomen valt meteen de lichte en open leefruimte op, waar woonkamer, eetplaats en keuken één harmonieus geheel vormen. De grote schuiframen zorgen voor overvloedig daglicht en een mooi zicht op de tuin.
De volledig uitgeruste keuken is de ideale plek voor wie graag kookt en geniet met familie of vrienden.
Aansluitend vind je nog een handige bergruimte, technische ruimte en garage met directe toegang tot de woning.
Verdieping 1
Op de eerste verdieping bevinden zich drie slaapkamers, waaronder een ruime master bedroom met dressing.
De volledig vernieuwde badkamer is uitgerust met zowel bad als douche en afgewerkt met kwalitatieve materialen.
Daarnaast is er nog een praktische bergruimte en een ruime zolder die zich over de volledige woning uitstrekt.
Buitenruimte en extra troeven
De woning is gelegen op een perceel van 680 m² met een bewoonbare oppervlakte van ca. 160 m².
Buiten geniet je van een nieuwe aangelegde tuin en naast de oprit is er een carport en fietsenberging voorzien.
Verder beschikt de woning over een laadpaal voor elektrische wagens.
Energiezuinig wonen
Tijdens de renovatie werd sterk ingezet op energieprestaties:
- Extra muurisolatie
- Nieuwe ramen met hoogrendementsglas
- Ventilatiesysteem
- Nieuwe verwarmingsketel
- Zonnepanelen
Het resultaat? Een gunstig EPC-label B, geen asbest en een woning die klaar is voor de toekomst.
Ligging
De woning is gelegen in een rustige en kindvriendelijke buurt vlak aan het prachtige natuurgebied van de Oude Kalevallei. Hier woon je te midden van het groen, met talloze wandel- en fietsroutes letterlijk om de hoek. Daarnaast vind je er een school en verschillende winkels op wandelafstand. De ideale combinatie van natuur, rust en bereikbaarheid.
Deze woning combineert moderne afwerking, energiezuinigheid en een unieke ligging aan de rand van een natuurgebied. De perfecte thuis voor wie houdt van comfort en een vleugje natuur.
Energie
![]() |
- EPC Certificaat: 20251029-0003720701-RES-1
- Energieverbruik: 141 kWh/m²/jaar
- E-peil: E0
- Verwarming: Gas
- Beglazing: Standaard dubbel
Op de kaart

Financieel
| Prijs | |
|---|---|
| Kadastraal inkomen (niet geïndexeerd) | € 857 |
Berekening kosten
Je aankoopkosten? Die heb je snel berekent via de knop hieronder.
Bijkomende info
Gebouw
| Bouwjaar | 1998 |
|---|---|
| Renovatie jaar | 2020 |
| Bewoonbaar (m²) | 161 |
| Badkamers | 1 |
| Slaapkamers | 3 |
| Verdiepingen | 0 |
| Garages | 1 |
| Parkeerplaatsen | 0 |
| Toiletten | 3 |
Faciliteiten
| Beglazing | Standaard dubbel |
|---|---|
| Brandstof primaire verwarming | Gas |
| Septische tank | Nee |
Perceel
| Overstromingsgevoelig | Geen |
|---|---|
| P-score | A |
| G-score | A |
| Totale oppervlakte (m²) | 657 |
| Bebouwde oppervlakte (m²) | 0 |
| Oriëntatie tuin | Oost |
Vergunning
| Verkavelingsvergunning | Vergunning beschikbaar |
|---|
Uitrusting
| Investeringspand | Nee |
|---|---|
| Parking | Nee |
| Garage | Ja |
| Lift | Nee |
| Rioolaansluiting | Ja |
| Gasaansluiting | Ja |
| Wateraansluiting | Ja |
| Elektriciteitsaansluiting | Ja |
| Internetaansluiting | Ja |
| Telefoonaansluiting | Ja |
| Zonnepanelen | Ja |
| Zonneboiler | Nee |
| Alarm | Nee |
| Videofoon | Nee |
| Grondwaterput | Ja |
Een pand van
Casteels vastgoed
Vastgoedmakelaardij met een verfrissende aanpak.
Authentiek, ongedwongen en met een communicatie van mens tot mens. Als moderne vastgoedmakelaar begeleiden we jou zo naar een vlotte aankoop of verkoop van je woning. Door het verkoopproces zoveel mogelijk te optimaliseren, profiteer jij als koper of verkoper van een uitstekende dienstverlening aan een scherpe prijs. Casteels vastgoed, vastgoed dat raakt.
LT25_017_Dreef20_9850
Leer meer over vastgoed
24 November 2025
Uitgezocht voor jouw gemeente: Hoeveel stijgt de waarde van je woning door een renovatie?
22 October 2025
Hoeveel kan ik lenen om een huis te kopen?
11 June 2025
Huis kopen met bouwovertreding? Dit moet je weten
11 May 2025
