Vosselare (Deinze), Koestraat - Fase 1: Lot 04
€ 518.436
Een pand van Huysman Bouw
Overzicht
- 529 m² grond
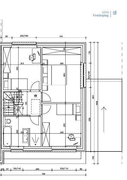
- 3 Slaapkamer(s)
- 1 Badkamer(s)
- 2 Toilet(ten)
- 1 Tuin
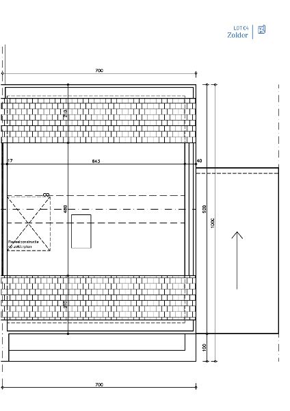
Beschrijving
Moderne halfopen nieuwbouwwoning met carport op een perceel van 529m2. De woning heeft een doordachte indeling waarbij geen enkel hoekje onbenut blijft. Op het gelijkvloers is er een inkomhal met gastentoilet, een ruime leefruimte met open keuken en een praktische was/bergplaats. Op de eerste verdieping bevinden zich 3 slaapkamers en een badkamer met bad + douche. De praktische zolder is toegankelijk met een uitschuifbare zoldertrap. De woning is gelegen in de Koestraat te Vosselare (linkerkant na ingang via de Hoogstraat). Dit is een absolute TOPlocatie nabij de oprit van de E40 in Drongen en op een boogscheut van het centrum van Nevele. In dit nieuwbouwproject bouwen we 8 nieuwbouwwoningen in eenzelfde architectuur. De interieurafwerking van iedere woning is 100% op maat. Je kiest dus zelf alle afwerkingsmaterialen a.d.h.v de ruime budgetten in het lastenboek. De woningen zijn sowieso voorzien van alle moderne technieken: standaard is een warmtepomp en vloerverwarming inbegrepen. Zie jij jezelf hier wonen? We begeleiden je graag op weg naar je nieuwe (t)huis. Bel onze bouwadviseur Ewout Vanden Bussche op 0497 588 888 of mail naar contact@huysmanbouw.be.
Energie
- E-peil: E0
- Beglazing: Onbekend
Op de kaart

Financieel
Prijs |
---|
Bijkomende info
Gebouw
Staat | Zo goed als nieuw |
---|---|
Bouwcertificaat | Ja |
Verdieping | 0 |
Badkamers | 1 |
Slaapkamers | 3 |
Verdiepingen | 0 |
Garages | 0 |
Parkeerplaatsen | 2 |
Toiletten | 2 |
Faciliteiten
Septische tank | Ja |
---|
Perceel
Overstromingsgevoelig | Geen |
---|---|
Totale oppervlakte (m²) | 529 |
Bebouwde oppervlakte (m²) | 0 |
Tuin oppervlakte (m²) | 0 |
Vergunning
Verkavelingsvergunning | Geen beschikbaar |
---|
Uitrusting
Investeringspand | Nee |
---|---|
Parking | Ja |
Garage | Nee |
Zolder | Ja |
Tuin | Ja |
Lift | Nee |
Rioolaansluiting | Ja |
Gasaansluiting | Nee |
Wateraansluiting | Ja |
Elektriciteitsaansluiting | Ja |
Internetaansluiting | Ja |
Telefoonaansluiting | Ja |
Zonnepanelen | Ja |
Zonneboiler | Nee |
Alarm | Nee |
Videofoon | Nee |
Grondwaterput | Ja |
Een pand van
Huysman Bouw
Bouwen mét vertrouwen
Huysman Bouw staat voor meer dan 50 jaar ervaring in bouwen van nieuwbouwwoningen en appartementen in Oost- en West-Vlaanderen. Wij dragen kwaliteit, flexibiliteit en klantvriendelijkheid hoog in het vaandel. Een combinatie van toplocaties, doordachte en gevarieerde architectuur en een interieur afwerking op maat maken van iedere woning een echte thuis. Jong, single, gezin of senior? Wij creëren een sleutel-op-de-deur-woning, afgewerkt appartement of bouwproject op jouw maat.
Vosselare (Deinze), Koestraat - Fase 1: Lot 04 OKT25
Leer meer over vastgoed
11 June 2025
Huis kopen met bouwovertreding? Dit moet je weten
11 May 2025
Renoveren? Vraag je Mijn VerbouwPremie aan
22 April 2025
Je allereerste renovatieproject selecteren én budgetteren: met de praktische hulp van Spotto
17 February 2025