Verkocht
Moderne nieuwbouwwoning in hartje Gavere !
€ 336.000
Een pand van VDS Vastgoed
Overzicht
- 171 m² bewoonbaar
- 3 Slaapkamer(s)
- 2 Badkamer(s)
- 2 Toilet(ten)
- 1 Living(s)
- 1 Tuin
Beschrijving
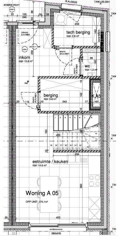
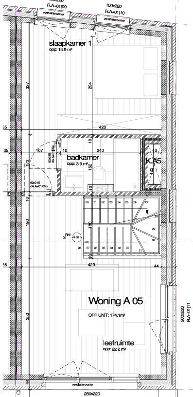
Deze moderne woning (A0.4), gelegen langs de Onderstraat in Gavere, biedt een ideale combinatie van comfort, praktische indeling en een uitstekende locatie nabij de Gaverse markt.
Indeling is als volgt:
*Gelijkvloers: Ruime inkomhal met gastentoilet, een technische berging, een volledig uitgeruste keuken met aanpalende berging, en toegang tot het terras en de tuin.
*1e verdieping: Gezellige leefruimte, een badkamer en een ruime slaapkamer.
*2e verdieping: Nachthal, tweede badkamer en twee extra slaapkamers.
Er is de mogelijkheid om een ondergrondse berging aan te kopen (prijzen vanaf € 4.500 tot € 5.500, afhankelijk van de grootte, exclusief kosten).
Ondergrondse staanplaatsen zijn ook beschikbaar en kunnen afzonderlijk worden aangekocht (€ 28.500 of € 31.000, afhankelijk van de grootte, exclusief kosten).
Prijs exclusief keuken en exclusief kosten.
Indeling is als volgt:
*Gelijkvloers: Ruime inkomhal met gastentoilet, een technische berging, een volledig uitgeruste keuken met aanpalende berging, en toegang tot het terras en de tuin.
*1e verdieping: Gezellige leefruimte, een badkamer en een ruime slaapkamer.
*2e verdieping: Nachthal, tweede badkamer en twee extra slaapkamers.
Er is de mogelijkheid om een ondergrondse berging aan te kopen (prijzen vanaf € 4.500 tot € 5.500, afhankelijk van de grootte, exclusief kosten).
Ondergrondse staanplaatsen zijn ook beschikbaar en kunnen afzonderlijk worden aangekocht (€ 28.500 of € 31.000, afhankelijk van de grootte, exclusief kosten).
Prijs exclusief keuken en exclusief kosten.
Energie
- Verwarming: Geen
- Beglazing: Onbekend
Op de kaart

Financieel
| Prijs | |
|---|---|
| Kadastraal inkomen (niet geïndexeerd) | € 0 |
| Kadastraal inkomen (geïndexeerd) | € 0 |
Bijkomende info
Gebouw
| Bouwjaar | 2024 |
|---|---|
| Is beschermd | Nee |
| Bewoonbaar (m²) | 171 |
| Badkamers | 2 |
| Slaapkamers | 3 |
| Keukens | 1 |
| Leefruimtes | 1 |
| Toiletten | 2 |
Ruimtes
| Tuin | 24 m² |
|---|---|
| Keuken | 14.6 m² |
| Leefruimte | 22.2 m² |
Faciliteiten
| Luiken | Nee |
|---|---|
| Primair verwarmingstype | Geen verwarming |
| Brandstof primaire verwarming | Geen |
| Warm water type | Geen verwarming |
Perceel
| Tuin oppervlakte (m²) | 24 |
|---|
Uitrusting
| Meerdere eigenaars | Nee |
|---|---|
| Geschikt als kangoeroewoning | Nee |
| Geschikt voor rolstoelgebruikers | Nee |
| Geschikt voor praktijk | Nee |
| Volledig onderkelderd | Nee |
| Parking | Nee |
| Garage | Nee |
| Thuiskantoor | Nee |
| Kelder | Nee |
| Zolder | Nee |
| Opslagruimte | Nee |
| Tuin | Ja |
| Terras | Nee |
| Lift | Nee |
| Rioolaansluiting | Nee |
| Gasaansluiting | Nee |
| Wateraansluiting | Nee |
| Elektriciteitsaansluiting | Nee |
| TV aansluiting | Nee |
| Internetaansluiting | Nee |
| Zonnepanelen | Nee |
| Zonneboiler | Nee |
| Alarm | Nee |
| Zwembad | Nee |
| Jacuzzi | Nee |
| Toonzaal | Nee |
| Ventilatie | Nee |
Een pand van
VDS Vastgoed
STERK IN VASTGOED
#WeStekenErBovenuit
TK/3061
Leer meer over vastgoed
24 November 2025
Uitgezocht voor jouw gemeente: Hoeveel stijgt de waarde van je woning door een renovatie?
22 October 2025
Hoeveel kan ik lenen om een huis te kopen?
11 June 2025
Huis kopen met bouwovertreding? Dit moet je weten
11 May 2025