Nieuw
Ertvelde (Evergem), Benninckstraat - Fase 3: Lot 13
€ 496.365
Een pand van Huysman Bouw
Overzicht
- 266 m² grond
- 3 Slaapkamer(s)
- 1 Badkamer(s)
- 2 Toilet(ten)
- 1 Tuin
Beschrijving
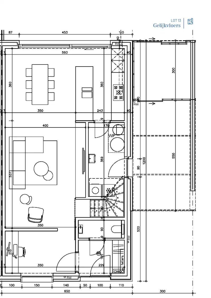
ENERGIEZUINIG (E10) - VASTE PRIJS - INCLUSIEF INTERIEURAFWERKING OP MAAT! Deze energiezuinige nieuwbouwwoning (LOT 13) beschikt over een ruime en optimale planindeling met grote raampartijen, een bureau, 3 slaapkamers en een grote zolder. De woning wordt gebouwd op een Zuidwest georiënteerd perceel van 266m2. In de prijs zijn alle energiezuinige technieken inbegrepen zoals een warmtepomp met vloerverwarming op beide verdiepingen, zonnepanelen, ventilatie met warmterecuperatie, super isolerende beglazing,... . Hierdoor behalen al onze woningen de fantastische energiescore van E10! De interieurafwerking is volledig op maat te kiezen a.d.h.v. de ruime budgetten in het lastenboek. Onder begeleiding van onze interieurarchitect zorg je zelf voor de finishing touch en maak je van je nieuwe huis ook een echte thuis! De woning wordt gebouwd in een rustige nieuwbouwwijk tussen de Eeklostraat en de Benninckstraat in Ertvelde. Het project wordt een architecturaal geheel van moderne woningen, ontworpen door CAS architecten. De strakke lijnen en de moderne gevelmaterialen zorgen voor een uniforme, rustgevende en unieke uitstraling. Meer informatie over deze woning of over het totale project? Onze bouwadviseur bezorgt je graag het volledig dossier! Contacteer Ewout Vanden Bussche op 0497 588 888 of mail naar contact@huysmanbouw.be
Energie
![]() |
- E-peil: E0
- Beglazing: Onbekend
Op de kaart

Financieel
| Prijs |
|---|
Bijkomende info
Gebouw
| Bouwjaar | 2023 |
|---|---|
| Staat | Zo goed als nieuw |
| Bouwcertificaat | Ja |
| Verdieping | 0 |
| Badkamers | 1 |
| Slaapkamers | 3 |
| Verdiepingen | 0 |
| Garages | 0 |
| Parkeerplaatsen | 1 |
| Toiletten | 2 |
Faciliteiten
| Septische tank | Ja |
|---|
Perceel
| Overstromingsgevoelig | Geen |
|---|---|
| P-score | A |
| G-score | A |
| Totale oppervlakte (m²) | 266 |
| Bebouwde oppervlakte (m²) | 0 |
| Tuin oppervlakte (m²) | 0 |
| Oppervlakte terras (m²) | 0 |
| Oriëntatie tuin | Zuidwest |
Vergunning
| Verkavelingsvergunning | Vergunning beschikbaar |
|---|
Uitrusting
| Investeringspand | Nee |
|---|---|
| Parking | Ja |
| Garage | Nee |
| Thuiskantoor | Ja |
| Zolder | Ja |
| Tuin | Ja |
| Terras | Ja |
| Lift | Nee |
| Rioolaansluiting | Ja |
| Gasaansluiting | Nee |
| Wateraansluiting | Ja |
| Elektriciteitsaansluiting | Ja |
| Internetaansluiting | Ja |
| Telefoonaansluiting | Ja |
| Zonnepanelen | Ja |
| Zonneboiler | Nee |
| Alarm | Nee |
| Videofoon | Nee |
| Grondwaterput | Ja |
Een pand van
Huysman Bouw
Bouwen mét vertrouwen
Huysman Bouw staat voor meer dan 50 jaar ervaring in bouwen van nieuwbouwwoningen en appartementen in Oost- en West-Vlaanderen. Wij dragen kwaliteit, flexibiliteit en klantvriendelijkheid hoog in het vaandel. Een combinatie van toplocaties, doordachte en gevarieerde architectuur en een interieur afwerking op maat maken van iedere woning een echte thuis. Jong, single, gezin of senior? Wij creëren een sleutel-op-de-deur-woning, afgewerkt appartement of bouwproject op jouw maat.
Ertvelde (Evergem), Benninckstraat - Fase 3: Lot 13 FEB26
Leer meer over vastgoed
24 November 2025
Uitgezocht voor jouw gemeente: Hoeveel stijgt de waarde van je woning door een renovatie?
22 October 2025
Hoeveel kan ik lenen om een huis te kopen?
11 June 2025
Huis kopen met bouwovertreding? Dit moet je weten
11 May 2025
