Nieuw
Ertvelde (Evergem), Benninckstraat - Fase 3: Lot 34
€ 399.050
Een pand van Huysman Bouw
Favoriet
Jouw zoektocht
Jouw scoretabel voor dit pand
Aan het laden...
Jouw geplande bezichtigingen
Aan het laden...
Overzicht
- 240 m² grond
- 4 Slaapkamer(s)
Beschrijving
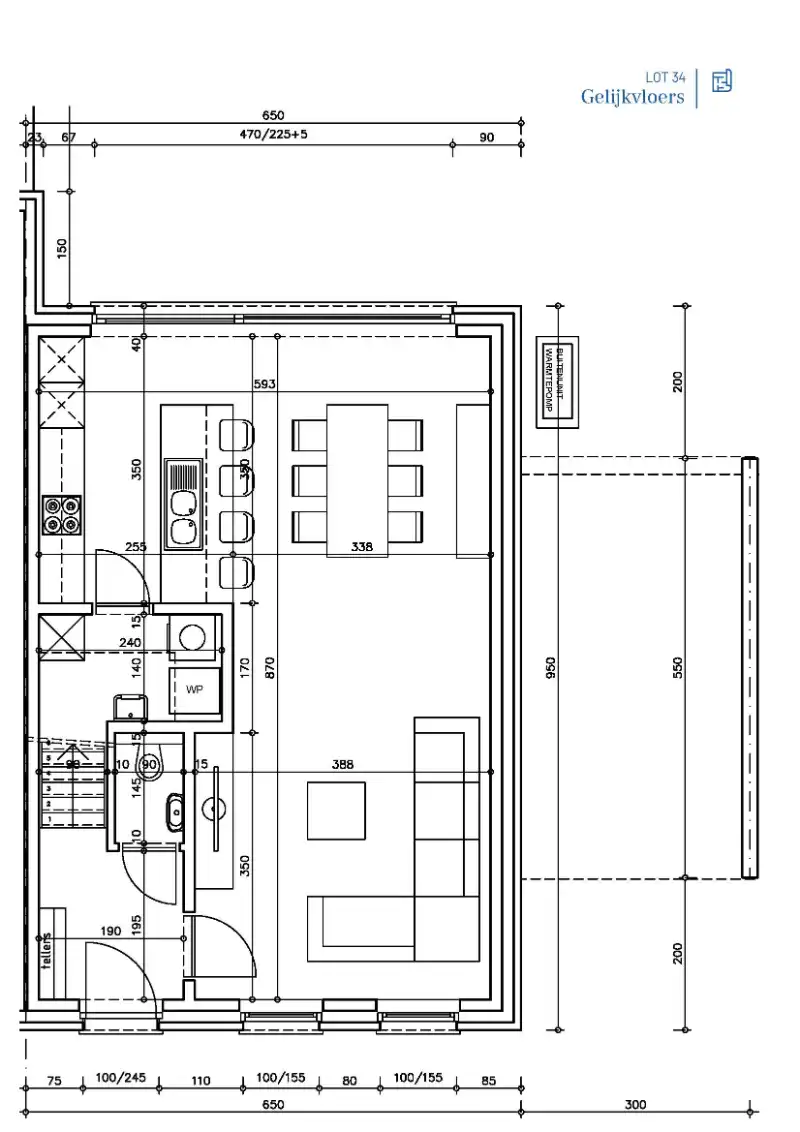
In een rustig nieuw woonproject in Ertvelde, waar de eerste fase werd gekenmerkt door moderne architectuur, gaat nu een tweede fase met rustieke woningen van start. Hier vind je deze charmante halfopen nieuwbouwwoning met carport, gelegen op een westelijk gericht perceel dat volop geniet van licht en rust.
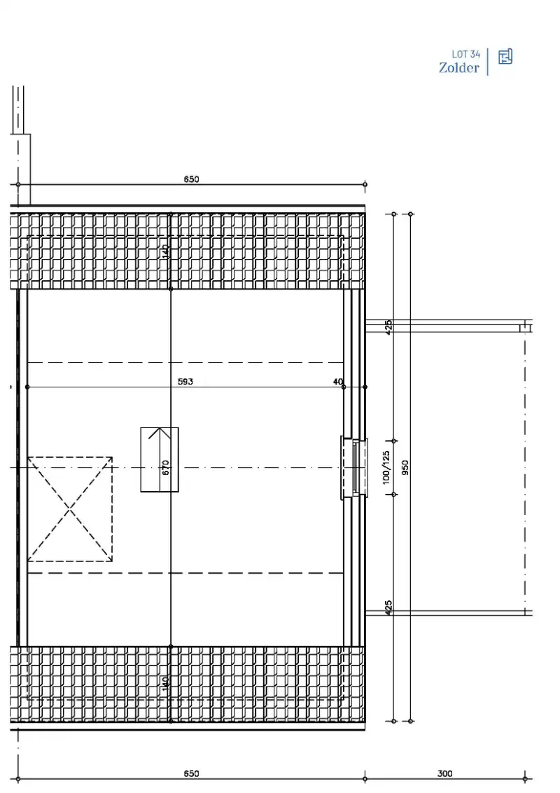
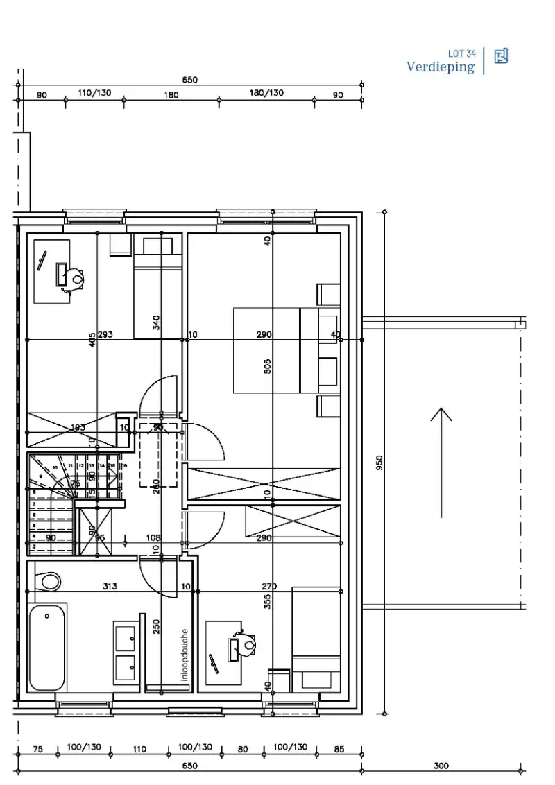
De woning combineert een warme, landelijke uitstraling met hedendaags wooncomfort. Ze beschikt over drie volwaardige slaapkamers, met een vaste trap naar zolder: ideaal als bureau, 4de slaapkamer,... Dankzij het BEN‑label woon je hier bijzonder energiezuinig, met onder meer een warmtepomp, vloerverwarming, ventilatie met warmterecuperatie, zonnepanelen,...
Een ideale thuis voor wie rustig en duurzaam wil wonen, zonder in te boeten aan comfort of bereikbaarheid.
Meer info? Contacteer Ewout 0497 588 888 of contact@huysmanbouw.be en ontdek dit unieke woonproject.
De woning combineert een warme, landelijke uitstraling met hedendaags wooncomfort. Ze beschikt over drie volwaardige slaapkamers, met een vaste trap naar zolder: ideaal als bureau, 4de slaapkamer,... Dankzij het BEN‑label woon je hier bijzonder energiezuinig, met onder meer een warmtepomp, vloerverwarming, ventilatie met warmterecuperatie, zonnepanelen,...
Een ideale thuis voor wie rustig en duurzaam wil wonen, zonder in te boeten aan comfort of bereikbaarheid.
Meer info? Contacteer Ewout 0497 588 888 of contact@huysmanbouw.be en ontdek dit unieke woonproject.
Energie
![]() |
- E-peil: E0
- Beglazing: Onbekend
Op de kaart

Financieel
| Prijs |
|---|
Bijkomende info
Gebouw
| Staat | Zo goed als nieuw |
|---|---|
| Bouwcertificaat | Ja |
| Verdieping | 0 |
| Badkamers | 0 |
| Slaapkamers | 4 |
| Verdiepingen | 0 |
| Garages | 0 |
| Parkeerplaatsen | 0 |
| Toiletten | 0 |
Faciliteiten
| Septische tank | Nee |
|---|
Perceel
| Overstromingsgevoelig | Geen |
|---|---|
| P-score | A |
| G-score | A |
| Totale oppervlakte (m²) | 240 |
| Bebouwde oppervlakte (m²) | 0 |
| Oriëntatie tuin | West |
Vergunning
| Verkavelingsvergunning | Vergunning beschikbaar |
|---|
Uitrusting
| Investeringspand | Nee |
|---|---|
| Parking | Nee |
| Garage | Nee |
| Lift | Nee |
| Rioolaansluiting | Nee |
| Gasaansluiting | Nee |
| Wateraansluiting | Nee |
| Elektriciteitsaansluiting | Nee |
| Internetaansluiting | Nee |
| Telefoonaansluiting | Nee |
| Zonnepanelen | Nee |
| Zonneboiler | Nee |
| Alarm | Nee |
| Videofoon | Nee |
| Grondwaterput | Nee |
Een pand van
Huysman Bouw
Bouwen mét vertrouwen
Huysman Bouw staat voor meer dan 50 jaar ervaring in bouwen van nieuwbouwwoningen en appartementen in Oost- en West-Vlaanderen. Wij dragen kwaliteit, flexibiliteit en klantvriendelijkheid hoog in het vaandel. Een combinatie van toplocaties, doordachte en gevarieerde architectuur en een interieur afwerking op maat maken van iedere woning een echte thuis. Jong, single, gezin of senior? Wij creëren een sleutel-op-de-deur-woning, afgewerkt appartement of bouwproject op jouw maat.
Ertvelde (Evergem), Benninckstraat - Fase 3: Lot 34 APR26
Leer meer over vastgoed
23 March 2026
Op Spotto zoeken als een pro: 10 slimme tips
21 March 2026
Hoeveel kan ik lenen om een huis te kopen?
01 March 2026
Wanneer heb ik een bouwvergunning of omgevingsvergunning nodig?
17 February 2026
