Moderne, energiezuinige nieuwbouwwoning met 4 slaapkamers, tuin en garage
€ 509.949,6
Een pand van Vastgoed Minnaert
Favoriet
Jouw zoektocht
Jouw scoretabel voor dit pand
Aan het laden...
Jouw geplande bezichtigingen
Aan het laden...
Overzicht
- 333 m² grond
- 4 Slaapkamer(s)
- 1 Badkamer(s)
- 2 Toilet(ten)
- 1 Tuin
- 1 Garage(s)
Beschrijving
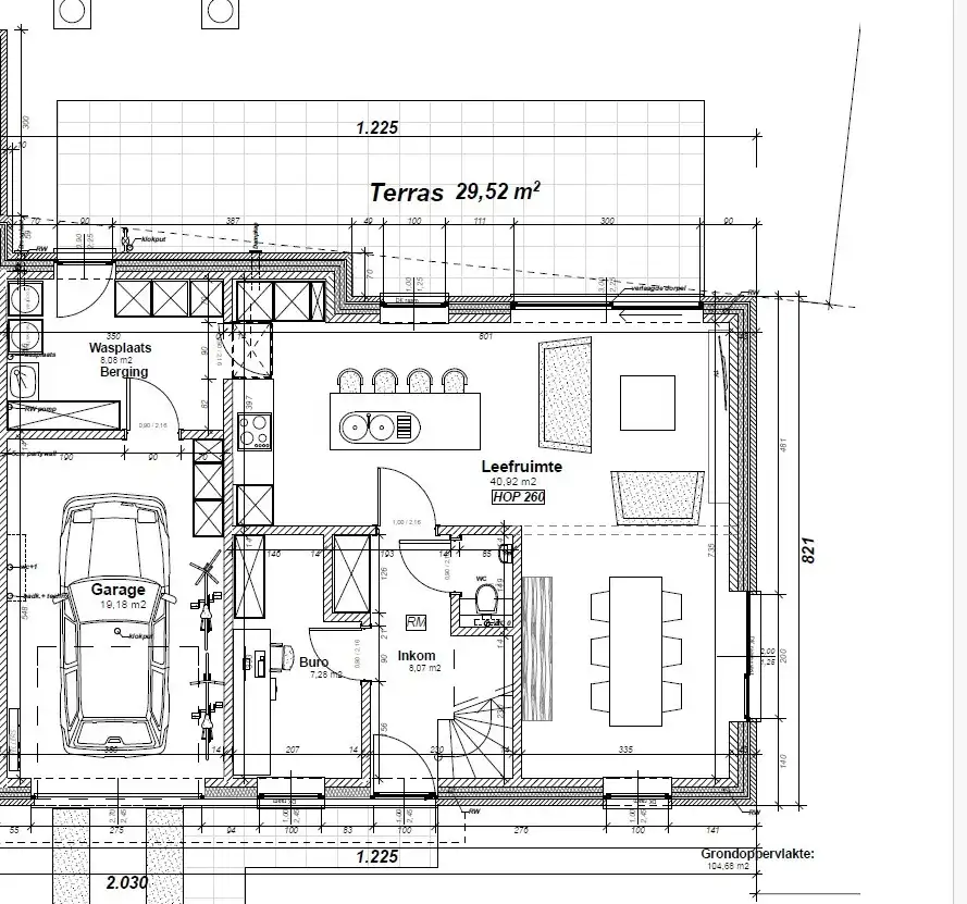
Deze nieuwbouwwoning is gelegen in Hospitaalstraat in Ertvelde en is gerealiseerd met een strakke, tijdloze architectuur die meteen in het oog springt. Bij het binnenkomen word je verwelkomd in een aangename inkomhal met apart toilet en een praktische bureauruimte, ideaal voor thuiswerk of hobby. De lichtrijke woonkamer sluit naadloos aan op het terras en de tuin en vormt samen met de prachtig, uitgeruste keuken het hart van de woning. Verder vind je op het gelijkvloers een inpandige garage en een ruime wasplaats/berging, zodat alles perfect georganiseerd blijft.
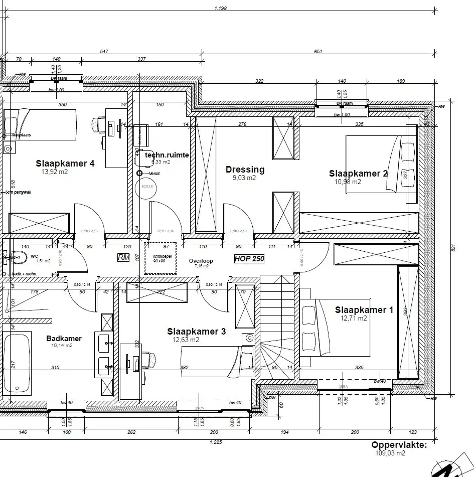
Op de verdieping wachten vier volwaardige slaapkamers, waaronder een master bedroom met ingemaakte dressing, een technische berging, een apart toilet en een luxueuze badkamer met zowel bad als douche. De woning wordt tot in de kleinste details afgewerkt met kwalitatieve materialen, ingemaakte kasten, een elegante glazen deur en een keuken die zowel praktisch als esthetisch uitblinkt.
De woning blinkt ook uit in energiezuinigheid dankzij de zonnepanelen, een lucht/water warmtepomp en moderne technieken.
Gelegen op een perceel van 333m² biedt deze nieuwbouwwoning niet alleen ruimte en licht, maar ook duurzame woonkwaliteit voor de toekomst. Bovendien kan de woning aangekocht worden aan het verlaagd BTW-tarief van 6% (onder voorwaarden), wat dit project extra aantrekkelijk maakt.
Meer weten? info@vastgoedminnaert.be of 09 330 61 04
Op de verdieping wachten vier volwaardige slaapkamers, waaronder een master bedroom met ingemaakte dressing, een technische berging, een apart toilet en een luxueuze badkamer met zowel bad als douche. De woning wordt tot in de kleinste details afgewerkt met kwalitatieve materialen, ingemaakte kasten, een elegante glazen deur en een keuken die zowel praktisch als esthetisch uitblinkt.
De woning blinkt ook uit in energiezuinigheid dankzij de zonnepanelen, een lucht/water warmtepomp en moderne technieken.
Gelegen op een perceel van 333m² biedt deze nieuwbouwwoning niet alleen ruimte en licht, maar ook duurzame woonkwaliteit voor de toekomst. Bovendien kan de woning aangekocht worden aan het verlaagd BTW-tarief van 6% (onder voorwaarden), wat dit project extra aantrekkelijk maakt.
Meer weten? info@vastgoedminnaert.be of 09 330 61 04
Energie
- E-peil: E20
- Beglazing: Onbekend
Op de kaart

Financieel
| Prijs |
|---|
Bijkomende info
Gebouw
| Staat | Nieuw |
|---|---|
| Badkamers | 1 |
| Slaapkamers | 4 |
| Verdiepingen | 0 |
| Garages | 1 |
| Parkeerplaatsen | 0 |
| Toiletten | 2 |
Faciliteiten
| Septische tank | Nee |
|---|
Perceel
| Overstromingsgevoelig | Geen |
|---|---|
| P-score | B |
| G-score | B |
| Totale oppervlakte (m²) | 333 |
| Bebouwde oppervlakte (m²) | 0 |
| Tuin oppervlakte (m²) | 0 |
| Oppervlakte terras (m²) | 0 |
| Oriëntatie tuin | ZuidOost |
Vergunning
| Verkavelingsvergunning | Geen beschikbaar |
|---|
Uitrusting
| Investeringspand | Nee |
|---|---|
| Parking | Nee |
| Garage | Ja |
| Thuiskantoor | Ja |
| Opslagruimte | Ja |
| Tuin | Ja |
| Terras | Ja |
| Lift | Nee |
| Rioolaansluiting | Nee |
| Gasaansluiting | Nee |
| Wateraansluiting | Nee |
| Elektriciteitsaansluiting | Nee |
| Internetaansluiting | Nee |
| Telefoonaansluiting | Nee |
| Zonnepanelen | Ja |
| Zonneboiler | Nee |
| Alarm | Nee |
| Videofoon | Nee |
| Grondwaterput | Ja |
Een pand van
Vastgoed Minnaert
Vastgoed Minnaert opent deuren voor jou
Alles begint bij een eerste babbel. We staan voor een eerlijke en open communicatie. Alle kennis hebben wij in huis om jou te begeleiden van A tot Z: administratief, juridisch en fiscaal.
We plaatsen het hart en de ziel van jouw woning in de kijker om zo de geschikte koper/ huurder te vinden.
Én dit alles samen met jou. Stap met ons mee in vastgoedland want zowel jij als jouw eigendom verdienen de beste aanpak!
Hospitaalstraat 30
Leer meer over vastgoed
23 March 2026
Op Spotto zoeken als een pro: 10 slimme tips
21 March 2026
Hoeveel kan ik lenen om een huis te kopen?
01 March 2026
Wanneer heb ik een bouwvergunning of omgevingsvergunning nodig?
17 February 2026