Nieuw
Evergem, Boordekens - Fase 1: Lot 10
€ 497.406
Een pand van Huysman Bouw
Favoriet
Jouw zoektocht
Jouw scoretabel voor dit pand
Aan het laden...
Jouw geplande bezichtigingen
Aan het laden...
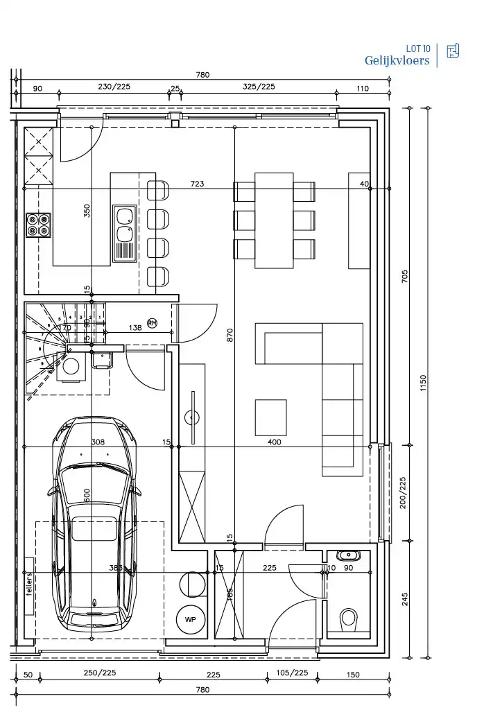
Overzicht
- 284 m² grond
- 3 Slaapkamer(s)
Beschrijving
Stap binnen in de strakke elegantie van een moderne halfopen nieuwbouwwoning, compleet met inpandige garage, gelegen op een zuid-georiënteerd perceel in een serene verkaveling. Deze eigentijdse woning biedt niet alleen een oase van rust maar ook een harmonieuze mix van modern design en comfort.
Deze energiezuinige BEN-woning is uitgerust met geavanceerde technologieën, waaronder een warmtepomp, vloerverwarming op het gelijkvloers en de verdieping, ventilatie type D met warmterecuperatie, een regenwaterput van 10.000L, zonnepanelen, en meer.
Het zuid-georiënteerde perceel vangt de zonnestralen optimaal op en creëert een lichte en luchtige sfeer in de woning. Interesse in deze woning of bespreekt u graag even de verschillende mogelijkheden? 0497 588 888 of ewout@huysmanbouw.be. Ook voor een afspraak in onze kijkwoning maak ik graag tijd voor u vrij.
Deze energiezuinige BEN-woning is uitgerust met geavanceerde technologieën, waaronder een warmtepomp, vloerverwarming op het gelijkvloers en de verdieping, ventilatie type D met warmterecuperatie, een regenwaterput van 10.000L, zonnepanelen, en meer.
Het zuid-georiënteerde perceel vangt de zonnestralen optimaal op en creëert een lichte en luchtige sfeer in de woning. Interesse in deze woning of bespreekt u graag even de verschillende mogelijkheden? 0497 588 888 of ewout@huysmanbouw.be. Ook voor een afspraak in onze kijkwoning maak ik graag tijd voor u vrij.
Energie
![]() |
- E-peil: E30
- Beglazing: Standaard dubbel
Op de kaart

Financieel
| Prijs |
|---|
Bijkomende info
Gebouw
| Bouwjaar | 2026 |
|---|---|
| Staat | Zo goed als nieuw |
| Bouwcertificaat | Ja |
| Verdieping | 0 |
| Badkamers | 0 |
| Slaapkamers | 3 |
| Verdiepingen | 0 |
| Garages | 0 |
| Parkeerplaatsen | 0 |
| Toiletten | 0 |
Faciliteiten
| Keuken uitrusting | Goed uitgerust |
|---|---|
| Beglazing | Standaard dubbel |
| Septische tank | Ja |
Perceel
| Overstromingsgevoelig | Geen |
|---|---|
| Totale oppervlakte (m²) | 284 |
| Bebouwde oppervlakte (m²) | 0 |
| Oriëntatie tuin | Zuid |
Vergunning
| Verkavelingsvergunning | Vergunning beschikbaar |
|---|
Uitrusting
| Investeringspand | Nee |
|---|---|
| Parking | Nee |
| Garage | Nee |
| Lift | Nee |
| Rioolaansluiting | Ja |
| Gasaansluiting | Nee |
| Wateraansluiting | Ja |
| Elektriciteitsaansluiting | Ja |
| Internetaansluiting | Ja |
| Telefoonaansluiting | Ja |
| Zonnepanelen | Nee |
| Zonneboiler | Nee |
| Alarm | Nee |
| Videofoon | Nee |
| Grondwaterput | Ja |
Een pand van
Huysman Bouw
Bouwen mét vertrouwen
Huysman Bouw staat voor meer dan 50 jaar ervaring in bouwen van nieuwbouwwoningen en appartementen in Oost- en West-Vlaanderen. Wij dragen kwaliteit, flexibiliteit en klantvriendelijkheid hoog in het vaandel. Een combinatie van toplocaties, doordachte en gevarieerde architectuur en een interieur afwerking op maat maken van iedere woning een echte thuis. Jong, single, gezin of senior? Wij creëren een sleutel-op-de-deur-woning, afgewerkt appartement of bouwproject op jouw maat.
Evergem, Boordekens - Fase 1: Lot 10 APR26C
Leer meer over vastgoed
23 March 2026
Op Spotto zoeken als een pro: 10 slimme tips
21 March 2026
Hoeveel kan ik lenen om een huis te kopen?
01 March 2026
Wanneer heb ik een bouwvergunning of omgevingsvergunning nodig?
17 February 2026
