Moderne nieuwbouwwoning op een exclusief perceel te koop
€ 865.582
Een pand van Casteels vastgoed
Overzicht
- 234 m² bewoonbaar
- 4746 m² grond
- 3 Slaapkamer(s)
- 2 Badkamer(s)
- 2 Toilet(ten)
Beschrijving
Contacteer Andrès op 09 396 10 24 of via andres@casteelsvastgoed.be
Dossierstukken en plannen steeds beschikbaar op onze website
__
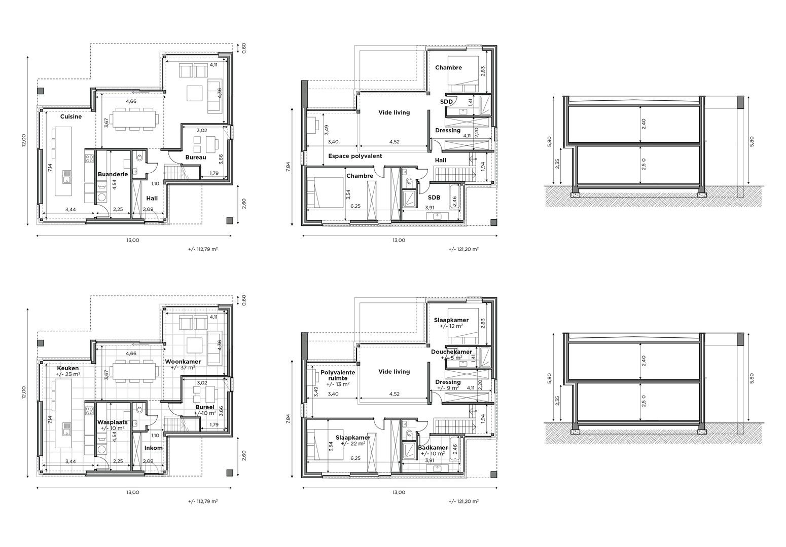
Deze moderne nieuwbouwwoning is een voorbeeld van wat mogelijk gebouwd kan worden op een perceel naar keuze, in samenwerking met bouwfirma Blavier. De woning valt op door haar strakke architectuur, warme houtaccenten en grote raampartijen die zorgen voor een aangename lichtinval en een open karakter. Op het gelijkvloers bevindt zich een ruime leefruimte van 37 m² die in verbinding staat met de eetkamer en een open keuken van 25 m². De grote glaspartijen zorgen voor een directe relatie met de tuin en het terras. Verder zijn er een inkomhal met vestiaire, een praktische wasplaats van 10 m² en een aparte bureauruimte. Op de verdieping bevinden zich twee ruime slaapkamers, waaronder een master bedroom met dressing en eigen douchekamer. Daarnaast is er een tweede badkamer met ligbad, een open vide die uitgeeft op de leefruimte én een derde slaapkamer, die momenteel aangeduid staat als polyvalente ruimte van 13 m². Deze ruimte biedt voldoende plaats om ingericht te worden als volwaardige slaapkamer. Dit ontwerp is louter ter inspiratie en niet definitief. Kopers hebben volledige vrijheid om samen te werken met een eigen architect en een woning te realiseren die volledig aansluit bij hun wensen, stijl en budget. Zowel de indeling als de afwerking kunnen volledig naar eigen voorkeur worden aangepast. Neem contact voor meer informatie.
Dossierstukken en plannen steeds beschikbaar op onze website
__
Deze moderne nieuwbouwwoning is een voorbeeld van wat mogelijk gebouwd kan worden op een perceel naar keuze, in samenwerking met bouwfirma Blavier. De woning valt op door haar strakke architectuur, warme houtaccenten en grote raampartijen die zorgen voor een aangename lichtinval en een open karakter. Op het gelijkvloers bevindt zich een ruime leefruimte van 37 m² die in verbinding staat met de eetkamer en een open keuken van 25 m². De grote glaspartijen zorgen voor een directe relatie met de tuin en het terras. Verder zijn er een inkomhal met vestiaire, een praktische wasplaats van 10 m² en een aparte bureauruimte. Op de verdieping bevinden zich twee ruime slaapkamers, waaronder een master bedroom met dressing en eigen douchekamer. Daarnaast is er een tweede badkamer met ligbad, een open vide die uitgeeft op de leefruimte én een derde slaapkamer, die momenteel aangeduid staat als polyvalente ruimte van 13 m². Deze ruimte biedt voldoende plaats om ingericht te worden als volwaardige slaapkamer. Dit ontwerp is louter ter inspiratie en niet definitief. Kopers hebben volledige vrijheid om samen te werken met een eigen architect en een woning te realiseren die volledig aansluit bij hun wensen, stijl en budget. Zowel de indeling als de afwerking kunnen volledig naar eigen voorkeur worden aangepast. Neem contact voor meer informatie.
Deze moderne nieuwbouwwoning is een voorbeeld van wat mogelijk gebouwd kan worden op een perceel naar keuze, in samenwerking met bouwfirma Blavier.
De woning valt op door haar strakke architectuur, warme houtaccenten en grote raampartijen die zorgen voor een aangename lichtinval en een open karakter.
Op het gelijkvloers bevindt zich een ruime leefruimte van 37 m² die in verbinding staat met de eetkamer en een open keuken van 25 m².
De grote glaspartijen zorgen voor een directe relatie met de tuin en het terras.
Verder zijn er een inkomhal met vestiaire, een praktische wasplaats van 10 m² en een aparte bureauruimte.
Op de verdieping bevinden zich twee ruime slaapkamers, waaronder een master bedroom met dressing en eigen douchekamer.
Daarnaast is er een tweede badkamer met ligbad, een open vide die uitgeeft op de leefruimte én een derde slaapkamer, die momenteel aangeduid staat als polyvalente ruimte van 13 m².
Deze ruimte biedt voldoende plaats om ingericht te worden als volwaardige slaapkamer.
Dit ontwerp is louter ter inspiratie en niet definitief. Kopers hebben volledige vrijheid om samen te werken met een eigen architect en een woning te realiseren die volledig aansluit bij hun wensen, stijl en budget. Zowel de indeling als de afwerking kunnen volledig naar eigen voorkeur worden aangepast.
Voor meer informatie of een vrijblijvend gesprek over de mogelijkheden, neem gerust contact op.
De woning valt op door haar strakke architectuur, warme houtaccenten en grote raampartijen die zorgen voor een aangename lichtinval en een open karakter.
Op het gelijkvloers bevindt zich een ruime leefruimte van 37 m² die in verbinding staat met de eetkamer en een open keuken van 25 m².
De grote glaspartijen zorgen voor een directe relatie met de tuin en het terras.
Verder zijn er een inkomhal met vestiaire, een praktische wasplaats van 10 m² en een aparte bureauruimte.
Op de verdieping bevinden zich twee ruime slaapkamers, waaronder een master bedroom met dressing en eigen douchekamer.
Daarnaast is er een tweede badkamer met ligbad, een open vide die uitgeeft op de leefruimte én een derde slaapkamer, die momenteel aangeduid staat als polyvalente ruimte van 13 m².
Deze ruimte biedt voldoende plaats om ingericht te worden als volwaardige slaapkamer.
Dit ontwerp is louter ter inspiratie en niet definitief. Kopers hebben volledige vrijheid om samen te werken met een eigen architect en een woning te realiseren die volledig aansluit bij hun wensen, stijl en budget. Zowel de indeling als de afwerking kunnen volledig naar eigen voorkeur worden aangepast.
Voor meer informatie of een vrijblijvend gesprek over de mogelijkheden, neem gerust contact op.
Energie
![]() |
- E-peil: E0
- Beglazing: Onbekend
Op de kaart

Financieel
| Prijs | |
|---|---|
| Kadastraal inkomen (niet geïndexeerd) | € 25 |
Berekening kosten
Je aankoopkosten? Die heb je snel berekend via de knop hieronder.
Bijkomende info
Gebouw
| Bouwcertificaat | Nee |
|---|---|
| Bewoonbaar (m²) | 234 |
| Badkamers | 2 |
| Slaapkamers | 3 |
| Verdiepingen | 0 |
| Garages | 0 |
| Parkeerplaatsen | 0 |
| Toiletten | 2 |
Faciliteiten
| Septische tank | Nee |
|---|
Perceel
| Overstromingsgevoelig | Geen |
|---|---|
| P-score | B |
| G-score | A |
| Totale oppervlakte (m²) | 4746 |
| Bebouwde oppervlakte (m²) | 0 |
Vergunning
| Verkavelingsvergunning | Vergunning beschikbaar |
|---|
Uitrusting
| Investeringspand | Nee |
|---|---|
| Parking | Nee |
| Garage | Nee |
| Thuiskantoor | Ja |
| Lift | Nee |
| Rioolaansluiting | Ja |
| Gasaansluiting | Ja |
| Wateraansluiting | Ja |
| Elektriciteitsaansluiting | Ja |
| Internetaansluiting | Nee |
| Telefoonaansluiting | Nee |
| Zonnepanelen | Nee |
| Zonneboiler | Nee |
| Alarm | Nee |
| Videofoon | Nee |
| Grondwaterput | Nee |
Een pand van
Casteels vastgoed
Vastgoedmakelaardij met een verfrissende aanpak.
Authentiek, ongedwongen en met een communicatie van mens tot mens. Als moderne vastgoedmakelaar begeleiden we jou zo naar een vlotte aankoop of verkoop van je woning. Door het verkoopproces zoveel mogelijk te optimaliseren, profiteer jij als koper of verkoper van een uitstekende dienstverlening aan een scherpe prijs. Casteels vastgoed, vastgoed dat raakt.
AL25_005_EmericDeBruynelaan14_9940
Leer meer over vastgoed
01 March 2026
Wanneer heb ik een bouwvergunning of omgevingsvergunning nodig?
17 February 2026
Hoe breng ik een bod uit op een woning?
24 November 2025
Uitgezocht voor jouw gemeente: Hoeveel stijgt de waarde van je woning door een renovatie?
22 October 2025
