Nieuw
AF TE BREKEN HOEVE MET BOUWPLANNEN VILLA-GGE-ZWEMBAD
€ 445.500
Een pand van Immo-X
Overzicht
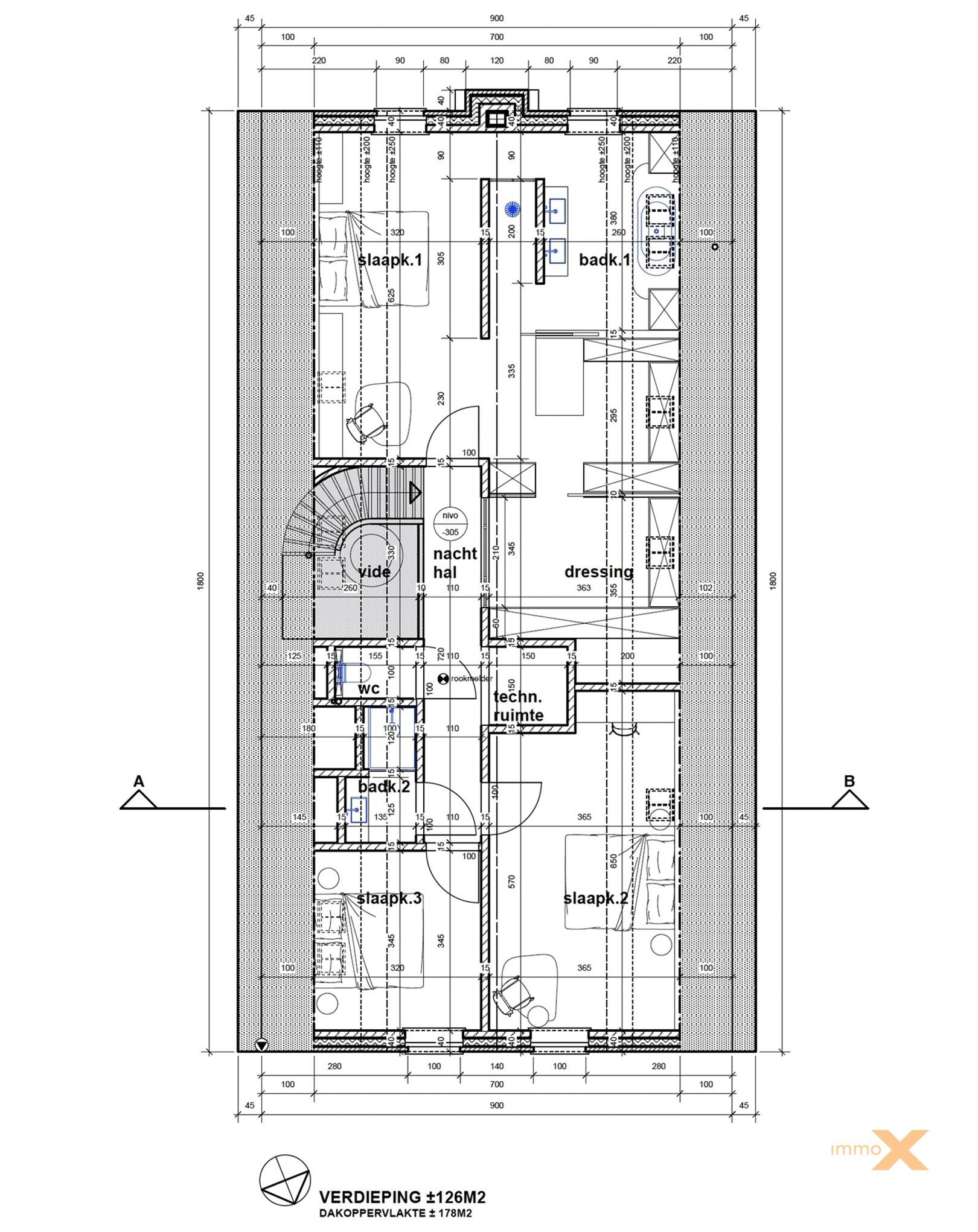
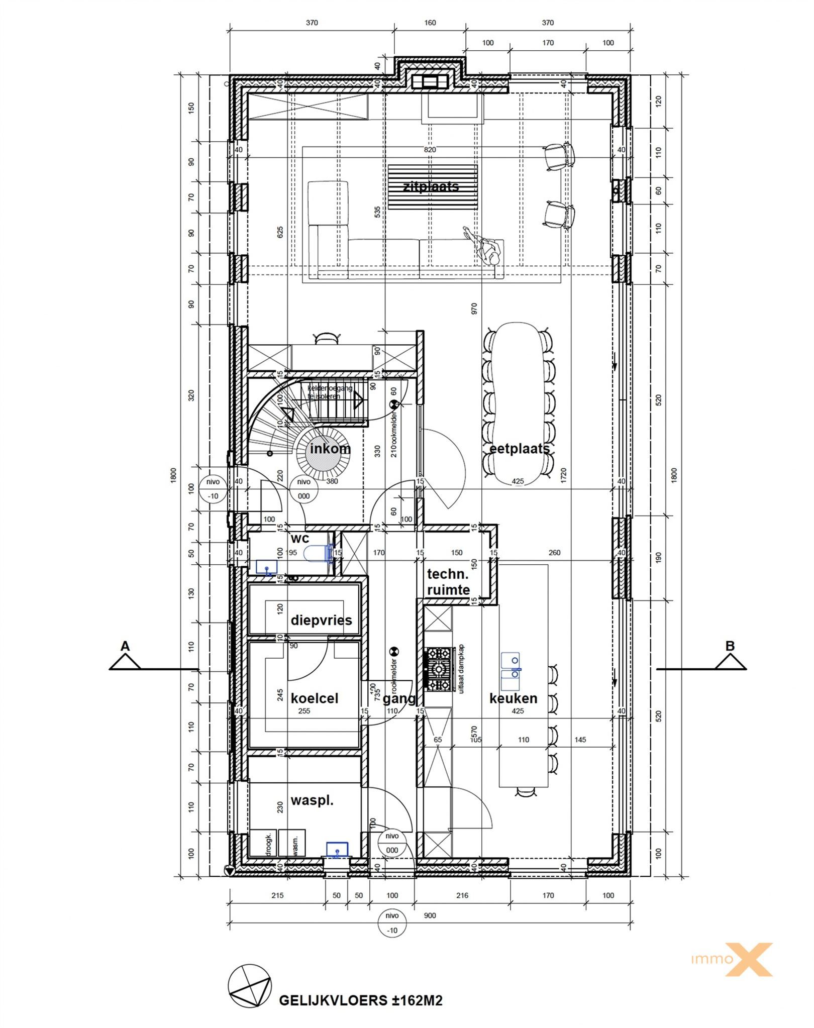
- 288 m² bewoonbaar
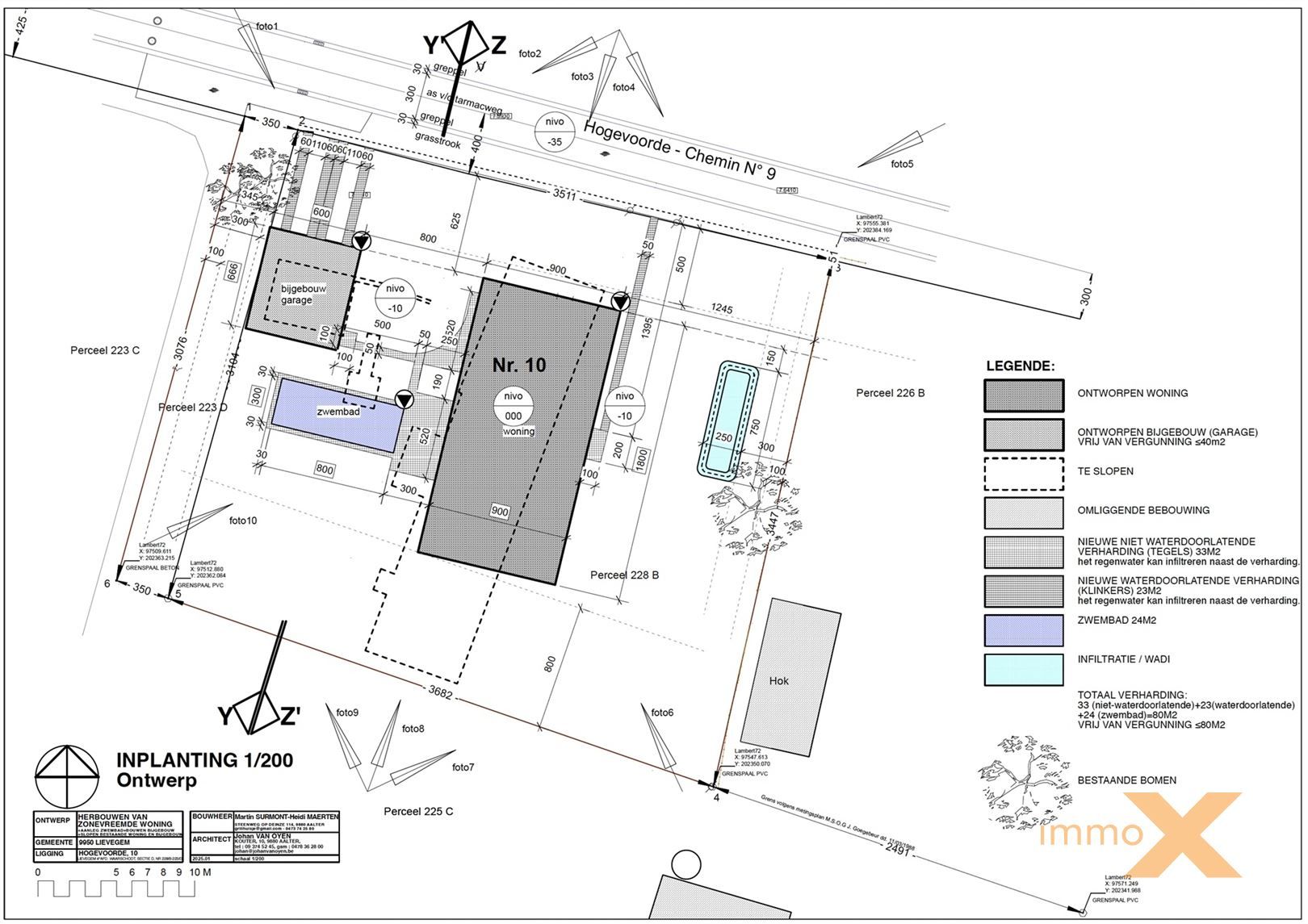
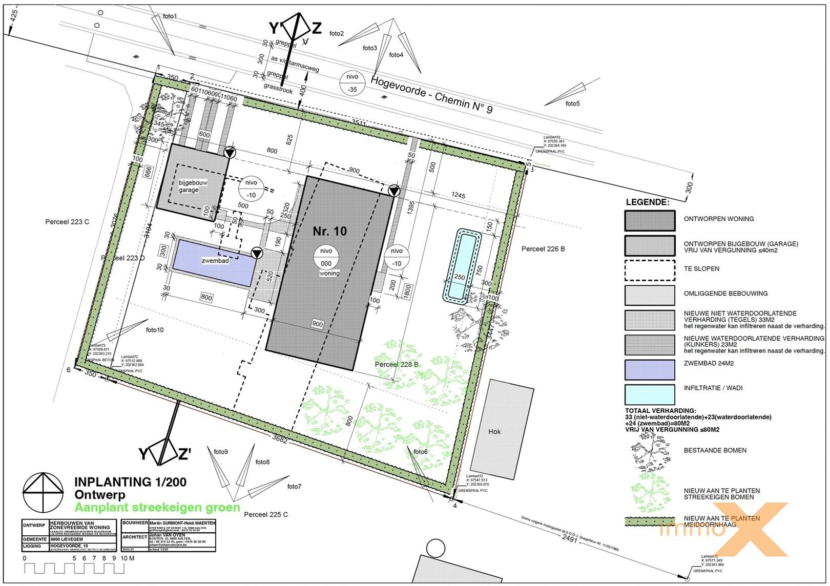
- 1281 m² grond
- 3 Slaapkamer(s)
- 2 Badkamer(s)
- 2 Toilet(ten)
- 1 Tuin
- 1 Garage(s)
Beschrijving
AF TE BREKEN WONING MET GOEDGEKEURDE BOUWPLANNEN OP PERCEEL VAN 1281m2. Deze rustig gelegen, af te breken hoevewoning is gelegen in agrarisch gebied. Goedgekeurde bouwplannen en vergunning aanwezig voor afbraak en bouw van ruime villa met zwembad en afzonderlijke dubbele garage. Oppervlakte perceel: 1281m2 (volgens recent opmetingsplan). PRACHTIG TE BOUWEN WONING IN AGRARISCH GEBIED, ABSOLUTE TOPKANS!! Meer info over bouwplannen, bouwvoorschriften, bouwvergunning en voorwaarden, op kantoor Immo-X. Geen bouwverplichtingen t.o.v. bepaalde aannemers, u kiest zelf met wie u bouwt. De verkoop betreft de grond met de af te breken woning en de goedgekeurde plannen (bouwen van de nieuwe woning en aanhorigheden niet inbegrepen!). Bezoek enkel mogelijk op afspraak via mail.
Energie
![]() |
- EPC Certificaat: 20221005-0002690037-RES-1
- Energieverbruik: 555 kWh/m²/jaar
- E-peil: E0
- Beglazing: Onbekend
Op de kaart

Financieel
Prijs | |
---|---|
Kadastraal inkomen (niet geïndexeerd) | € 245 |
Kadastraal inkomen (geïndexeerd) | € 0 |
Berekening kosten
Je aankoopkosten? Die heb je snel berekent via de knop hieronder.
Bijkomende info
Gebouw
Bouwcertificaat | Nee |
---|
Perceel
Breedte (m) | 385 |
---|---|
Overstromingsgevoelig | Geen |
P-score | A |
Voorkeurrecht | Nee |
Totale oppervlakte (m²) | 1281 |
Vergunning
Vergunning | Vergunning beschikbaar |
---|---|
Verkavelingsvergunning | Geen beschikbaar |
Type gebied | Landelijk |
Uitrusting
Investeringspand | Nee |
---|---|
Rioolaansluiting | Nee |
Gasaansluiting | Nee |
Wateraansluiting | Nee |
Elektriciteitsaansluiting | Nee |
TV aansluiting | Nee |
Internetaansluiting | Nee |
Telefoonaansluiting | Nee |
Een pand van
Immo-X
Kwaliteit, persoonlijkheid en vertrouwen voorop!
Reeds 3 generaties stroomt het ‘vastgoedbloed’ ons door de aderen. Als erkend BIV-vastgoedmakelaar zijn vertrouwen, kordate opvolging en teamwork dan ook onze kernwoorden.
Ons ervaren en uiterst gedreven team laat u graag kennis maken met de hedendaagse steeds complexere vastgoedmarkt. De bagage aan familiale knowhow en het professionele teamwork in verkoop en verhuur van onroerend goed, is het geheim van ons succes.
We geven u graag, persoonlijk en totaal vrijblijvend, een verhelderende uitleg over onze vernieuwende en uiterst interactieve manier van vastgoedbemiddeling. Niet alleen uw woning en de potentiële kopers, maar ook U staat centraal gedurende het hele verkoopproces.
Waarschoot - Hogevoorde 10
Leer meer over vastgoed
11 June 2025
Huis kopen met bouwovertreding? Dit moet je weten
11 May 2025
Renoveren? Vraag je Mijn VerbouwPremie aan
22 April 2025
Je allereerste renovatieproject selecteren én budgetteren: met de praktische hulp van Spotto
17 February 2025