TE KOOP in OOSTEEKLO Bostraat 5
€ 380.320
Een pand van Vastgoed Speybroeck
Overzicht
- 439 m² grond
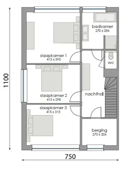
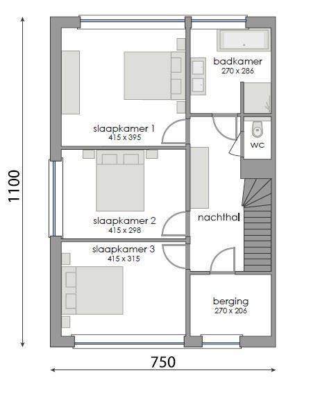
- 3 Slaapkamer(s)
- 1 Badkamer(s)
- 2 Toilet(ten)
Beschrijving
TE KOOP in OOSTEEKLO Bosstraat 5
Mooi gelegen perceel bouwgrond voor het bouwen van halfopen bebouwing.
Lot 1 : Opp. : +/- 439 m² Prijs grond : € 129.500
FORMULE WATER- EN WINDDICHT:
- Ruwbouwwerken
- Timmerwerken
- PVC ramen met beglazing kw 1.0
- Dak- & zinkwerken
_________________
= € 250.820 excl. btw
OPTIE AFWERKING:
- Elektriciteit en ventilatie
- Chape -en vloerisolatie
- Pleisterwerken
- Sanitaire werken ( HW toestellen = € 4.000 excl. btw )
- Warmtepomp lucht/water ( Viessmann )
- Bevloering ( HW vloer : 35€/m² HW plinten : 12.50€/lm HW wandtegels : 25€/m² )
- Keukeninstallatie ( HW = € 8.000 excl. btw)
- Binnen schrijnwerk
- Voegwerken
- Blowerdoortest
- Zonnepanelen 8st. ( 435 Wp )
_________________
= € 112.687 excl.btw
WIJ BOUWEN OOK A LA CARTE
Opties zijn mogelijk tot net voor " Normale Bewoonbaarheid" (volgens aannemingsovereenkomst)
Informeer naar onze interessante HUISRUIL-FORMULE
zie ook : WWW.SPEYBROECK.BE
Bel 0473 300 700 of GRATIS 0800 15 700
Mooi gelegen perceel bouwgrond voor het bouwen van halfopen bebouwing.
Lot 1 : Opp. : +/- 439 m² Prijs grond : € 129.500
FORMULE WATER- EN WINDDICHT:
- Ruwbouwwerken
- Timmerwerken
- PVC ramen met beglazing kw 1.0
- Dak- & zinkwerken
_________________
= € 250.820 excl. btw
OPTIE AFWERKING:
- Elektriciteit en ventilatie
- Chape -en vloerisolatie
- Pleisterwerken
- Sanitaire werken ( HW toestellen = € 4.000 excl. btw )
- Warmtepomp lucht/water ( Viessmann )
- Bevloering ( HW vloer : 35€/m² HW plinten : 12.50€/lm HW wandtegels : 25€/m² )
- Keukeninstallatie ( HW = € 8.000 excl. btw)
- Binnen schrijnwerk
- Voegwerken
- Blowerdoortest
- Zonnepanelen 8st. ( 435 Wp )
_________________
= € 112.687 excl.btw
WIJ BOUWEN OOK A LA CARTE
Opties zijn mogelijk tot net voor " Normale Bewoonbaarheid" (volgens aannemingsovereenkomst)
Informeer naar onze interessante HUISRUIL-FORMULE
zie ook : WWW.SPEYBROECK.BE
Bel 0473 300 700 of GRATIS 0800 15 700
Energie
- E-peil: E15
- Beglazing: Standaard dubbel
Op de kaart

Financieel
| Prijs |
|---|
Bijkomende info
Gebouw
| Bouwjaar | 2026 |
|---|---|
| Staat | Nieuw |
| Verdieping | 0 |
| Badkamers | 1 |
| Slaapkamers | 3 |
| Verdiepingen | 0 |
| Garages | 0 |
| Parkeerplaatsen | 0 |
| Toiletten | 2 |
Faciliteiten
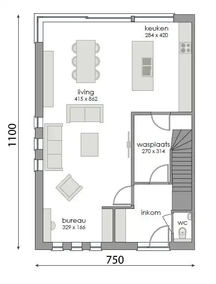
| Keuken uitrusting | Goed uitgerust |
|---|---|
| Beglazing | Standaard dubbel |
| Septische tank | Ja |
Perceel
| Overstromingsgevoelig | Geen |
|---|---|
| Totale oppervlakte (m²) | 439 |
| Bebouwde oppervlakte (m²) | 0 |
Vergunning
| Verkavelingsvergunning | Geen beschikbaar |
|---|
Uitrusting
| Investeringspand | Nee |
|---|---|
| Parking | Nee |
| Garage | Nee |
| Lift | Nee |
| Rioolaansluiting | Nee |
| Gasaansluiting | Nee |
| Wateraansluiting | Nee |
| Elektriciteitsaansluiting | Nee |
| Internetaansluiting | Nee |
| Telefoonaansluiting | Nee |
| Zonnepanelen | Ja |
| Zonneboiler | Nee |
| Alarm | Nee |
| Videofoon | Nee |
| Grondwaterput | Ja |
Een pand van
Vastgoed Speybroeck
Vastgoed SPEYBROECK
We schrijven 1971, Antoine Speybroeck start met "WONINGBOUW SPEYBROECK", tot op heden nog steeds een echt familiebedrijf en heeft -met een bouwtraditie van vier generaties- de tand des tijds ruim doorstaan.
Wat ooit begon als een éénmanszaak, groeide al snel uit tot een moderne familieonderneming waar normen en waarden hoog in het vaandel werden gedragen.
Dat vertaalt zich vandaag in een unieke combinatie van professionalisme en een doorgedreven persoonlijke benadering van de kandidaatbouwer. Samen met een vakkundig team zullen Stefaan en Isabella Speybroeck u bijstaan in de zoektocht naar uw droomhuis.
Met ons "huisruil"-concept kunnen wij u bovendien onze diensten aanbieden zowel als bouwbedrijf als vastgoedmakelaar. Deze verkoopformule is uniek in België. Wij verkopen uw bestaande woning en bouwen op korte tijd een nieuwe woning voor u.
We hopen u binnenkort welkom te mogen heten voor de bespreking van uw bouwplannen!
4192202
Leer meer over vastgoed
Nieuw
01 March 2026
Wanneer heb ik een bouwvergunning of omgevingsvergunning nodig?
17 February 2026
Hoe breng ik een bod uit op een woning?
24 November 2025
Uitgezocht voor jouw gemeente: Hoeveel stijgt de waarde van je woning door een renovatie?
22 October 2025