TE KOOP in OOSTEEKLO Bostraat 5
€ 376.685
Een pand van Vastgoed Speybroeck
Overzicht
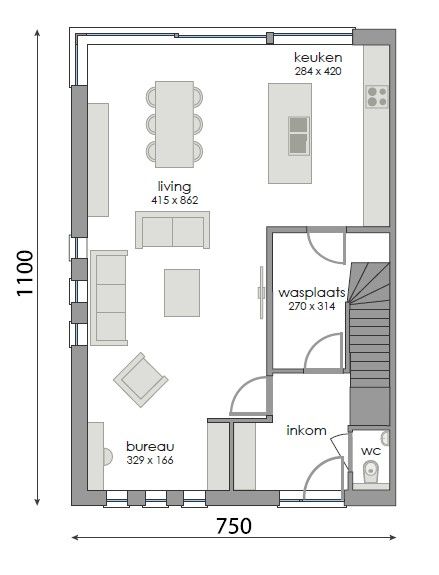
- 439 m² grond
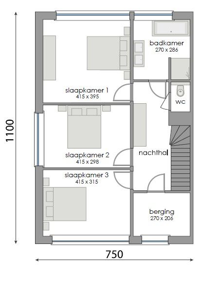
- 3 Slaapkamer(s)
- 1 Badkamer(s)
- 2 Toilet(ten)
Beschrijving
TE KOOP in OOSTEEKLO Bosstraat 5
Mooi gelegen perceel bouwgrond voor het bouwen van halfopen bebouwing.
Lot 1 : Opp. : +/- 439 m² Prijs grond : € 129.500
FORMULE WATER- EN WINDDICHT:
- Ruwbouwwerken
- Timmerwerken
- PVC ramen met beglazing kw 1.0
- Dak- & zinkwerken
_________________
= € 247.185 excl. btw
OPTIE AFWERKING:
- Elektriciteit en ventilatie
- Chape -en vloerisolatie
- Pleisterwerken
- Sanitaire werken ( HW toestellen = € 4.000 excl. btw )
- Warmtepomp lucht/water ( Viessmann )
- Bevloering ( HW vloer : 35€/m² HW plinten : 12.50€/lm HW wandtegels : 25€/m² )
- Keukeninstallatie ( HW = € 8.000 excl. btw)
- Binnen schrijnwerk
- Voegwerken
- Blowerdoortest
- Zonnepanelen 8st. ( 435 Wp )
_________________
= € 116.322 excl.btw
WIJ BOUWEN OOK A LA CARTE
Opties zijn mogelijk tot net voor " Normale Bewoonbaarheid" (volgens aannemingsovereenkomst)
Informeer naar onze interessante HUISRUIL-FORMULE
zie ook : WWW.SPEYBROECK.BE
Bel 0473 300 700 of GRATIS 0800 15 700
Mooi gelegen perceel bouwgrond voor het bouwen van halfopen bebouwing.
Lot 1 : Opp. : +/- 439 m² Prijs grond : € 129.500
FORMULE WATER- EN WINDDICHT:
- Ruwbouwwerken
- Timmerwerken
- PVC ramen met beglazing kw 1.0
- Dak- & zinkwerken
_________________
= € 247.185 excl. btw
OPTIE AFWERKING:
- Elektriciteit en ventilatie
- Chape -en vloerisolatie
- Pleisterwerken
- Sanitaire werken ( HW toestellen = € 4.000 excl. btw )
- Warmtepomp lucht/water ( Viessmann )
- Bevloering ( HW vloer : 35€/m² HW plinten : 12.50€/lm HW wandtegels : 25€/m² )
- Keukeninstallatie ( HW = € 8.000 excl. btw)
- Binnen schrijnwerk
- Voegwerken
- Blowerdoortest
- Zonnepanelen 8st. ( 435 Wp )
_________________
= € 116.322 excl.btw
WIJ BOUWEN OOK A LA CARTE
Opties zijn mogelijk tot net voor " Normale Bewoonbaarheid" (volgens aannemingsovereenkomst)
Informeer naar onze interessante HUISRUIL-FORMULE
zie ook : WWW.SPEYBROECK.BE
Bel 0473 300 700 of GRATIS 0800 15 700
Energie
- E-peil: E15
- Beglazing: Onbekend
Op de kaart

Financieel
Prijs |
---|
Bijkomende info
Gebouw
Bouwjaar | 2025 |
---|---|
Staat | Nieuw |
Badkamers | 1 |
Slaapkamers | 3 |
Toiletten | 2 |
Faciliteiten
Keuken uitrusting | Goed uitgerust |
---|---|
Luiken | Nee |
Septische tank | Ja |
Perceel
Overstromingsgevoelig | Geen |
---|---|
Totale oppervlakte (m²) | 439 |
Vergunning
Verkavelingsvergunning | Geen beschikbaar |
---|
Uitrusting
Investeringspand | Nee |
---|---|
Parking | Nee |
Garage | Nee |
Tuin | Nee |
Lift | Nee |
Rioolaansluiting | Nee |
Gasaansluiting | Nee |
Wateraansluiting | Nee |
Elektriciteitsaansluiting | Nee |
Internetaansluiting | Nee |
Telefoonaansluiting | Nee |
Zonnepanelen | Ja |
Zonneboiler | Nee |
Alarm | Nee |
Zwembad | Nee |
Videofoon | Nee |
Grondwaterput | Ja |
Een pand van
Vastgoed Speybroeck
Vastgoed SPEYBROECK
We schrijven 1971, Antoine Speybroeck start met "WONINGBOUW SPEYBROECK", tot op heden nog steeds een echt familiebedrijf en heeft -met een bouwtraditie van vier generaties- de tand des tijds ruim doorstaan.
Wat ooit begon als een éénmanszaak, groeide al snel uit tot een moderne familieonderneming waar normen en waarden hoog in het vaandel werden gedragen.
Dat vertaalt zich vandaag in een unieke combinatie van professionalisme en een doorgedreven persoonlijke benadering van de kandidaatbouwer. Samen met een vakkundig team zullen Stefaan en Isabella Speybroeck u bijstaan in de zoektocht naar uw droomhuis.
Met ons "huisruil"-concept kunnen wij u bovendien onze diensten aanbieden zowel als bouwbedrijf als vastgoedmakelaar. Deze verkoopformule is uniek in België. Wij verkopen uw bestaande woning en bouwen op korte tijd een nieuwe woning voor u.
We hopen u binnenkort welkom te mogen heten voor de bespreking van uw bouwplannen!
spir19513
Leer meer over vastgoed
11 June 2025
Huis kopen met bouwovertreding? Dit moet je weten
11 May 2025
Renoveren? Vraag je Mijn VerbouwPremie aan
22 April 2025
Je allereerste renovatieproject selecteren én budgetteren: met de praktische hulp van Spotto
17 February 2025