MALDEGEM - Bouwgrond met weide in groene omgeving
Een pand van Immo De Ras
Favoriet
Jouw zoektocht
Jouw scoretabel voor dit pand
Aan het laden...
Jouw geplande bezichtigingen
Aan het laden...
Overzicht
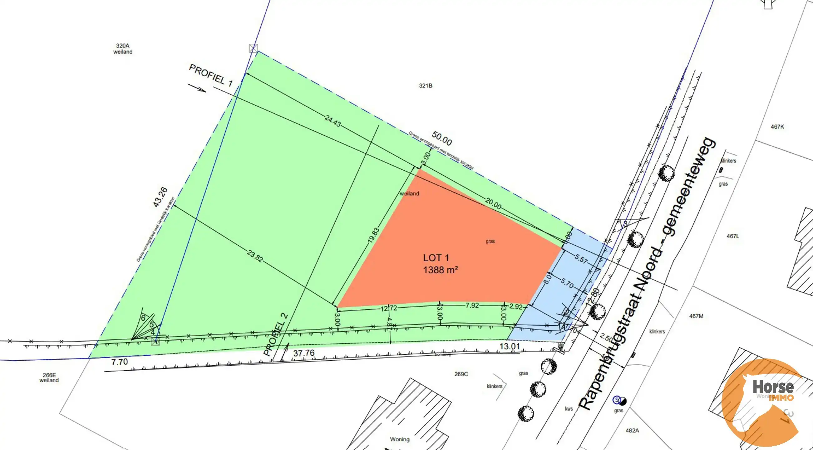
- 9274 m² grond
Overstromingsgevaar perceel
Beschrijving
MALDEGEM - Bouwgrond met weide in groene omgeving
Droomt u van een woning midden in het groen, met de mogelijkheid om paarden te houden? Dan is dit perceel van 9274m² bouwgrond perfect voor u! Gelegen in een prachtige, landelijke omgeving met perfecte west-oriëntatie, biedt deze bouwgrond alles wat u zoekt.
Kenmerken:
Oppervlakte: 9274m², ideaal voor een ruime woning en aanpalende weide
Oriëntatie: Perfecte west-orientatie voor optimaal zonlicht
Aanpalende weide: Ideaal voor paardenliefhebbers, extra stal bouwen mogelijk
Ligging: Rustig en landelijk, maar vlakbij invalswegen
Bouwvoorschriften:
Diepte gelijkvloers: Maximaal 18 meter
Kroonlijsthoogte: Maximaal 4 meter
Dakvorm: Hellend dak verplicht
Voordelen:
Uniek open groenzicht
Ideaal voor de combinatie wonen en paarden houden
Aansluitkosten nutsvoorzieningen ten laste van de kopers. Gas, water en elektriciteit aanwezig in de straat.
Gemakkelijke toegang tot belangrijke invalswegen
Verkoopsbaarheidsattesten aanwezig
Bent u op zoek naar een bouwgrond op een uitstekende ligging? Neem vandaag nog contact met ons op voor een bezichtiging 053/60.65.60.
Droomt u van een woning midden in het groen, met de mogelijkheid om paarden te houden? Dan is dit perceel van 9274m² bouwgrond perfect voor u! Gelegen in een prachtige, landelijke omgeving met perfecte west-oriëntatie, biedt deze bouwgrond alles wat u zoekt.
Kenmerken:
Oppervlakte: 9274m², ideaal voor een ruime woning en aanpalende weide
Oriëntatie: Perfecte west-orientatie voor optimaal zonlicht
Aanpalende weide: Ideaal voor paardenliefhebbers, extra stal bouwen mogelijk
Ligging: Rustig en landelijk, maar vlakbij invalswegen
Bouwvoorschriften:
Diepte gelijkvloers: Maximaal 18 meter
Kroonlijsthoogte: Maximaal 4 meter
Dakvorm: Hellend dak verplicht
Voordelen:
Uniek open groenzicht
Ideaal voor de combinatie wonen en paarden houden
Aansluitkosten nutsvoorzieningen ten laste van de kopers. Gas, water en elektriciteit aanwezig in de straat.
Gemakkelijke toegang tot belangrijke invalswegen
Verkoopsbaarheidsattesten aanwezig
Bent u op zoek naar een bouwgrond op een uitstekende ligging? Neem vandaag nog contact met ons op voor een bezichtiging 053/60.65.60.
Energie
Op de kaart

Downloads
- Bodemattest B320a.pdf (pdf)
- Bodemattest B321b.pdf (pdf)
- Kadastraal plan.pdf (pdf)
- STED B320a.pdf (pdf)
- STED B321b.pdf (pdf)
- Gewestinfo B321b.pdf (pdf)
- OnroerendErfgoed B321b.pdf (pdf)
- Overstromingsgevaar B321b.pdf (pdf)
- RechtVanVoorkoop B321b.pdf (pdf)
- Gewestinfo B320a.pdf (pdf)
- OnroerendErfgoed B320a.pdf (pdf)
- Overstromingsgevaar B320a.pdf (pdf)
- RechtVanVoorkoop B320a.pdf (pdf)
Financieel
| Prijs |
|---|
Berekening kosten
Je aankoopkosten? Die heb je snel berekend via de knop hieronder.
Bijkomende info
Perceel
| P-score | D |
|---|---|
| Voorkeurrecht | Nee |
| Totale oppervlakte (m²) | 9274 |
Vergunning
| Vergunning | Vergunning beschikbaar |
|---|---|
| Verkavelingsvergunning | Vergunning beschikbaar |
| Bouwovertreding | Geen |
| Bouwovertreding dagvaardiging | Geen |
| Type gebied | Landelijk |
Een pand van
Immo De Ras
IMMO DE RAS
IMMO DE RAS, jouw vastgoedexpert bij het vinden van een nieuwe bestemming voor uw vastgoed. Verkoop en verhuur van huizen, appartementen en gronden. Wij helpen u graag verder met ons groot aanbod te koop in regio Lede, Erpe-Mere, Sint-Lievens-Houtem, Herzele, Zottegem, Wichelen, Wetteren, ... Services: gratis schatting, kopen en verkopen, projectontwikkeling, certificaten en keuringen.
6116413
Leer meer over vastgoed
Nieuw
23 March 2026
Op Spotto zoeken als een pro: 10 slimme tips
21 March 2026
Hoeveel kan ik lenen om een huis te kopen?
01 March 2026
Wanneer heb ik een bouwvergunning of omgevingsvergunning nodig?
17 February 2026