Vastgoed Select: Te renoveren kangeroewonen met 4 slaapkamers, badkamer en garage in het centrum van Maldegem – 376 m² perceel
€ 198.000
Een pand van Vastgoed Select
Overzicht
- 174 m² bewoonbaar
- 376 m² grond
- 4 Slaapkamer(s)
- 1 Tuin
- 1 Garage(s)
Beschrijving
🏡 Dit pand wordt aangeboden door Vastgoed Select 🏡
Voor meer informatie, extra foto’s en een uitgebreide beschrijving, gaan naar onze website Vastgoed Select!
🌐 Website: www.vastgoedselect.be
📞 Bel ons op: 0468 44 55 66
📧 Stuur een e-mail naar: info@vastgoedselect.be
Deze te renoveren woning in het hart van Maldegem, gelegen aan Karreweg 14, biedt tal van mogelijkheden om naar eigen smaak in te richten. Uniek aan deze woning is dat ze beschikt over twee huisnummers, wat een groot potentieel biedt voor kangeroewonen of het combineren van wonen en werken. Met een perceel van 376 m² en een bewoonbare oppervlakte van 174 m² beschikt deze woning over 4 slaapkamers, een badkamer en een praktische indeling die ideaal is voor gezinnen, investeerders of co-housingprojecten. De extra woonkamer en keuken op de eerste verdieping bieden extra flexibiliteit in gebruik.
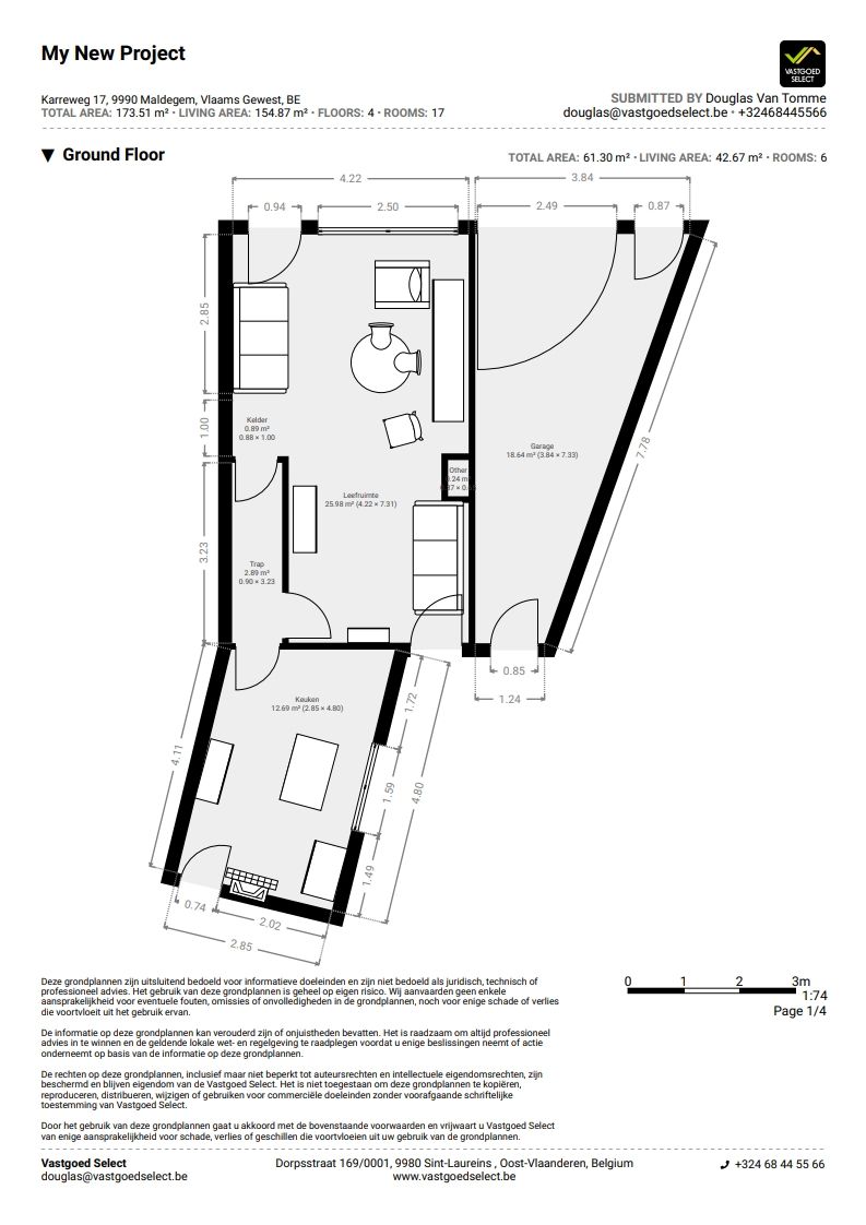
Gelijkvloers:
Woonkamer: Mogelijkheid tot zicht op de tuin.
Keuken: Ideaal om een open keuken te creëren.
Berging: Praktische ruimte voor opslag.
Garage: Geschikt voor een wagen of als extra opbergruimte.
Kelder: Droge opslagruimte of te gebruiken als wijnkelder.
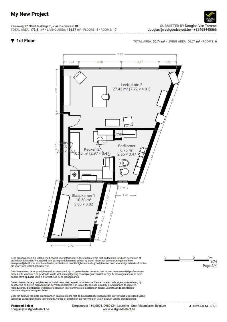
Eerste verdieping:
Woonkamer: Te gebruiken als extra leefruimte, slaapkamer, bureau, of hobbyruimte.
Keuken: Transformeerbaar tot wasruimte, extra badkamer, of slaapkamer.
Badkamer: Gelegen op de eerste verdieping, geschikt om te moderniseren tot een stijlvolle badkamer.
Slaapkamer 1: Ruime kamer, perfect voor ouders of logees.
Tweede verdieping:
3 slaapkamers: Drie lichtrijke kamers, naar eigen smaak in te richten als slaapkamers, logeerkamers of hobbyruimtes.
Mogelijkheden
Met haar twee huisnummers biedt deze woning ideale mogelijkheden voor kangeroewonen, een praktijkruimte aan huis, of een combinatie van wonen en verhuren. De indeling biedt flexibiliteit, waarbij de extra woonkamer en keuken op de eerste verdieping eenvoudig kunnen worden aangepast. Denk aan een kantoor, atelier of een multifunctionele ruimte. Dankzij de slaapkamer en badkamer op de eerste verdieping kan de woning eveneens geschikt zijn voor wie een aparte verdeling van woon- en slaapzones wenst.
Deze woning ligt in het centrum van Maldegem, op wandelafstand van:
Winkels en supermarkten: Voor al uw dagelijkse boodschappen.
Scholen en kinderopvang: Ideaal voor gezinnen.
Horeca en recreatie: Gezellige eetgelegenheden en ontspanningsmogelijkheden in de buurt.
Openbaar vervoer: Goede verbindingen naar omliggende steden en dorpen.
Met een perceel van 376 m² biedt de woning voldoende buitenruimte voor een tuin of terras.
Interesse?
Contacteer Vastgoed Select voor meer informatie of een bezichtiging en ontdek het potentieel van deze unieke woning. Maak van dit renovatieproject uw droomwoning in het hart van Maldegem!
Voor meer informatie, extra foto’s en een uitgebreide beschrijving, gaan naar onze website Vastgoed Select!
🌐 Website: www.vastgoedselect.be
📞 Bel ons op: 0468 44 55 66
📧 Stuur een e-mail naar: info@vastgoedselect.be
Deze te renoveren woning in het hart van Maldegem, gelegen aan Karreweg 14, biedt tal van mogelijkheden om naar eigen smaak in te richten. Uniek aan deze woning is dat ze beschikt over twee huisnummers, wat een groot potentieel biedt voor kangeroewonen of het combineren van wonen en werken. Met een perceel van 376 m² en een bewoonbare oppervlakte van 174 m² beschikt deze woning over 4 slaapkamers, een badkamer en een praktische indeling die ideaal is voor gezinnen, investeerders of co-housingprojecten. De extra woonkamer en keuken op de eerste verdieping bieden extra flexibiliteit in gebruik.
Gelijkvloers:
Woonkamer: Mogelijkheid tot zicht op de tuin.
Keuken: Ideaal om een open keuken te creëren.
Berging: Praktische ruimte voor opslag.
Garage: Geschikt voor een wagen of als extra opbergruimte.
Kelder: Droge opslagruimte of te gebruiken als wijnkelder.
Eerste verdieping:
Woonkamer: Te gebruiken als extra leefruimte, slaapkamer, bureau, of hobbyruimte.
Keuken: Transformeerbaar tot wasruimte, extra badkamer, of slaapkamer.
Badkamer: Gelegen op de eerste verdieping, geschikt om te moderniseren tot een stijlvolle badkamer.
Slaapkamer 1: Ruime kamer, perfect voor ouders of logees.
Tweede verdieping:
3 slaapkamers: Drie lichtrijke kamers, naar eigen smaak in te richten als slaapkamers, logeerkamers of hobbyruimtes.
Mogelijkheden
Met haar twee huisnummers biedt deze woning ideale mogelijkheden voor kangeroewonen, een praktijkruimte aan huis, of een combinatie van wonen en verhuren. De indeling biedt flexibiliteit, waarbij de extra woonkamer en keuken op de eerste verdieping eenvoudig kunnen worden aangepast. Denk aan een kantoor, atelier of een multifunctionele ruimte. Dankzij de slaapkamer en badkamer op de eerste verdieping kan de woning eveneens geschikt zijn voor wie een aparte verdeling van woon- en slaapzones wenst.
Deze woning ligt in het centrum van Maldegem, op wandelafstand van:
Winkels en supermarkten: Voor al uw dagelijkse boodschappen.
Scholen en kinderopvang: Ideaal voor gezinnen.
Horeca en recreatie: Gezellige eetgelegenheden en ontspanningsmogelijkheden in de buurt.
Openbaar vervoer: Goede verbindingen naar omliggende steden en dorpen.
Met een perceel van 376 m² biedt de woning voldoende buitenruimte voor een tuin of terras.
Interesse?
Contacteer Vastgoed Select voor meer informatie of een bezichtiging en ontdek het potentieel van deze unieke woning. Maak van dit renovatieproject uw droomwoning in het hart van Maldegem!
Energie
![]() |
- EPC Certificaat: 20241120-0003453332-RES-1
- Energieverbruik: 535 kWh/m²/jaar
- E-peil: E0
- Beglazing: Onbekend
Let op, de renovatieverplichting in Vlaanderen verplicht de koper om deze woning na aankoop te renoveren tot een betere energieprestatie. Lees er alles over in dit artikel
Extra budget nodig voor je renovatie?
De overheid helpt je dit pand energetisch te renoveren! Hieronder zie je het premiebedrag dat je mogelijks van de overheid krijgt.
Het huidige EPC-label is:

Op de kaart

Financieel
| Prijs |
|---|
Berekening kosten
Je aankoopkosten? Die heb je snel berekent via de knop hieronder.
Bijkomende info
Gebouw
| Bouwjaar | 1930 |
|---|---|
| Staat | Te renoveren |
| Bewoonbaar (m²) | 174 |
| Badkamers | 0 |
| Slaapkamers | 4 |
| Verdiepingen | 0 |
| Garages | 1 |
| Parkeerplaatsen | 0 |
| Toiletten | 0 |
Faciliteiten
| Septische tank | Nee |
|---|
Perceel
| Overstromingsgevoelig | Geen |
|---|---|
| P-score | A |
| G-score | A |
| Totale oppervlakte (m²) | 376 |
| Bebouwde oppervlakte (m²) | 0 |
| Tuin oppervlakte (m²) | 0 |
| Oriëntatie tuin | Zuidwest |
Vergunning
| Verkavelingsvergunning | Geen beschikbaar |
|---|
Uitrusting
| Investeringspand | Nee |
|---|---|
| Parking | Nee |
| Garage | Ja |
| Tuin | Ja |
| Lift | Nee |
| Rioolaansluiting | Nee |
| Gasaansluiting | Nee |
| Wateraansluiting | Nee |
| Elektriciteitsaansluiting | Nee |
| Internetaansluiting | Nee |
| Telefoonaansluiting | Nee |
| Zonnepanelen | Nee |
| Zonneboiler | Nee |
| Alarm | Nee |
| Videofoon | Nee |
| Grondwaterput | Nee |
Een pand van
Vastgoed Select
Vastgoed Select: Uw Weg naar Vastgoedsucces
Welkom bij Vastgoed Select - uw betrouwbare partner in vastgoedzaken. Wij zijn toegewijd aan het leveren van hoogwaardige diensten en oplossingen voor al uw vastgoedbehoeften. Of u nu op zoek bent naar een nieuw thuis, een investeringsmogelijkheid zoekt of professioneel advies nodig heeft bij vastgoedtransacties, ons ervaren team staat klaar om u te begeleiden door elke stap van het proces. Met een diepgaande kennis van de markt en een persoonlijke benadering streven we ernaar om uw doelen te realiseren en uw verwachtingen te overtreffen. Bij Vastgoed Select geloven we in het opbouwen van langdurige relaties gebaseerd op vertrouwen, integriteit en excellentie. Neem vandaag nog contact met ons op en ontdek hoe we u kunnen helpen uw vastgoeddromen waar te maken.
VS 1-097CCC
Leer meer over vastgoed
Nieuw
24 November 2025
Uitgezocht voor jouw gemeente: Hoeveel stijgt de waarde van je woning door een renovatie?
22 October 2025
Hoeveel kan ik lenen om een huis te kopen?
11 June 2025
Huis kopen met bouwovertreding? Dit moet je weten
11 May 2025



