Landelijke nieuwbouwwoning
€ 414.061
Een pand van Futurimmo
Favoriet
Jouw zoektocht
Jouw scoretabel voor dit pand
Aan het laden...
Jouw geplande bezichtigingen
Aan het laden...
Overzicht
- 317 m² grond
- 3 Slaapkamer(s)
- 1 Badkamer(s)
- 2 Toilet(ten)
- 1 Tuin
- 1 Garage(s)
Beschrijving
Deze charmante landelijke nieuwbouwwoning is gelegen vlakbij het centrum van Maldegem.
De tuin is oostelijk georiënteerd en kijkt op de nieuw aangelegde groenzone.
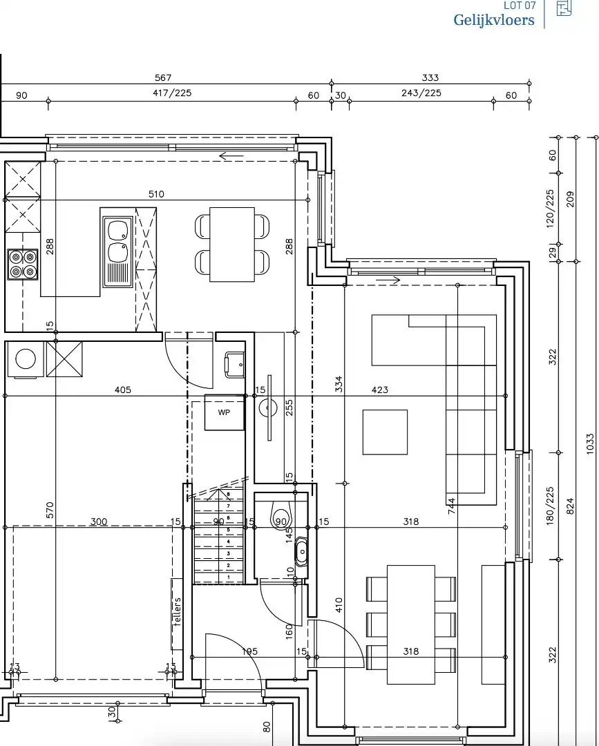
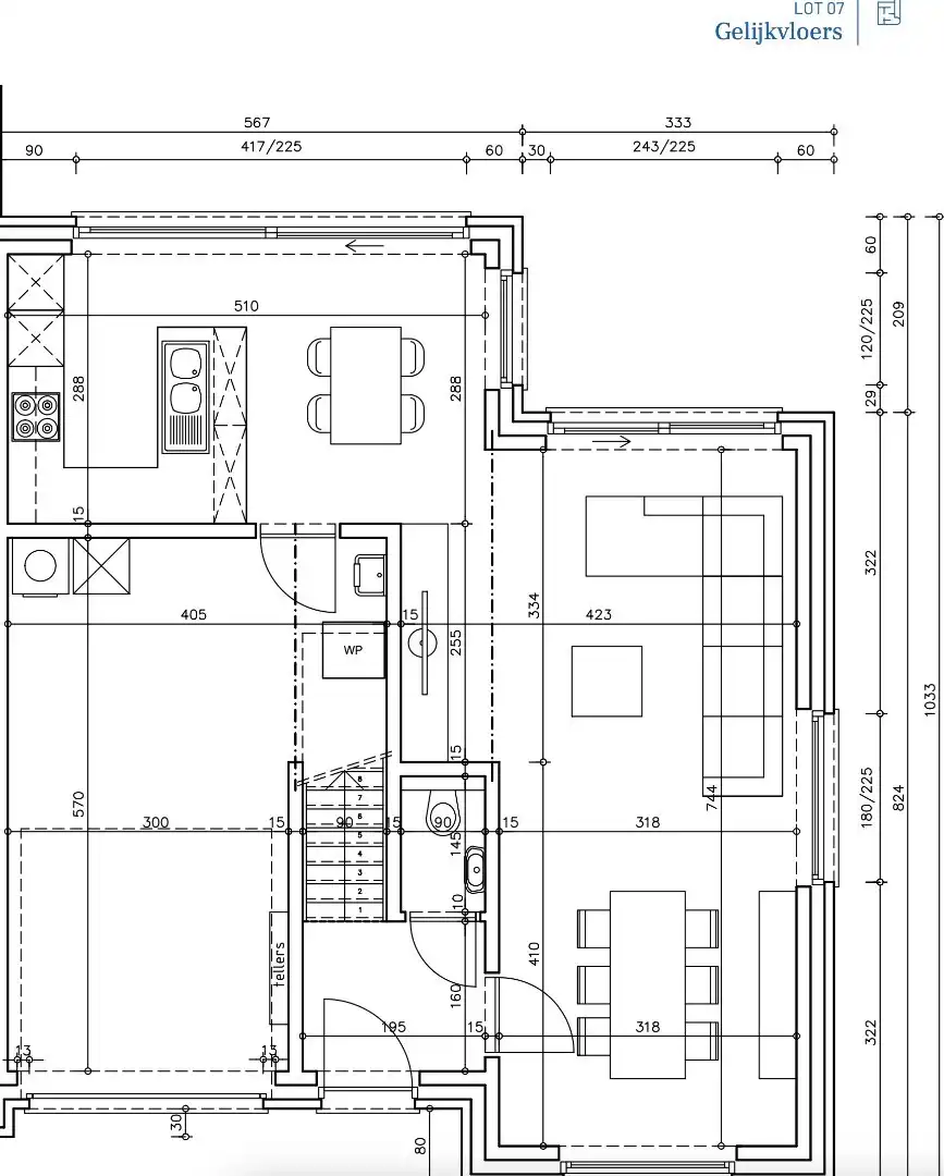
De woning geniet van een optimale woningindeling met op het gelijkvloers een inpandige garage, een inkomhal met gastentoilet en een lichtrijke leefruimte met open keuken.
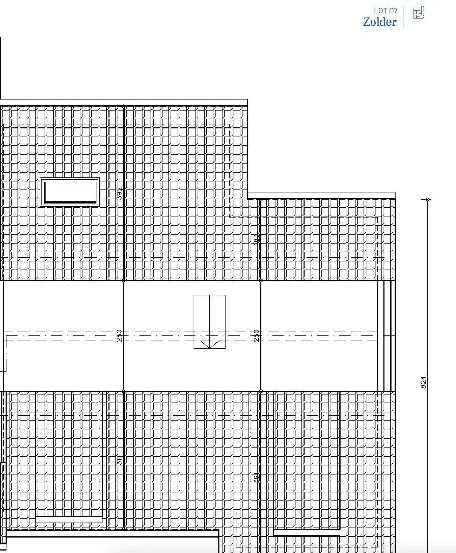
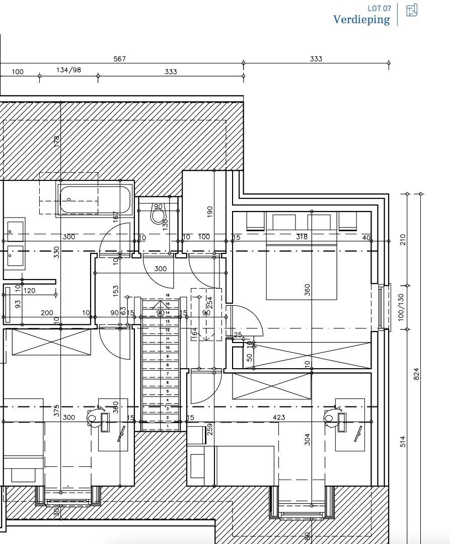
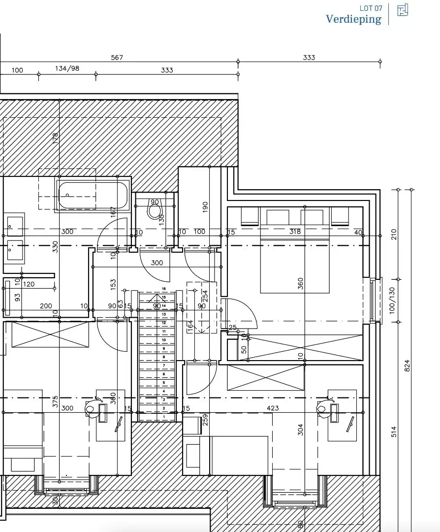
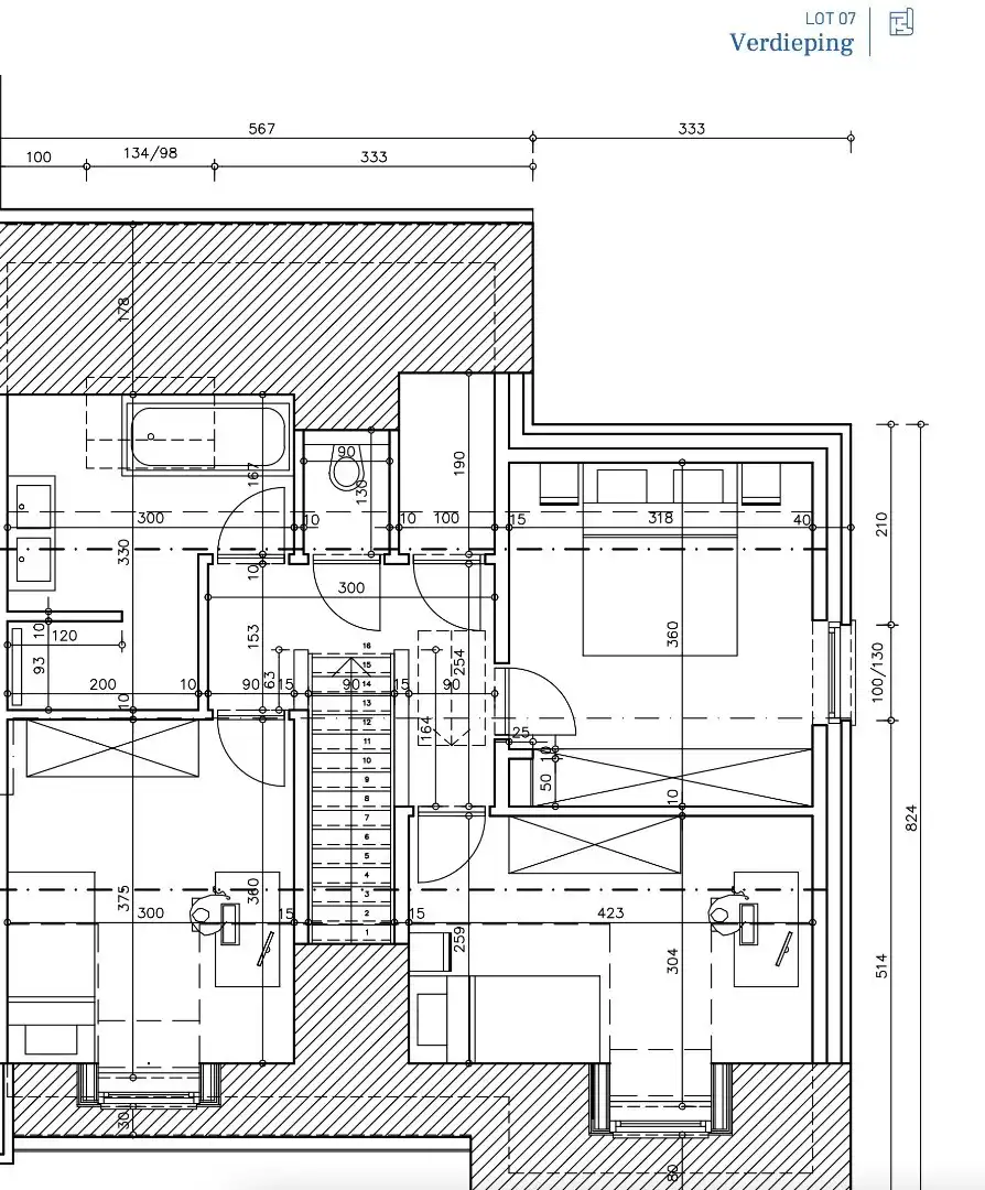
Op de eerste verdieping bevinden zich 3 slaapkamers en een badkamer met bad + inloopdouche. De praktische zolder is toegankelijk met een uitschuifbare zoldertrap. Deze woning is ondertussen in volle opbouw, de afwerking kan door u zelf of door ons gebeuren. Standaard zijn sowieso energiezuinige technieken inbegrepen: er is geluidswerende beglazing, een warmtepomp, ventilatie D en vloerverwarming op beide verdiepingen voorzien.
Zie jij jezelf hier wonen? We begeleiden je graag op weg naar je nieuwe (t)huis. Contacteer ons 0470 50 50 50 of info@futurimmo.be.
De tuin is oostelijk georiënteerd en kijkt op de nieuw aangelegde groenzone.
De woning geniet van een optimale woningindeling met op het gelijkvloers een inpandige garage, een inkomhal met gastentoilet en een lichtrijke leefruimte met open keuken.
Op de eerste verdieping bevinden zich 3 slaapkamers en een badkamer met bad + inloopdouche. De praktische zolder is toegankelijk met een uitschuifbare zoldertrap. Deze woning is ondertussen in volle opbouw, de afwerking kan door u zelf of door ons gebeuren. Standaard zijn sowieso energiezuinige technieken inbegrepen: er is geluidswerende beglazing, een warmtepomp, ventilatie D en vloerverwarming op beide verdiepingen voorzien.
Zie jij jezelf hier wonen? We begeleiden je graag op weg naar je nieuwe (t)huis. Contacteer ons 0470 50 50 50 of info@futurimmo.be.
Energie
- E-peil: E30
- Verwarming: Geen
- Beglazing: Onbekend
Op de kaart

Financieel
| Prijs | |
|---|---|
| Kadastraal inkomen (niet geïndexeerd) | € 0 |
| Kadastraal inkomen (geïndexeerd) | € 0 |
Berekening kosten
Je aankoopkosten? Die heb je snel berekend via de knop hieronder.
Bijkomende info
Gebouw
| Bouwjaar | 2024 |
|---|---|
| Is beschermd | Nee |
| Gevelbreedte | 9 |
| Badkamers | 1 |
| Slaapkamers | 3 |
| Verdiepingen | 2 |
| Garages | 1 |
| Parkeerplaatsen | 1 |
| Toiletten | 2 |
Faciliteiten
| Keuken | Open keuken |
|---|---|
| Keuken uitrusting | Goed uitgerust |
| Luiken | Nee |
| Primair verwarmingstype | Geen verwarming |
| Brandstof primaire verwarming | Geen |
| Warm water type | Geen verwarming |
Perceel
| Overstromingsgevoelig | Geen |
|---|---|
| P-score | A |
| G-score | A |
| Voorkeurrecht | Nee |
| Totale oppervlakte (m²) | 317 |
| Oriëntatie tuin | Oost |
Vergunning
| Vergunning | Vergunning beschikbaar |
|---|---|
| Verkavelingsvergunning | Vergunning beschikbaar |
| Type gebied | Stedelijk |
Uitrusting
| Meerdere eigenaars | Nee |
|---|---|
| Geschikt als kangoeroewoning | Nee |
| Geschikt voor rolstoelgebruikers | Nee |
| Geschikt voor praktijk | Nee |
| Volledig onderkelderd | Nee |
| Parking | Ja |
| Garage | Ja |
| Thuiskantoor | Nee |
| Kelder | Nee |
| Zolder | Ja |
| Opslagruimte | Ja |
| Tuin | Ja |
| Terras | Ja |
| Lift | Nee |
| Rioolaansluiting | Ja |
| Gasaansluiting | Nee |
| Wateraansluiting | Ja |
| Elektriciteitsaansluiting | Ja |
| TV aansluiting | Nee |
| Internetaansluiting | Nee |
| Zonnepanelen | Nee |
| Zonneboiler | Nee |
| Alarm | Nee |
| Zwembad | Nee |
| Jacuzzi | Nee |
| Toonzaal | Nee |
| Ventilatie | Nee |
Een pand van
Futurimmo
FUTURIMMO
VERKOOP - VERHUUR - VASTGOEDEXPERTISE
TK/0071/2025
Leer meer over vastgoed
23 March 2026
Op Spotto zoeken als een pro: 10 slimme tips
21 March 2026
Hoeveel kan ik lenen om een huis te kopen?
01 March 2026
Wanneer heb ik een bouwvergunning of omgevingsvergunning nodig?
17 February 2026