THE SAGE - Business & Media Park: kantoren vanaf 215m²
Een pand van CEUSTERS
Overzicht
- 581 m² bewoonbaar
Beschrijving
THE SAGE VILVOORDE
Business & Media Park
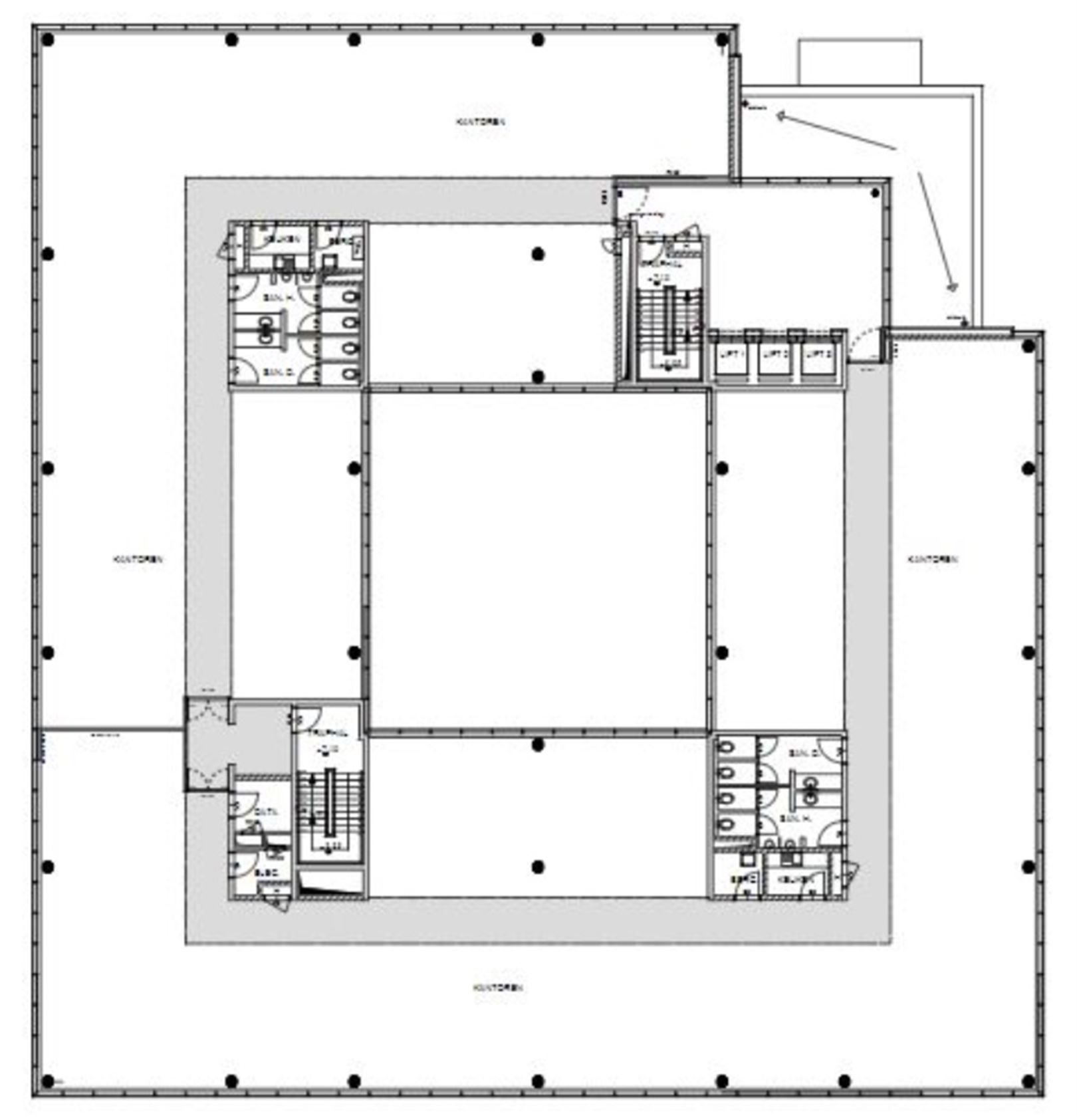
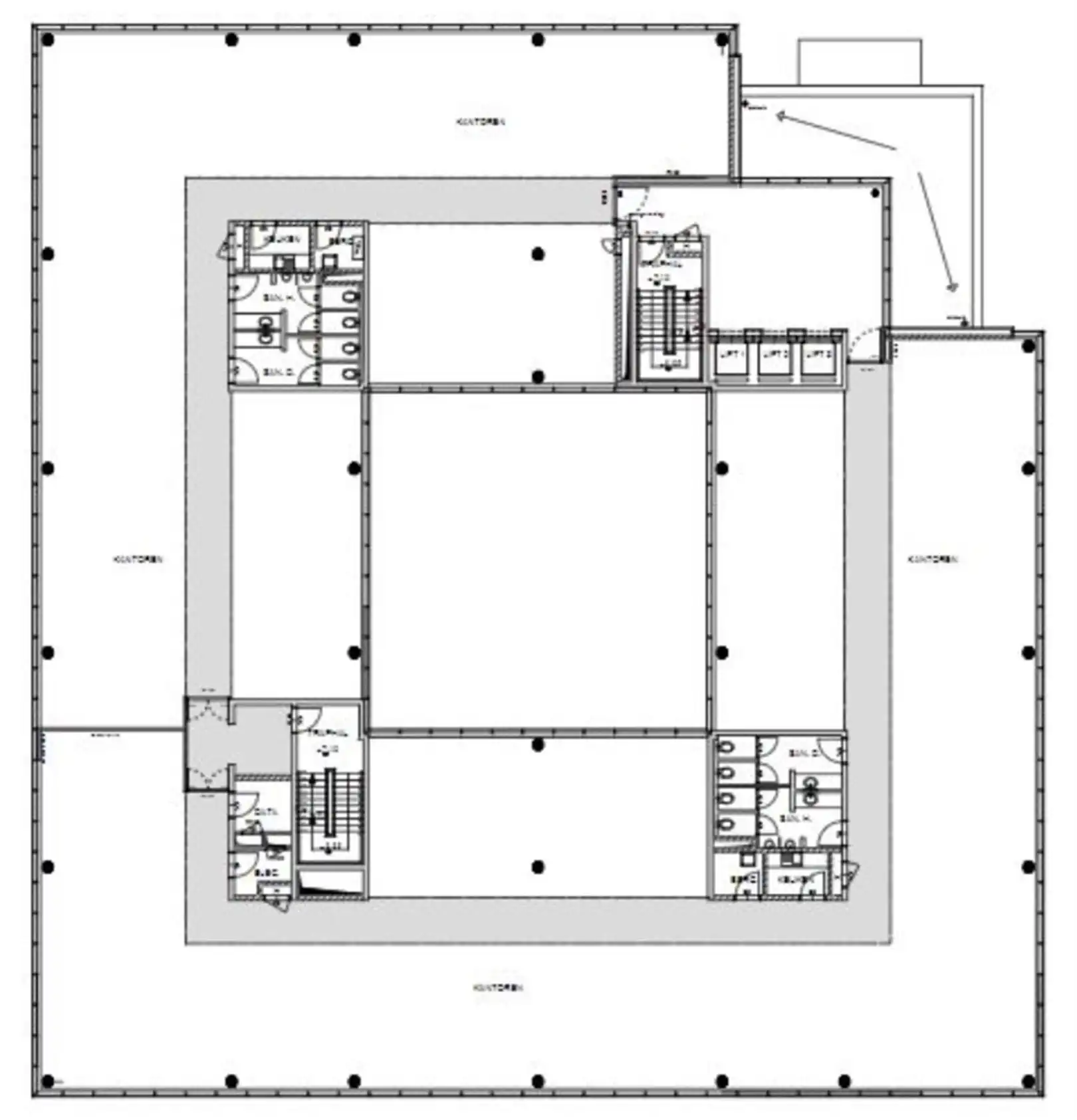
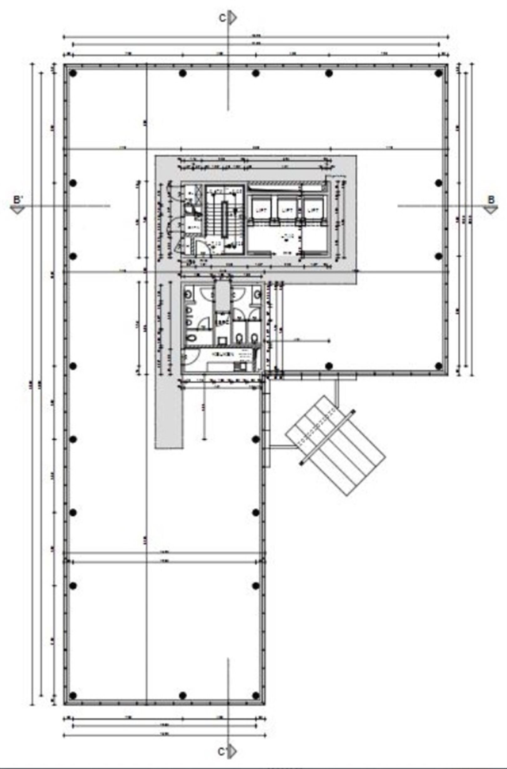
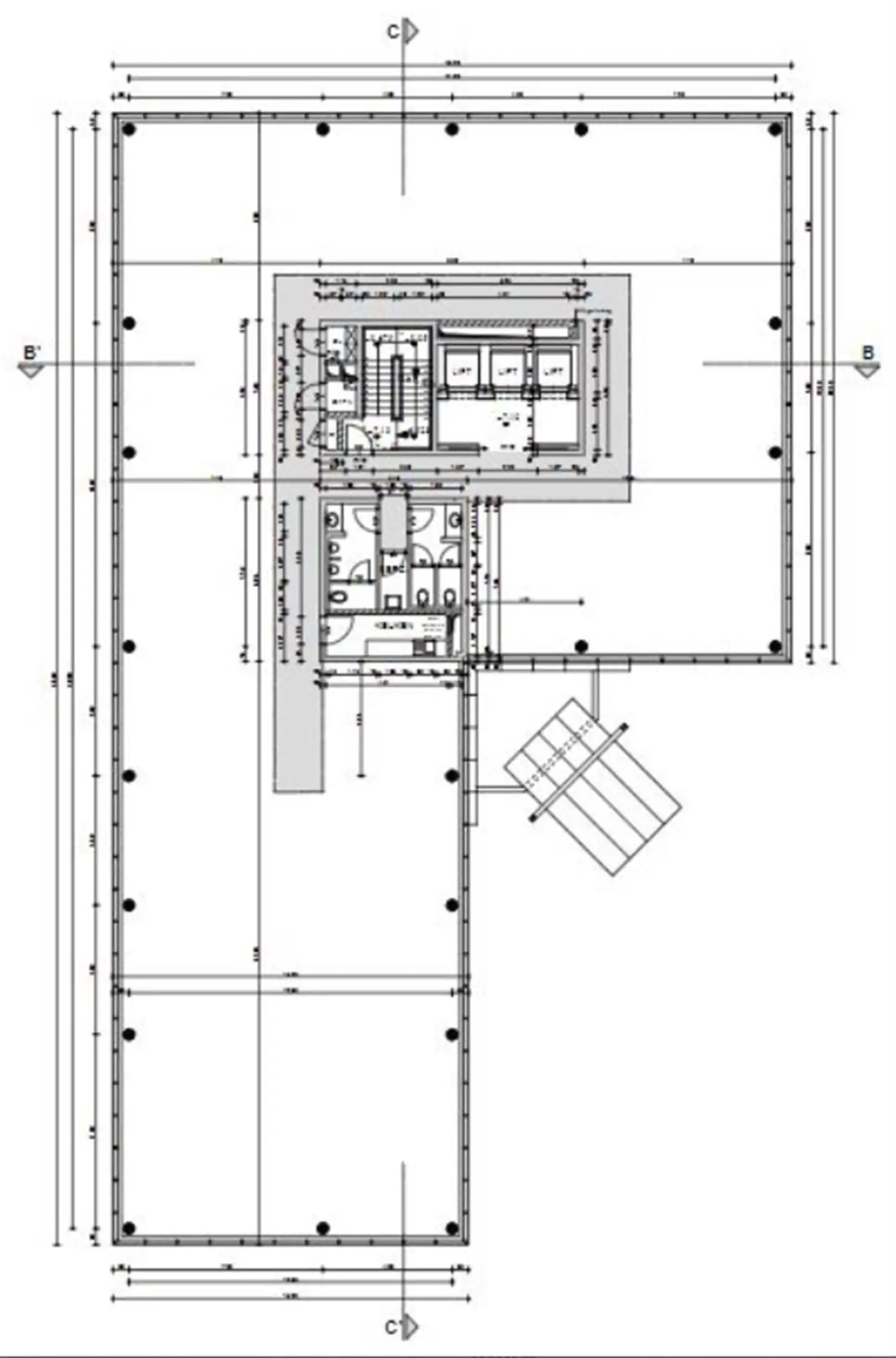
Een kantoorcomplex bestaande uit 3 afzonderlijke gebouwen, met een oppervlakte van +/- 22.000 m².
Kantoren te huur vanaf 408m² tot 3000m². Op de vierde verdieping bevindt zich een uitstekende kans voor kandidaten die op zoek zijn naar een oppervlakte van ongeveer 250m². Deze ruimte geniet van veel natuurlijke lichtinval en biedt een prachtig uitzicht.
Elk gebouw heeft een aparte ingang en eigen voorzieningen wat betreft ondergrondse-en buiten parkings.
De VTM-headquaters bevinden zich tegenover het complex.
De gebouwen liggen in het groen nabij het Domein Drie Fonteinen met zijn restaurant en grote groene omgeving waar men kan joggen en in de zomer van de zon genieten.
Renovatiewerken o.a.:
- verfraaiing van liften
- HVAC: nieuwe koeltoestellen, aanpassing van het verwarmingssysteem
- dakrenovatie
- vernieuwing van de verlichtingsarmaturen
- herstelling van de sanitaire voorzieningen
- nieuwe douches en fitness
- volledige renovatie van het restaurant van het complex
- renovatie van de inkomhallen
- aanleg van een overdekte fietsenstalling (+ laadpalen)
- parking met gemeenschappelijke laadpalen
- nieuwe terrassen
- nieuwe garagepoort
- aanwezigheid van crèche
De kantoorruimten in gebouw 32 zijn allen opsplitsbaar indien gewenst.
De 714m² op het vierde verdiep zijn opsplitsbaar in 215m² en 499m².
De ruimte M30 V3 wordt bemeubeld verhuurd aan 125€/m².
Uitzonderlijke opportuniteit in het gebouw 28B: ingerichte kantoor van 1.352m² op de 3de verdieping - prijs te bespreken.
*********
Niet wat je zoekt ?
Bezoek onze website: www.ceusters.be of contacteer ons onmiddellijk om een gepersonaliseerde selectie te ontvangen: office@ceusters.be
*********
Energie
![]() |
- E-peil: E0
- Beglazing: Onbekend
Op de kaart

Financieel
| Maandelijkse kosten | € 0 |
|---|---|
| Kadastraal inkomen (niet geïndexeerd) | € 0 |
| Kadastraal inkomen (geïndexeerd) | € 0 |
Bijkomende info
Gebouw
| Bouwcertificaat | Nee |
|---|---|
| Bewoonbaar (m²) | 581 |
| Verdieping | 0 |
| Badkamers | 0 |
| Slaapkamers | 0 |
| Verdiepingen | 0 |
| Garages | 0 |
| Parkeerplaatsen | 0 |
| Doucheruimtes | 0 |
| Toiletten | 0 |
Faciliteiten
| Elektrisch keuringsattest | Ja |
|---|
Perceel
| Overstromingsgevoelig | Geen |
|---|---|
| Voorkeurrecht | Nee |
| Bebouwde oppervlakte (m²) | 0 |
| Tuin oppervlakte (m²) | 0 |
| Oppervlakte terras (m²) | 0 |
Vergunning
| Vergunning | Vergunning beschikbaar |
|---|
Uitrusting
| Investeringspand | Nee |
|---|---|
| Geschikt voor praktijk | Nee |
| Parking | Nee |
| Garage | Nee |
| Thuiskantoor | Nee |
| Kelder | Nee |
| Zolder | Nee |
| Tuin | Nee |
| Terras | Nee |
| Lift | Nee |
| Rioolaansluiting | Ja |
| Gasaansluiting | Ja |
| Wateraansluiting | Ja |
| Elektriciteitsaansluiting | Ja |
| TV aansluiting | Ja |
| Internetaansluiting | Ja |
| Telefoonaansluiting | Ja |
Appartementsblok
| Naam residentie | THE SAGE |
|---|---|
| Lift | Nee |
