Nieuwbouw KMO unit te Wijnegem
€ 4.306,67
Een pand van CEUSTERS
Overzicht
- 608 m² bewoonbaar
Beschrijving
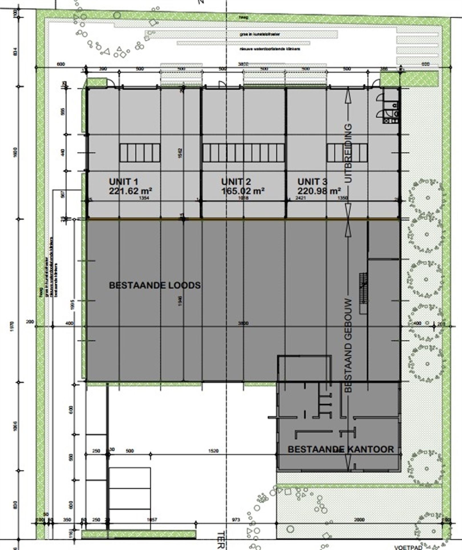
Te huur: nieuwbouw KMO magazijnen van in totaal 608m² of 2 aparte units van 387 m² en 221 m² in Industrieterrein Den Hoek bij Wijnegem Shopping Center
Bent u op zoek naar de perfecte locatie voor uw onderneming? Deze nieuwbouw KMO units bieden veelzijdige bedrijfsruimte, gelegen in het industrieterrein Den Hoek, vlak om de hoek van het Wijnegem Shopping Center. Profiteer van een strategische ligging met uitstekende bereikbaarheid via verschillende grote verkeersassen in alle richtingen.
Belangrijke kenmerken van deze KMO unit(s):
- Ruime en Goed Geïsoleerde Bedrijfsruimte: Met 608m² (387 & 221 m2) aan beschikbare ruimtes zijn deze units ideaal voor diverse bedrijfsactiviteiten. De uitstekende isolatie zorgt voor een energie-efficiënte werkomgeving.
- Toegankelijke Locatie: De units zijn bereikbaar via een brede toegang van 6 meter aan de zijkant van een bestaand bedrijfsperceel, wat zorgt voor eenvoudig laden en lossen, zelfs voor grote vrachtwagens.
- Vrij Uitzicht en Groen Omkaderd: Geniet van een open en vrij uitzicht met een groene omkadering, wat bijdraagt aan een aangename werkomgeving.
- Ruime Parkeergelegenheid: Uw medewerkers en klanten kunnen gebruikmaken van de ruime parkeergelegenheid, die plaats biedt aan totaal 6 wagens (4+2 wagens per unit inbegrepen in de prijs).
- Strategische Ligging: De nabijheid van het Wijnegem Shopping Center en belangrijke verkeersassen maakt dit pand uitstekend bereikbaar en zeer aantrekkelijk voor uw bedrijf.
Dit pand biedt tal van mogelijkheden voor uw onderneming, of u nu op zoek bent naar opslagruimte, een productielocatie of een combinatie daarvan.
Grijp deze unieke kans en geef uw bedrijf de ruimte om te groeien en te bloeien in 1 van deze hoogwaardige KMO units!
Kenmerken:
- Oppervlakte totaal gebouw ca. 608 m2 (ca. 38 m x 16 m) – Unit 1+2= 387m² , unit 3 = 221m²
- Staalconstructie met geïsoleerde KINGSPAN sandwichpanelen en betonrand
- Geïsoleerd steeldeck dak
- Verticale strakke glaspartijen van ca. 5 m hoog met glazen toegangsdeur
- 3 x geautomatiseerde lichtstraten,
- Vrije hoogte van 6 m
- Geïsoleerde polybetonvloer met een draagkracht van 3 ton/m2
- Electriciteitsvoorziening: 3-fasig: 27.7 kVa: unit 1+2, 22.2 kVa: unit 3
- Sectionaal poorten (4 m breed x 4.25 hoog) met landscape raampartij,
- LED verlichtingsarmaturen aanwezig binnen en buiten
- Aansluiting op openbare riolering
- Gasaansluiting + Circuit vloerverwarming aanwezig in betonvloer
- Parkeerplaatsen : 6 stuks (4+2 ) , uitbreiding naar 9 mogelijk mits 3 optioneel bij te huren
- Groene aanleg rond gebouw
- Optie/mogelijkheden tot realisatie van een inpandig kantoor
Energie
- E-peil: E0
- Beglazing: Onbekend
Op de kaart

Financieel
| Prijs | |
|---|---|
| Maandelijkse kosten | € 0 |
| Kadastraal inkomen (niet geïndexeerd) | € 0 |
| Kadastraal inkomen (geïndexeerd) | € 0 |
Bijkomende info
Gebouw
| Bouwcertificaat | Nee |
|---|---|
| Bewoonbaar (m²) | 608 |
| Verdieping | 0 |
| Badkamers | 0 |
| Slaapkamers | 0 |
| Verdiepingen | 0 |
| Garages | 0 |
| Parkeerplaatsen | 0 |
| Doucheruimtes | 0 |
| Toiletten | 0 |
Faciliteiten
| Elektrisch keuringsattest | Nee |
|---|
Perceel
| Overstromingsgevoelig | Geen |
|---|---|
| Voorkeurrecht | Ja |
| Bebouwde oppervlakte (m²) | 0 |
| Tuin oppervlakte (m²) | 0 |
| Oppervlakte terras (m²) | 0 |
Vergunning
| Vergunning | Geen beschikbaar |
|---|---|
| Verkavelingsvergunning | Geen beschikbaar |
Uitrusting
| Investeringspand | Nee |
|---|---|
| Geschikt voor praktijk | Nee |
| Parking | Nee |
| Garage | Nee |
| Thuiskantoor | Nee |
| Kelder | Nee |
| Zolder | Nee |
| Tuin | Nee |
| Terras | Nee |
| Lift | Nee |
| Rioolaansluiting | Ja |
| Gasaansluiting | Ja |
| Wateraansluiting | Ja |
| Elektriciteitsaansluiting | Ja |
| TV aansluiting | Nee |
| Internetaansluiting | Nee |
| Telefoonaansluiting | Nee |
Appartementsblok
| Naam residentie | VOSVELD 15 WIJNEGEM |
|---|---|
| Lift | Nee |