State-of-the-art logistieke nieuwbouw
€ 25.600
Een pand van Lancksweerd Bedrijfsvastgoed
Overzicht
- 7481 m² grond
Beschrijving
State-of-the-art logistieke nieuwbouw te huur gelegen op zichtlocatie aan de E313 (Antwerpen - Luik).
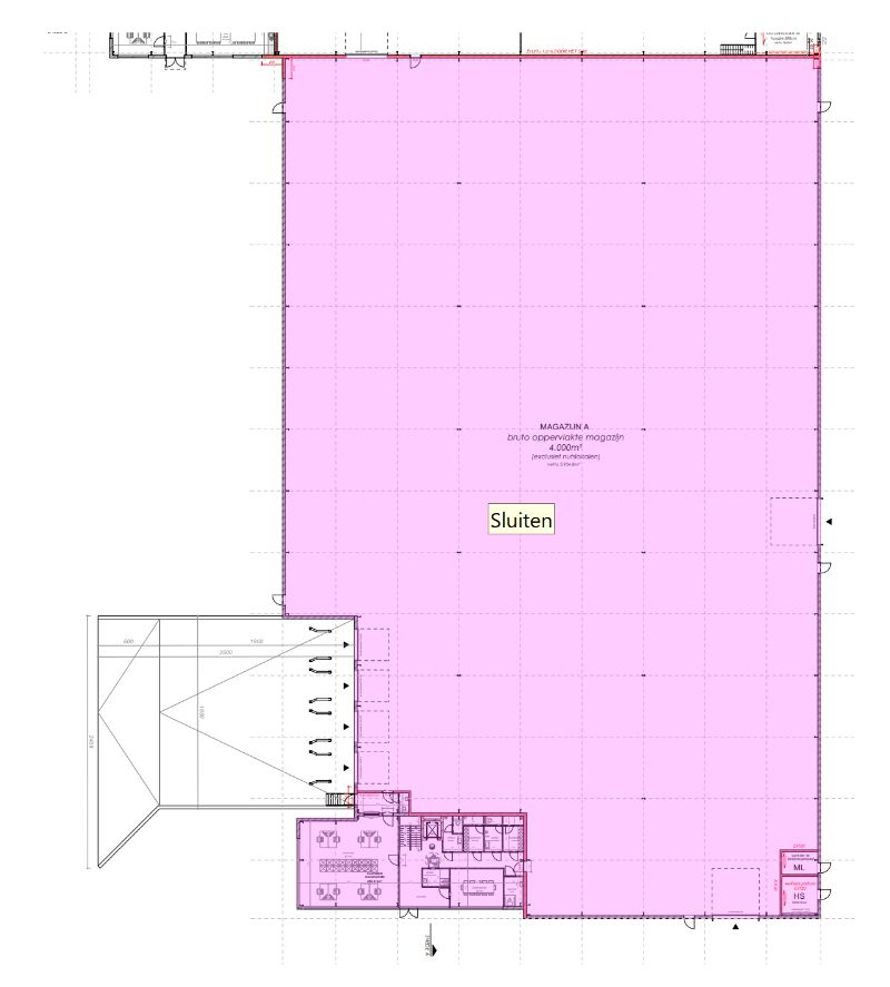
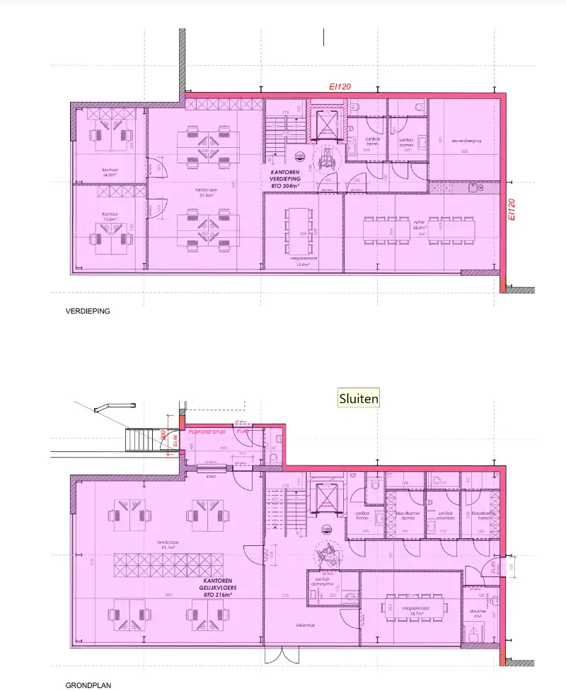
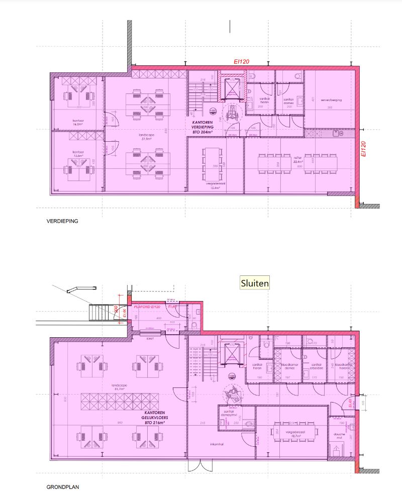
Nieuwbouw unit H beschikt over een magazijn van 4.080 m² en 480 m² kantoorruimte.
Kenmerken gebouw:
- 10 m vrije hoogte
- 2 gelijkvloerse poorten
- 4 laadkades
- HS-cabine
- Zonnepanelen
- Sprinklers
- 24 parkeerplaatsen + laadpalen
De huurprijs is exclusief kosten en het pand is beschikbaar vanaf 1 oktober 2025.
Plan nu uw bezoek met Bram via 0480 66 95 18 of bram@lancksweerd.be
Nieuwbouw unit H beschikt over een magazijn van 4.080 m² en 480 m² kantoorruimte.
Kenmerken gebouw:
- 10 m vrije hoogte
- 2 gelijkvloerse poorten
- 4 laadkades
- HS-cabine
- Zonnepanelen
- Sprinklers
- 24 parkeerplaatsen + laadpalen
De huurprijs is exclusief kosten en het pand is beschikbaar vanaf 1 oktober 2025.
Plan nu uw bezoek met Bram via 0480 66 95 18 of bram@lancksweerd.be
Energie
- E-peil: E0
- Beglazing: Onbekend
Op de kaart

Financieel
| Prijs | |
|---|---|
| Maandelijkse kosten | € 0 |
Bijkomende info
Gebouw
| Badkamers | 0 |
|---|---|
| Slaapkamers | 0 |
| Verdiepingen | 0 |
| Garages | 0 |
| Parkeerplaatsen | 0 |
| Toiletten | 0 |
Faciliteiten
| Septische tank | Nee |
|---|
Perceel
| Totale oppervlakte (m²) | 7481 |
|---|---|
| Bebouwde oppervlakte (m²) | 0 |
Vergunning
| Verkavelingsvergunning | Geen beschikbaar |
|---|
Uitrusting
| Investeringspand | Nee |
|---|---|
| Parking | Nee |
| Garage | Nee |
| Lift | Nee |
| Rioolaansluiting | Nee |
| Gasaansluiting | Nee |
| Wateraansluiting | Nee |
| Elektriciteitsaansluiting | Nee |
| Internetaansluiting | Nee |
| Telefoonaansluiting | Nee |
| Zonnepanelen | Nee |
| Zonneboiler | Nee |
| Alarm | Nee |
| Videofoon | Nee |
| Grondwaterput | Nee |
Appartementsblok
| Lift | Nee |
|---|---|
| Intercom | Nee |
Een pand van
Lancksweerd Bedrijfsvastgoed
Lancksweerd Bedrijfsvastgoed
Als specialist in bedrijfsvastgoed begeleiden wij zowel bedrijven die willen herlokaliseren als projectontwikkelaars die een totaaloplossing zoeken voor de verkoop of verhuur van hun vastgoed. Laat ons dus het perfecte scharnier vormen om uw bedrijf te matchen met de juiste locatie.
VERKOPEN OF VERHUREN
Dankzij onze professionele aanpak en twee generaties aan ervaring, begeleiden wij uw vastgoed naar een succesvolle verkoop of verhuur. Van doorsnee bedrijfsgebouwen tot moeilijkere vastgoedprojecten die eventueel een herbestemming vereisen: wij behandelen elk dossier met een enthousiasme alsof het ons eigen project zou zijn. Wij bieden met andere woorden een totaaloplossing aan en profileren ons daarbij in naam van de projectontwikkelaar, om zowel de aanbieder als de klant een optimale en efficiënte dienstverlening te garanderen.
U wenst uw grond, pand of project te verkopen? Contacteer ons op 03 293 52 55 of op info@lancksweerd.be
Atealaan 71
Leer meer over vastgoed
04 January 2026
Zoek je een kantoor, een magazijn of… iets ertussenin? Bedrijfsvastgoed uitgelegd
05 November 2024
Bedrijfsvastgoed in transitie: ontdek de toekomst van werkplekken
16 October 2024
Opbrengsteigendom: een slim pad naar passief inkomen en vermogensgroei
09 September 2024