Magazijn te huur langs de Hannekenshoek 23 te Herentals
€ 2.319,17
Een pand van OREON PROPERTIES
Favoriet
Jouw zoektocht
Jouw scoretabel voor dit pand
Aan het laden...
Jouw geplande bezichtigingen
Aan het laden...
Overzicht
- 506 m² bewoonbaar
Beschrijving
Nieuwbouw magazijn Unit 7 te huur.
Het gebouw bevindt zich op slechts 800 meter van de Ringlaan van Herentals. Dit zorgt voor een zeer vlotte bereikbaarheid, zowel vanuit Herentals als omliggende steden.
Daarnaast ligt de snelweg E313 (Luik - Hasselt - Antwerpen) op slechts 6km rijden.
Op het terrein zijn meerdere parkeerplaatsen voorzien, waaronder enkele uitgerust met laadpalen voor elektrische voertuigen.
Het gebouw bevindt zich op slechts 800 meter van de Ringlaan van Herentals. Dit zorgt voor een zeer vlotte bereikbaarheid, zowel vanuit Herentals als omliggende steden.
Daarnaast ligt de snelweg E313 (Luik - Hasselt - Antwerpen) op slechts 6km rijden.
Op het terrein zijn meerdere parkeerplaatsen voorzien, waaronder enkele uitgerust met laadpalen voor elektrische voertuigen.
Nieuwbouw magazijn te huur.
Het gebouw bevindt zich op slechts 800 meter van de Ringlaan van Herentals. Dit zorgt voor een zeer vlotte bereikbaarheid, zowel vanuit Herentals als omliggende steden.
Daarnaast ligt de snelweg E313 (Luik - Hasselt - Antwerpen) op slechts 6km rijden.
Op het terrein zijn meerdere parkeerplaatsen voorzien, waaronder enkele uitgerust met laadpalen voor elektrische voertuigen.
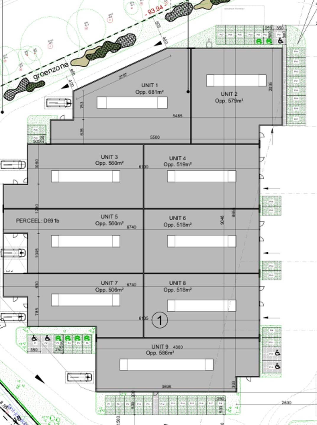
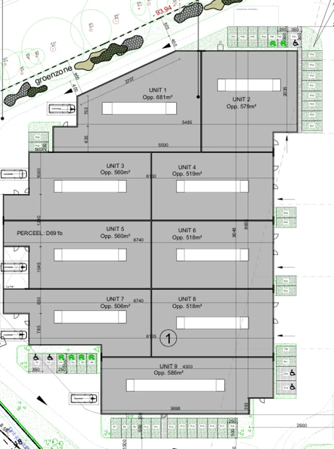
Binnen het gebouw worden meerdere magazijnunits aangeboden, elk met verschillende oppervlaktes.
De volgende units zijn momenteel beschikbaar:
Unit 3: 560 m²
Unit 5: 560 m²
Unit 7: 506 m²
Energie
Op de kaart

Financieel
| Prijs |
|---|
Bijkomende info
Gebouw
| Bewoonbaar (m²) | 506 |
|---|---|
| Badkamers | 0 |
| Slaapkamers | 0 |
| Parkeerplaatsen | 0 |
Faciliteiten
| Type vloer |
|---|
Perceel
| Tuin oppervlakte (m²) | 0 |
|---|
Vergunning
| Vergunning | Geen beschikbaar |
|---|---|
| Verkavelingsvergunning | Geen beschikbaar |
Uitrusting
| Parking | Ja |
|---|---|
| Garage | Nee |
| Tuin | Nee |
| Terras | Nee |
Een pand van
OREON PROPERTIES
Oreon Properties
Vastgoedmakelaar Oreon Properties is uw expert op het vlak van (ver)huur of (ver)koop van kantoren, logistiek of industrieel vastgoed, investeren in vastgoed en vastgoedbeheer. Investeerders en ondernemingen die op zoek zijn naar kantoren, logistiek of industrieel vastgoed kunnen bij Oreon Properties aankloppen voor professioneel advies op maat en begeleiding bij al hun investeringen en vastgoedtransacties.
7278001
Leer meer over vastgoed
04 January 2026
Zoek je een kantoor, een magazijn of… iets ertussenin? Bedrijfsvastgoed uitgelegd
05 November 2024
Bedrijfsvastgoed in transitie: ontdek de toekomst van werkplekken
16 October 2024
Opbrengsteigendom: een slim pad naar passief inkomen en vermogensgroei
09 September 2024