TE HUUR KMO-unit 1
€ 2.400
Een pand van Mertens Vastgoed
Jouw zoektocht
Overzicht
- 320 m² bewoonbaar
Beschrijving
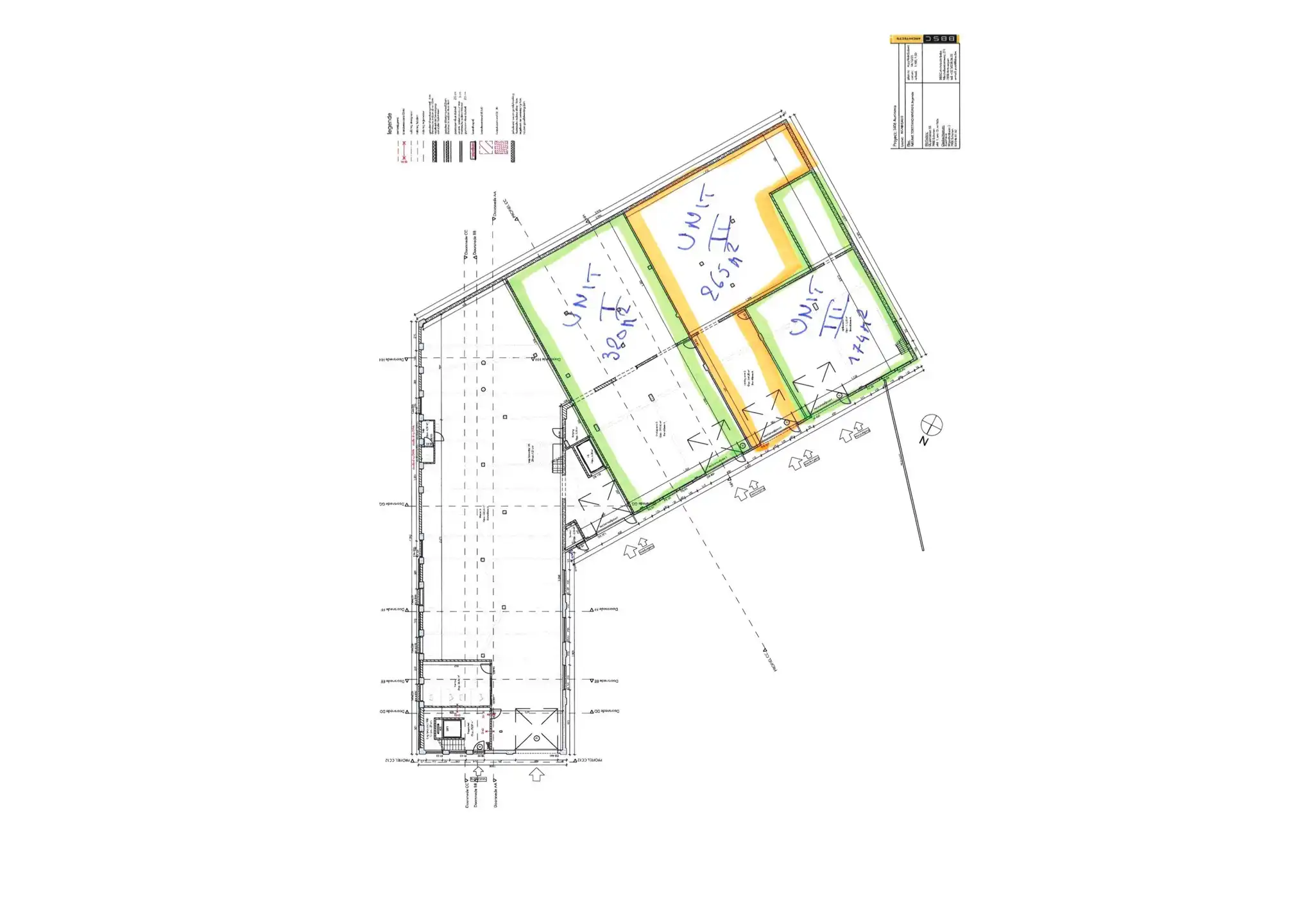
UNIT 1: +/- 320 m2
MAGAZIJN
- Constructie: beton
- Geïsoleerde wanden
- Geïsoleerd dak: beton
- Verlichting: led
- Vrije hoogte: 4,5 m
- Vloer: polybeton met een draagkracht van 3 T/m2
- Elektriciteitsvoorziening: 3 x 220 V
- 1 sectionaalpoort per unit: elektrisch bedienbaar
- Sanitaire voorzieningen bespreekbaar
- Parking: verhard
BUITEN OPSLAG
- Verharding: beton/ asfalt
- Verlichting
- Omheining
Gevraagde verhuurprijs: € 90,00 /m2/jaar + BTW
(exclusief onroerende voorheffing + eventuele algemene kosten)
Beschikbaar vanaf 01/06/2024.
Deze unit ligt in de Sluizenstraat niet ver van het Albertkanaal en het centrum van Schoten/Merksem.
UNIT 1: +/- 320 m2
MAGAZIJN<o:p></o:p>
- Constructie: beton
<o:p></o:p>- Geïsoleerde wanden
<o:p></o:p>- Geïsoleerd dak: beton
<o:p></o:p>- Verlichting: led
<o:p></o:p>- Vrije hoogte: 4,5 m
<o:p></o:p>- Vloer: polybeton met een draagkracht van 3 T/m2
<o:p></o:p>- Elektriciteitsvoorziening: 3 x 220 V
- 1 sectionaalpoort per unit: elektrisch bedienbaar
<o:p></o:p>- Sanitaire voorzieningen bespreekbaar
<o:p></o:p>- Parking: verhard<o:p></o:p>
BUITEN OPSLAG<o:p></o:p>
- Verharding: beton/ asfalt
- Verlichting
- Omheining<o:p></o:p>
Gevraagde verhuurprijs: € 90,00 /m2/jaar + BTW
(exclusief onroerende voorheffing + eventuele algemene kosten)
Beschikbaar vanaf 01/06/2024.
Energie
Op de kaart

Financieel
| Prijs |
|---|
Bijkomende info
Gebouw
| Bewoonbaar (m²) | 320 |
|---|---|
| Badkamers | 0 |
| Slaapkamers | 0 |
| Parkeerplaatsen | 0 |
Faciliteiten
| Type vloer |
|---|
Perceel
| Tuin oppervlakte (m²) | 0 |
|---|
Vergunning
| Vergunning | Geen beschikbaar |
|---|---|
| Verkavelingsvergunning | Geen beschikbaar |
Uitrusting
| Parking | Ja |
|---|---|
| Garage | Nee |
| Zolder | Nee |
| Tuin | Nee |
| Terras | Nee |