Commerciële ruimte te huur
€ 19.000
Een pand van Coenen Vastgoed & Partners
Jouw zoektocht
Overzicht
- 1200 m² bewoonbaar
- 1680 m² grond
- 4 Toilet(ten)
Beschrijving
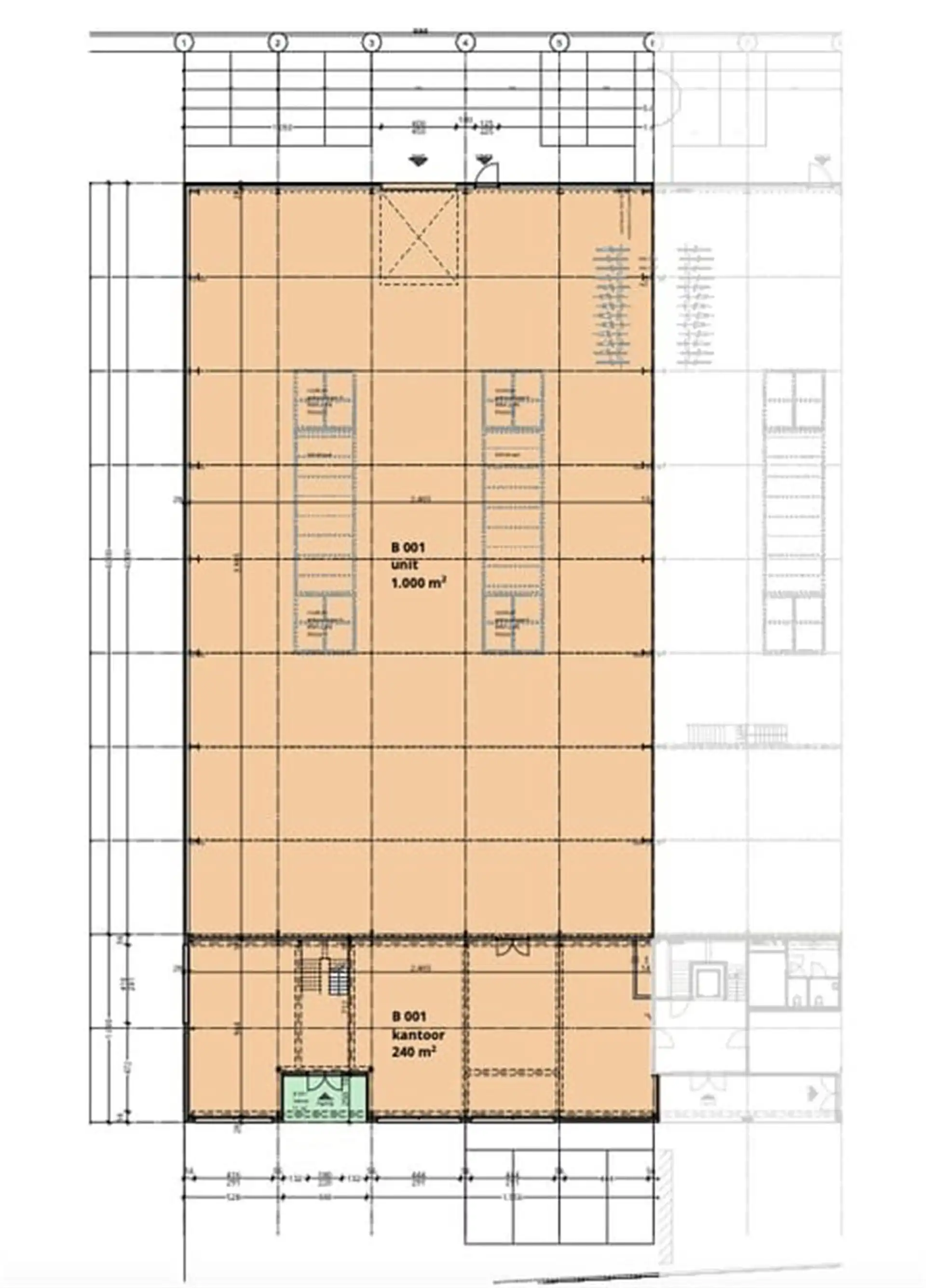
In het bedrijvenpark De Zwaan in Schoten bevindt zich dit recente bedrijfsgebouw met een magazijnruimte van ca. 1.200 m² op een uitstekende locatie vlak bij de op- en afritten van de E19. Dankzij de goede verbindingen en de brede toegangswegen is het pand vlot bereikbaar voor zowel personenwagens als groot transport.
Het magazijn heeft een vrije hoogte van ongeveer 7 meter en is uitgerust met een sectionale poort, LED-verlichting, brandblusapparaten en een elektrische verzwaring tot 166 kVA (240A), geplaatst door Fluvius. Daarnaast is er een nachtpoort (sluis) voorzien. Een mezzanine van circa 200 m² biedt extra opslagruimte en omvat tevens sociale voorzieningen zoals sanitair, douches, kleedruimte en een eet- of bureauruimte. Bijgevoegd kunnen kantoorruimtes van telkens 240 m² op het gelijkvloers en de eerste verdieping worden mee gehuurd. Deze ruimtes bestaan uit een combinatie van individuele kantoren, vergaderzalen en open kantoorruimte, aangevuld met sanitaire voorzieningen en een uitgeruste keuken.
Rond het gebouw zijn 17 parkeerplaatsen beschikbaar, met uitbreidingsmogelijkheden. Dit pand vormt een ideale combinatie van magazijn, kantoor en uitstekende bereikbaarheid.
De huurprijs voor dit volledige nieuwbouwproject bedraagt €19.000 per maand, exclusief gemeenschappelijke lasten - per ruimte te bespreken!
Nabij school, winkels, autosnelweg, openbaar vervoer, etc. Voor meer info ga naar www.coenenvastgoed.be of bel 03/375.82.92.
Energie
![]() |
- E-peil: E0
- Beglazing: Onbekend
Op de kaart

Financieel
| Prijs | |
|---|---|
| Maandelijkse kosten | € 0 |
| Kadastraal inkomen (niet geïndexeerd) | € 0 |
| Kadastraal inkomen (geïndexeerd) | € 0 |
Bijkomende info
Gebouw
| Bouwjaar | 2025 |
|---|---|
| Staat | Goed onderhouden |
| Bouwcertificaat | Nee |
| Bewoonbaar (m²) | 1200 |
| Verdieping | 0 |
| Gevelbreedte | 25 |
| Badkamers | 0 |
| Slaapkamers | 0 |
| Verdiepingen | 0 |
| Garages | 0 |
| Parkeerplaatsen | 17 |
| Doucheruimtes | 0 |
| Toiletten | 4 |
Faciliteiten
| Elektrisch keuringsattest | Nee |
|---|
Perceel
| Diepte (m) | 50 |
|---|---|
| Breedte (m) | 25 |
| Overstromingsgevoelig | Geen |
| P-score | A |
| G-score | A |
| Voorkeurrecht | Nee |
| Totale oppervlakte (m²) | 1680 |
| Bebouwde oppervlakte (m²) | 0 |
| Tuin oppervlakte (m²) | 0 |
| Oppervlakte terras (m²) | 0 |
| Oriëntatie tuin | Noordoost |
Uitrusting
| Investeringspand | Nee |
|---|---|
| Geschikt voor praktijk | Nee |
| Parking | Ja |
| Garage | Nee |
| Thuiskantoor | Nee |
| Kelder | Nee |
| Zolder | Nee |
| Tuin | Nee |
| Terras | Nee |
| Lift | Nee |
| Rioolaansluiting | Nee |
| Gasaansluiting | Nee |
| Wateraansluiting | Ja |
| Elektriciteitsaansluiting | Ja |
| TV aansluiting | Nee |
| Internetaansluiting | Nee |
| Telefoonaansluiting | Nee |
Appartementsblok
| Lift | Nee |
|---|
