NIEUWBOUW - 1 SLAAPKAMER
€ 1.150
Een pand van Immobiliën Carl Martens
Favoriet
Jouw zoektocht
Jouw scoretabel voor dit pand
Aan het laden...
Jouw geplande bezichtigingen
Aan het laden...
Overzicht
- 70 m² bewoonbaar
- 1 Slaapkamer(s)
- 1 Badkamer(s)
- 1 Toilet(ten)
Beschrijving
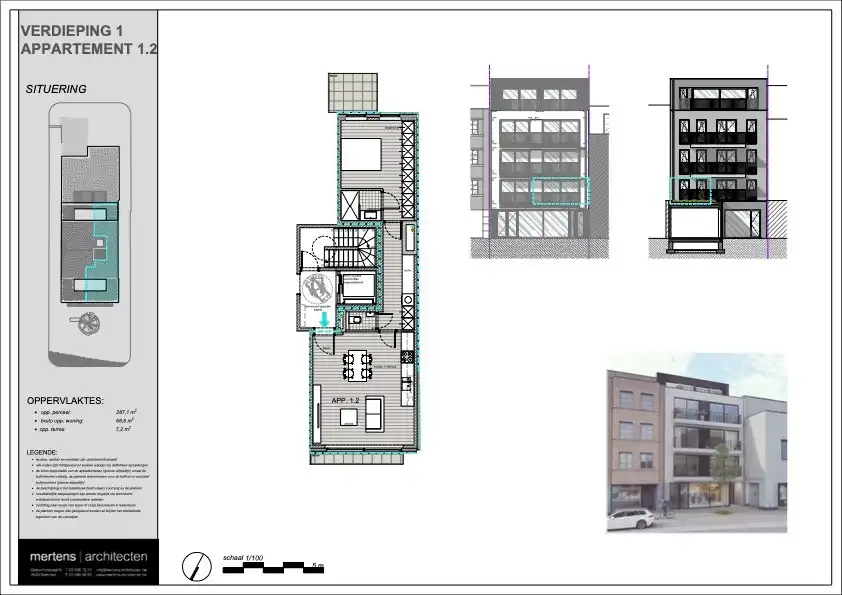
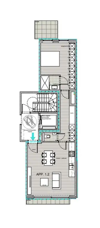
Energiezuinig nieuwbouwappartement afgewerkt met hoogwaardige materialen op een zeer centrale ligging in het dorp van Brasschaat met twee terrassen.
Indeling:
U betreedt het appartement via de inkomhal, die rechtstreeks toegang biedt tot de ruime leefruimte met open keuken. De keuken is volledig uitgerust met een vaatwasser, inductiekookplaat, koelkast, vriezer, dampkap, oven, microgolfoven en een dubbele spoelbak. Dankzij het grote schuifraam, dat uitgeeft op een terras over de volledige breedte van de leefruimte, geniet u van een overvloed aan natuurlijk licht.
In de hal bevindt zicht een apart toilet met handenwasser en de technische ruimte die is weggewerkt achter een schuifkast waar ook aansluiting is voorzien voor de wasmachine.
Aan de achterzijde van het gebouw bevindt zich een ruime slaapkamer van circa 15 m². Deze kamer biedt directe toegang tot het achtergelegen terras en beschikt over een eigen badkamer, uitgerust met een inloopdouche en een stijlvol lavabomeubel.
Het appartement beschikt overal over vloerverwarming.
Het appartement is voorzien van zonnepanelen.
Bij het appartement hoort er een bering op verdieping -1.
Op het gelijkvloers is er een fietsenstalling voor elektrische fietsen.
Meters water en elektriciteit individueel (geen gas).
Maandelijkse algemene onkosten €125,00.
U kan het appartement bereiken zowel met de lift als met de trap
Oplevering gepland eind december.
Indeling:
U betreedt het appartement via de inkomhal, die rechtstreeks toegang biedt tot de ruime leefruimte met open keuken. De keuken is volledig uitgerust met een vaatwasser, inductiekookplaat, koelkast, vriezer, dampkap, oven, microgolfoven en een dubbele spoelbak. Dankzij het grote schuifraam, dat uitgeeft op een terras over de volledige breedte van de leefruimte, geniet u van een overvloed aan natuurlijk licht.
In de hal bevindt zicht een apart toilet met handenwasser en de technische ruimte die is weggewerkt achter een schuifkast waar ook aansluiting is voorzien voor de wasmachine.
Aan de achterzijde van het gebouw bevindt zich een ruime slaapkamer van circa 15 m². Deze kamer biedt directe toegang tot het achtergelegen terras en beschikt over een eigen badkamer, uitgerust met een inloopdouche en een stijlvol lavabomeubel.
Het appartement beschikt overal over vloerverwarming.
Het appartement is voorzien van zonnepanelen.
Bij het appartement hoort er een bering op verdieping -1.
Op het gelijkvloers is er een fietsenstalling voor elektrische fietsen.
Meters water en elektriciteit individueel (geen gas).
Maandelijkse algemene onkosten €125,00.
U kan het appartement bereiken zowel met de lift als met de trap
Oplevering gepland eind december.
Energiezuinig nieuwbouwappartement afgewerkt met hoogwaardige materialen op een zeer centrale ligging in het dorp van Brasschaat met twee terrassen.
Indeling:
U betreedt het appartement via de inkomhal, die rechtstreeks toegang biedt tot de ruime leefruimte met open keuken. De keuken is volledig uitgerust met een vaatwasser, inductiekookplaat, koelkast, vriezer, dampkap, oven, microgolfoven en een dubbele spoelbak. Dankzij het grote schuifraam, dat uitgeeft op een terras over de volledige breedte van de leefruimte, geniet u van een overvloed aan natuurlijk licht.
In de hal bevindt zicht een apart toilet met handenwasser en de technische ruimte die is weggewerkt achter een schuifkast waar ook aansluiting is voorzien voor de wasmachine.
Aan de achterzijde van het gebouw bevindt zich een ruime slaapkamer van circa 15 m². Deze kamer biedt directe toegang tot het achtergelegen terras en beschikt over een eigen badkamer, uitgerust met een inloopdouche en een stijlvol lavabomeubel.
Het appartement beschikt overal over vloerverwarming.
Het appartement is voorzien van zonnepanelen.
Bij het appartement hoort er een bering op verdieping -1.
Op het gelijkvloers is er een fietsenstalling voor elektrische fietsen.
Meters water en elektriciteit individueel (geen gas).
Maandelijkse algemene onkosten €125,00.
U kan het appartement bereiken zowel met de lift als met de trap
Oplevering gepland eind december.
Indeling:
U betreedt het appartement via de inkomhal, die rechtstreeks toegang biedt tot de ruime leefruimte met open keuken. De keuken is volledig uitgerust met een vaatwasser, inductiekookplaat, koelkast, vriezer, dampkap, oven, microgolfoven en een dubbele spoelbak. Dankzij het grote schuifraam, dat uitgeeft op een terras over de volledige breedte van de leefruimte, geniet u van een overvloed aan natuurlijk licht.
In de hal bevindt zicht een apart toilet met handenwasser en de technische ruimte die is weggewerkt achter een schuifkast waar ook aansluiting is voorzien voor de wasmachine.
Aan de achterzijde van het gebouw bevindt zich een ruime slaapkamer van circa 15 m². Deze kamer biedt directe toegang tot het achtergelegen terras en beschikt over een eigen badkamer, uitgerust met een inloopdouche en een stijlvol lavabomeubel.
Het appartement beschikt overal over vloerverwarming.
Het appartement is voorzien van zonnepanelen.
Bij het appartement hoort er een bering op verdieping -1.
Op het gelijkvloers is er een fietsenstalling voor elektrische fietsen.
Meters water en elektriciteit individueel (geen gas).
Maandelijkse algemene onkosten €125,00.
U kan het appartement bereiken zowel met de lift als met de trap
Oplevering gepland eind december.
Energie
![]() |
- E-peil: E9
- Beglazing: Standaard dubbel
Zelfcheck
Op de kaart

Financieel
| Prijs | |
|---|---|
| Maandelijkse kosten | € 0 |
Bijkomende info
Gebouw
| Bouwjaar | 2025 |
|---|---|
| Bewoonbaar (m²) | 70 |
| Verdieping | 1 |
| Badkamers | 1 |
| Slaapkamers | 1 |
| Verdiepingen | 0 |
| Garages | 0 |
| Parkeerplaatsen | 0 |
| Toiletten | 1 |
Faciliteiten
| Keuken uitrusting | Goed uitgerust |
|---|---|
| Beglazing | Standaard dubbel |
| Septische tank | Nee |
Perceel
| Bebouwde oppervlakte (m²) | 0 |
|---|---|
| Oppervlakte terras (m²) | 0 |
Vergunning
| Verkavelingsvergunning | Geen beschikbaar |
|---|
Uitrusting
| Investeringspand | Nee |
|---|---|
| Parking | Nee |
| Garage | Nee |
| Terras | Ja |
| Lift | Ja |
| Rioolaansluiting | Nee |
| Gasaansluiting | Nee |
| Wateraansluiting | Ja |
| Elektriciteitsaansluiting | Ja |
| Internetaansluiting | Nee |
| Telefoonaansluiting | Nee |
| Zonnepanelen | Nee |
| Zonneboiler | Nee |
| Alarm | Nee |
| Videofoon | Ja |
| Grondwaterput | Nee |
Appartementsblok
| Lift | Ja |
|---|---|
| Intercom | Nee |
Een pand van
Immobiliën Carl Martens
NL
Immobiliën Carl Martens NV is een ervaren en professioneel immobiliënkantoor gelegen in het Antwerpse stadscentrum. De centrale ligging van het kantoor zorgt ervoor dat de weg naar ons zeer snel gevonden is. Vanuit dit centraal punt zijn wij dan ook werkzaam in Groot Antwerpen.
Wij zoeken voor u het gepaste huis, appartement of investering aan een realistische prijs, naar uw budget en wensen. Wij zijn actief op het vlak van bestaand onroerend goed en nieuwbouw.
BREDABAAN 365-367/2VR
Leer meer over vastgoed
23 March 2026
Op Spotto zoeken als een pro: 10 slimme tips
26 October 2025
Fake huuradvertenties op Facebook
06 July 2025
Wie betaalt herstellingen aan de huurwoning?
01 July 2025
