Zeer ruim en groot commercieel handelspand in hartje Brasschaat!
€ 3.550
Een pand van Domus Immobiliën
Favoriet
Jouw zoektocht
Jouw scoretabel voor dit pand
Aan het laden...
Jouw geplande bezichtigingen
Aan het laden...
Overzicht
- 220 m² grond
- 1 Toilet(ten)
Beschrijving
Deze ruime commerciële handelspand heeft heel veel potentieel om uw zaak verder te ontplooien.
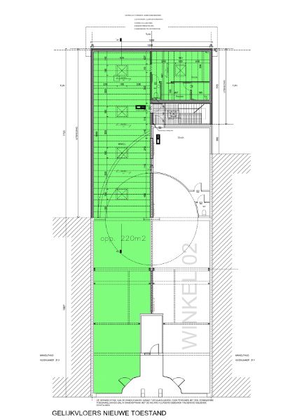
De handelsruimte van 220m2 is aan het linkse gedeelte van het gebouw.
Bij het binnenkomen is er een grote en brede ruimte die ingedeeld kan worden zoals je wenst.
Vandaag zijn de ruimtes achterliggend ingedeeld met valse wanden maar kan ook als 1 geheel gebruikt worden.
Aansluitend achteraan is er ook een keuken en een toilet met handenwasser aanwezig.
Geen horeca toegestaan.
EPC 20230921-0002995242-KNR-1 Label B - electrische keuring arei conform.
Wenst u vrijblijvend een bezichtiging of meer informatie, aarzel niet om mij te contacteren. Chantal@domus-immobilien.be
Tel: 0468/156151
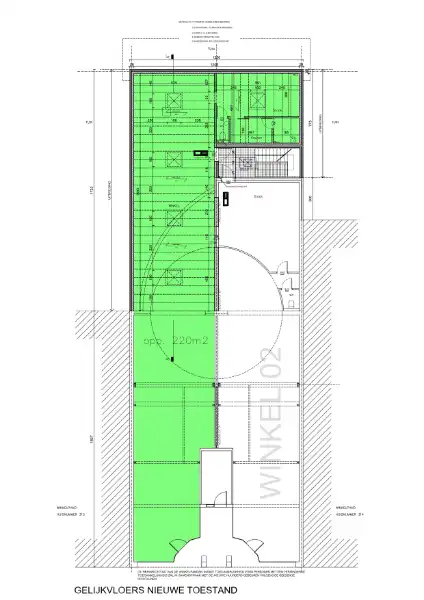
De handelsruimte van 220m2 is aan het linkse gedeelte van het gebouw.
Bij het binnenkomen is er een grote en brede ruimte die ingedeeld kan worden zoals je wenst.
Vandaag zijn de ruimtes achterliggend ingedeeld met valse wanden maar kan ook als 1 geheel gebruikt worden.
Aansluitend achteraan is er ook een keuken en een toilet met handenwasser aanwezig.
Geen horeca toegestaan.
EPC 20230921-0002995242-KNR-1 Label B - electrische keuring arei conform.
Wenst u vrijblijvend een bezichtiging of meer informatie, aarzel niet om mij te contacteren. Chantal@domus-immobilien.be
Tel: 0468/156151
Energie
![]() |
- E-peil: E0
- Beglazing: Standaard dubbel
Op de kaart

Financieel
| Prijs | |
|---|---|
| Maandelijkse kosten | € 0 |
Bijkomende info
Gebouw
| Staat | Goed onderhouden |
|---|---|
| Verdieping | 0 |
| Badkamers | 0 |
| Slaapkamers | 0 |
| Verdiepingen | 0 |
| Garages | 0 |
| Parkeerplaatsen | 0 |
| Toiletten | 1 |
Faciliteiten
| Beglazing | Standaard dubbel |
|---|---|
| Septische tank | Nee |
Perceel
| Overstromingsgevoelig | Geen |
|---|---|
| P-score | C |
| G-score | C |
| Totale oppervlakte (m²) | 220 |
| Bebouwde oppervlakte (m²) | 0 |
Vergunning
| Verkavelingsvergunning | Vergunning beschikbaar |
|---|
Uitrusting
| Investeringspand | Nee |
|---|---|
| Parking | Nee |
| Garage | Nee |
| Lift | Nee |
| Rioolaansluiting | Ja |
| Gasaansluiting | Ja |
| Wateraansluiting | Ja |
| Elektriciteitsaansluiting | Ja |
| Internetaansluiting | Ja |
| Telefoonaansluiting | Nee |
| Zonnepanelen | Nee |
| Zonneboiler | Nee |
| Alarm | Nee |
| Videofoon | Nee |
| Grondwaterput | Nee |
Appartementsblok
| Lift | Nee |
|---|---|
| Intercom | Nee |
Een pand van
Domus Immobiliën
Uw vastgoed, onze passie !!!
WIE ZIJN WIJ.
Domus Immobilien is een dynamisch, professioneel erkend immokantoor met een hart voor vastgoed. Bent u een koper of verkoper? Bij ons kunt u terecht voor elk type vastgoed project ondersteund met correct advies. Dankzij onze gedrevenheid gaan wij tot het uiterste om elke opdracht tot een succesvol einde te brengen.
THBREBA312C
Leer meer over vastgoed
04 January 2026
Zoek je een kantoor, een magazijn of… iets ertussenin? Bedrijfsvastgoed uitgelegd
05 November 2024
Bedrijfsvastgoed in transitie: ontdek de toekomst van werkplekken
16 October 2024
Opbrengsteigendom: een slim pad naar passief inkomen en vermogensgroei
09 September 2024
