Industrieel-magazijn-logistiek te huur
Een pand van IMMO VERSLEGERS
Overzicht
- 430 m² grond
Beschrijving
-ONMIDDELLIJK BESCHIKBAAR-
Moderne KMO-unit van 430 m² op toplocatie in Lanaken!
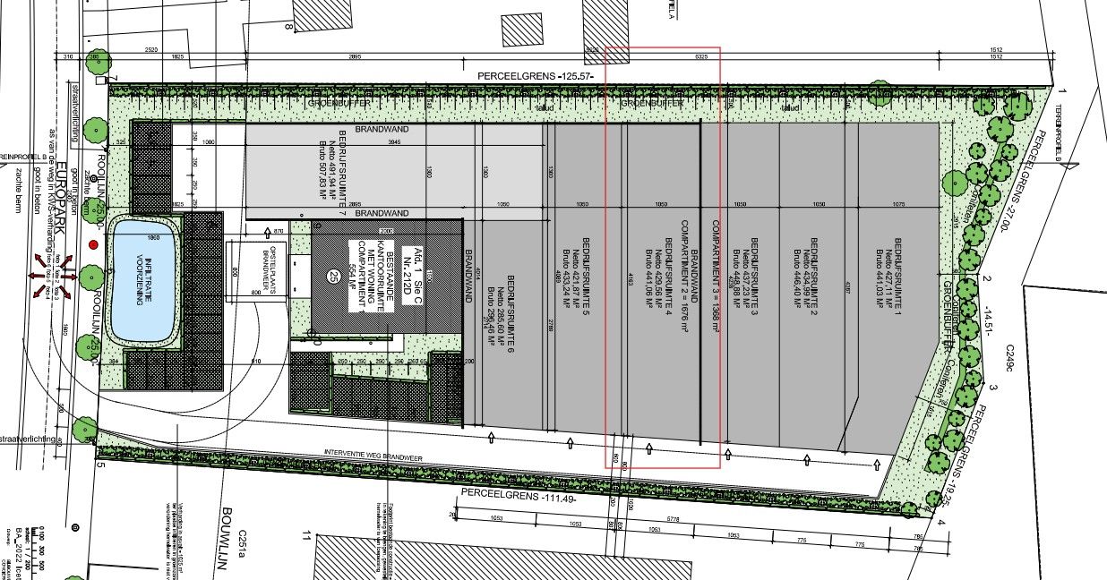
Europark 25, Lanaken
Op zoek naar een veelzijdige bedrijfsruimte op een strategische locatie?
Deze gloednieuwe KMO-unit, gelegen in de dynamische KMO-zone Europark in Lanaken, biedt alles wat uw onderneming nodig heeft!
Met een bruikbare oppervlakte van 430 m² (netto) is de unit geschikt voor uiteenlopende bedrijfsactiviteiten.
Het pand beschikt (eventueel) over vloerverwarming over de volledige oppervlakte, verdeeld in afzonderlijk regelbare zones.
De installatie kan in overleg met de eigenaar worden aangesloten.
Uiteraard voldoet het gebouw aan de nieuwste EPC- en brandveiligheidsnormen.
Er bestaat eveneens de mogelijkheid om slechts een deel van de ruimte te huren. In dat geval wordt de ruimte opgedeeld!
Flexibele indeling en uitbreidingsmogelijkheden!
De casco oplevering geeft u de vrijheid om de indeling volledig naar eigen wens te realiseren, in samenspraak met de eigenaar.
Er zijn bovendien voorbereidingen getroffen voor een tussenverdieping (bijvoorbeeld voor een kantoor of showroom).
Optimale logistiek en werkcomfort!
Met een vrije hoogte van 6 meter en een elektrische sectionaalpoort van 5 meter hoog en breed is de unit ideaal voor opslag en productie.
de centrale lichtkoepel met rookluik zorgen voor veel natuurlijk licht, wat bijdraagt aan een aangename werkomgeving.
De aparte toegangsdeur biedt extra gebruiksgemak.
Uitstekende bereikbaarheid!
Dankzij de centrale ligging in Lanaken bereikt u Maastricht (NL) in slechts 8 minuten. Maasmechelen en de oprit van de E314 liggen op amper 10 minuten afstand.
Onmiddellijk beschikbaar!
Kenmerken
Huurvoorwaarden
Niet toegestaan!
Zelfstandige kantoren, wonen, HoReCa, recreatieve binnenactiviteiten.
Een deel van de ruimte huren? Dat kan! We zorgen dan voor een praktische opsplitsing.
Interesse in deze veelzijdige bedrijfsunit?
Neem snel contact op via 089 23 44 22 of mail naar info@immoverslegers.be voor meer informatie of een bezichtiging!
Moderne KMO-unit van 430 m² op toplocatie in Lanaken!
Europark 25, Lanaken
Op zoek naar een veelzijdige bedrijfsruimte op een strategische locatie?
Deze gloednieuwe KMO-unit, gelegen in de dynamische KMO-zone Europark in Lanaken, biedt alles wat uw onderneming nodig heeft!
Met een bruikbare oppervlakte van 430 m² (netto) is de unit geschikt voor uiteenlopende bedrijfsactiviteiten.
Het pand beschikt (eventueel) over vloerverwarming over de volledige oppervlakte, verdeeld in afzonderlijk regelbare zones.
De installatie kan in overleg met de eigenaar worden aangesloten.
Uiteraard voldoet het gebouw aan de nieuwste EPC- en brandveiligheidsnormen.
Er bestaat eveneens de mogelijkheid om slechts een deel van de ruimte te huren. In dat geval wordt de ruimte opgedeeld!
Flexibele indeling en uitbreidingsmogelijkheden!
De casco oplevering geeft u de vrijheid om de indeling volledig naar eigen wens te realiseren, in samenspraak met de eigenaar.
Er zijn bovendien voorbereidingen getroffen voor een tussenverdieping (bijvoorbeeld voor een kantoor of showroom).
Optimale logistiek en werkcomfort!
Met een vrije hoogte van 6 meter en een elektrische sectionaalpoort van 5 meter hoog en breed is de unit ideaal voor opslag en productie.
de centrale lichtkoepel met rookluik zorgen voor veel natuurlijk licht, wat bijdraagt aan een aangename werkomgeving.
De aparte toegangsdeur biedt extra gebruiksgemak.
Uitstekende bereikbaarheid!
Dankzij de centrale ligging in Lanaken bereikt u Maastricht (NL) in slechts 8 minuten. Maasmechelen en de oprit van de E314 liggen op amper 10 minuten afstand.
Onmiddellijk beschikbaar!
Kenmerken
- Toplocatie in de KMO-zone Europark
- 430 m² bruikbare vloeroppervlakte
- 3-fase stroom (om de 10 meter)
- 2 afvoerputten
- Brandwand aanwezig
- Watervoorzieningen op 2 plaatsen
- Vrije hoogte: 6 m
- Sectionaalpoort: 5 m hoog x 5 m breed
Huurvoorwaarden
- Waarborg: 3 maanden huur
- Algemene kosten: nog te bepalen
- Onroerende voorheffing, nutsvoorzieningen en verbruik ten laste van de huurder.
Niet toegestaan!
Zelfstandige kantoren, wonen, HoReCa, recreatieve binnenactiviteiten.
Een deel van de ruimte huren? Dat kan! We zorgen dan voor een praktische opsplitsing.
Interesse in deze veelzijdige bedrijfsunit?
Neem snel contact op via 089 23 44 22 of mail naar info@immoverslegers.be voor meer informatie of een bezichtiging!
Energie
- E-peil: E0
- Beglazing: Onbekend
Op de kaart

Financieel
| Maandelijkse kosten | € 0 |
|---|
Bijkomende info
Gebouw
| Bouwjaar | 2025 |
|---|---|
| Badkamers | 0 |
| Slaapkamers | 0 |
| Verdiepingen | 0 |
| Garages | 0 |
| Parkeerplaatsen | 0 |
| Toiletten | 0 |
Faciliteiten
| Septische tank | Nee |
|---|
Perceel
| Overstromingsgevoelig | Geen |
|---|---|
| P-score | A |
| G-score | A |
| Totale oppervlakte (m²) | 430 |
| Bebouwde oppervlakte (m²) | 0 |
Vergunning
| Verkavelingsvergunning | Geen beschikbaar |
|---|
Uitrusting
| Investeringspand | Nee |
|---|---|
| Parking | Nee |
| Garage | Nee |
| Lift | Nee |
| Rioolaansluiting | Ja |
| Gasaansluiting | Ja |
| Wateraansluiting | Ja |
| Elektriciteitsaansluiting | Ja |
| Internetaansluiting | Ja |
| Telefoonaansluiting | Nee |
| Zonnepanelen | Nee |
| Zonneboiler | Nee |
| Alarm | Nee |
| Videofoon | Nee |
| Grondwaterput | Nee |
Appartementsblok
| Lift | Nee |
|---|---|
| Intercom | Nee |
Een pand van
IMMO VERSLEGERS
Welkom bij IMMO VERSLEGERS
UW VERTROUWENSPARTNER IN VASTGOED IN LANAKEN EN OMSTREKEN!
Een persoonlijke aanpak, correcte en vlotte service en het juiste technische en juridisch advies vormen de kenmerken van ons kantoor.
Wij helpen u dan ook graag verder in de aankoop, verkoop of verhuur van uw eigendom. Met passie voor vastgoed en het enthousiasme voor het ondernemen gaan we samen met u voor een succesvolle verkoop!
Immo Verslegers staat u graag bij wat betreft:
- Verkoop
- Verhuur
- Nieuwbouw
- Buitenlandsvastgoed
- Bedrijfsvastgoed
- Aankoopbegeleiding
- Verzekeringen
Gratis schatting van uw eigendom door een vastgoed expert!
Anouk Verslegers, Gunter Verslegers, Sjulie Frijns en Mirthe Hermans heten u van harte welkom!
Europark25
Leer meer over vastgoed
05 November 2024
Bedrijfsvastgoed in transitie: ontdek de toekomst van werkplekken
16 October 2024
Opbrengsteigendom: een slim pad naar passief inkomen en vermogensgroei
09 September 2024
Tijdelijk vastgoed: flexibele oplossingen voor een dynamische markt
12 August 2024