Nieuw
MODERN, KWALITATIEF EN LICHTRIJK APPARTEMENT MET UNIEK STUKJE DESIGN IN HARTJE TONGEREN
Een pand van De woonmakers
Overzicht
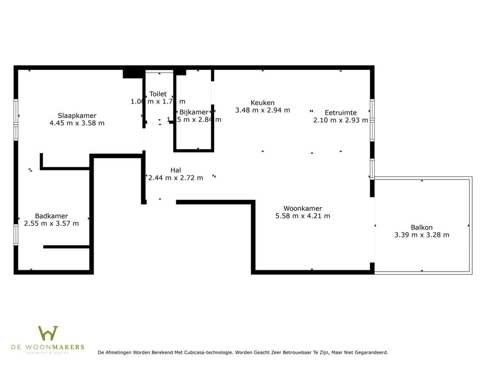
- 86 m² bewoonbaar
- 1 Slaapkamer(s)
- 1 Badkamer(s)
- 1 Toilet(ten)
Beschrijving
Op zoek naar een instapklaar appartement waar comfort, stijl en lichtinval samenkomen? Dit prachtig ontworpen appartement uit 2017 combineert een rustige ligging met alle voorzieningen op wandelafstand van het stadscentrum. Ontworpen door een Spaanse architect, straalt het gebouw een tijdloze elegantie uit.
Via de lift of trap bereik je de eerste verdieping, waar je binnenin geniet van 87m² bewoonbare oppervlakte. Deze is voorzien van een lichtrijke leefruimte met vloerverwarming, warme parketvloer en airco. Dit geeft het appartement een zeer aangenaam gevoel. De op maat gemaakte zonwerende gordijnen zorgen ervoor dat je de lichtinval perfect kan regelen. Het zuid gerichte terras, tevens voorzien van een zonneluifel, is een heerlijke plek om van de zon te genieten.
Het appartement bevat daarnaast ook 1 ruime slaapkamer met ingemaakte kasten.
Dankzij de conforme elektriciteit, de sterke EPC-score en het feit dat het appartement asbestvrij is, zit je hier volledig future proof. Dit zorgt er ook voor dat het appartement uiterst geschikt is als investering.
Huurprijs: €750 + €100 gemeenschappelijke kosten.
Voor extra opbergruimte kan je de aparte berging (verplicht bij aan te kopen voor €6.000) in de ondergrondse garage gebruiken. Tevens is er een afgesloten fietsenstalling en ruimte voor het huishoudelijk afval.
Contacteer ons op het nummer 011/98.88.98 of via info@dewoonmakers.be
Via de lift of trap bereik je de eerste verdieping, waar je binnenin geniet van 87m² bewoonbare oppervlakte. Deze is voorzien van een lichtrijke leefruimte met vloerverwarming, warme parketvloer en airco. Dit geeft het appartement een zeer aangenaam gevoel. De op maat gemaakte zonwerende gordijnen zorgen ervoor dat je de lichtinval perfect kan regelen. Het zuid gerichte terras, tevens voorzien van een zonneluifel, is een heerlijke plek om van de zon te genieten.
Het appartement bevat daarnaast ook 1 ruime slaapkamer met ingemaakte kasten.
Dankzij de conforme elektriciteit, de sterke EPC-score en het feit dat het appartement asbestvrij is, zit je hier volledig future proof. Dit zorgt er ook voor dat het appartement uiterst geschikt is als investering.
Huurprijs: €750 + €100 gemeenschappelijke kosten.
Voor extra opbergruimte kan je de aparte berging (verplicht bij aan te kopen voor €6.000) in de ondergrondse garage gebruiken. Tevens is er een afgesloten fietsenstalling en ruimte voor het huishoudelijk afval.
Contacteer ons op het nummer 011/98.88.98 of via info@dewoonmakers.be
Op zoek naar een instapklaar appartement waar comfort, stijl en lichtinval samenkomen? Dit prachtig ontworpen appartement uit 2017 combineert een rustige ligging met alle voorzieningen op wandelafstand van het stadscentrum. Ontworpen door een Spaanse architect, straalt het gebouw een tijdloze elegantie uit.
Via de lift of trap bereik je de eerste verdieping, waar je binnenin geniet van 87m² bewoonbare oppervlakte. Deze is voorzien van een lichtrijke leefruimte met vloerverwarming, warme parketvloer en airco. Dit geeft het appartement een zeer aangenaam gevoel. De op maat gemaakte zonwerende gordijnen zorgen ervoor dat je de lichtinval perfect kan regelen. Het zuid gerichte terras, tevens voorzien van een zonneluifel, is een heerlijke plek om van de zon te genieten.
Het appartement bevat daarnaast ook 1 ruime slaapkamer met ingemaakte kasten waardoor de ruimte optimaal benut wordt. Een ruime berging in het appartement zorgt voor extra comfort. De gemeenschappelijke tuin nodigt dan weer uit om even helemaal tot rust te komen.
Dankzij de conforme elektriciteit, de sterke EPC-score en het feit dat het appartement asbestvrij is, zit je hier volledig future proof. Dit zorgt er ook voor dat het appartement uiterst geschikt is als investering.
Voor extra opbergruimte kan je de aparte berging (verplicht bij aan te kopen voor €6.000) in de ondergrondse garage gebruiken. Tevens is er een afgesloten fietsenstalling en ruimte voor het huishoudelijk afval. Daarnaast heeft het appartement ook een veiligheidsdeur.
Zowel de berging als de ondergrondse garage zijn bereikbaar via de lift.
Heeft dit knap geheel jouw interesse gewekt? Aarzel niet en contacteer ons op het nummer 011/98.88.98 of via info@dewoonmakers.be
De vermelde oppervlaktes zijn indicatief. De Woonmakers kan niet verantwoordelijk gesteld worden voor de juistheid van de door zijn verstrekte gegevens.
Via de lift of trap bereik je de eerste verdieping, waar je binnenin geniet van 87m² bewoonbare oppervlakte. Deze is voorzien van een lichtrijke leefruimte met vloerverwarming, warme parketvloer en airco. Dit geeft het appartement een zeer aangenaam gevoel. De op maat gemaakte zonwerende gordijnen zorgen ervoor dat je de lichtinval perfect kan regelen. Het zuid gerichte terras, tevens voorzien van een zonneluifel, is een heerlijke plek om van de zon te genieten.
Het appartement bevat daarnaast ook 1 ruime slaapkamer met ingemaakte kasten waardoor de ruimte optimaal benut wordt. Een ruime berging in het appartement zorgt voor extra comfort. De gemeenschappelijke tuin nodigt dan weer uit om even helemaal tot rust te komen.
Dankzij de conforme elektriciteit, de sterke EPC-score en het feit dat het appartement asbestvrij is, zit je hier volledig future proof. Dit zorgt er ook voor dat het appartement uiterst geschikt is als investering.
Voor extra opbergruimte kan je de aparte berging (verplicht bij aan te kopen voor €6.000) in de ondergrondse garage gebruiken. Tevens is er een afgesloten fietsenstalling en ruimte voor het huishoudelijk afval. Daarnaast heeft het appartement ook een veiligheidsdeur.
Zowel de berging als de ondergrondse garage zijn bereikbaar via de lift.
- €750/ maand huur
- €100/maand gemeenschappelijke kosten
Heeft dit knap geheel jouw interesse gewekt? Aarzel niet en contacteer ons op het nummer 011/98.88.98 of via info@dewoonmakers.be
De vermelde oppervlaktes zijn indicatief. De Woonmakers kan niet verantwoordelijk gesteld worden voor de juistheid van de door zijn verstrekte gegevens.
Energie
![]() |
- EPC Certificaat: 73083-g-2012/13075/ep10894/a001/d01/sd010
- Energieverbruik: 90 kWh/m²/jaar
- E-peil: E0
- Verwarming: Gas
- Beglazing: Standaard dubbel
Zelfcheck
Op de kaart

Financieel
| Prijs | |
|---|---|
| Maandelijkse kosten | € 0 |
| Kadastraal inkomen (niet geïndexeerd) | € 839 |
Bijkomende info
Gebouw
| Bouwjaar | 2014 |
|---|---|
| Staat | Goed onderhouden |
| Bouwcertificaat | Nee |
| Bewoonbaar (m²) | 86 |
| Verdieping | 1 |
| Badkamers | 1 |
| Slaapkamers | 1 |
| Verdiepingen | 0 |
| Garages | 0 |
| Parkeerplaatsen | 0 |
| Toiletten | 1 |
Faciliteiten
| Beglazing | Standaard dubbel |
|---|---|
| Brandstof primaire verwarming | Gas |
| Septische tank | Nee |
Perceel
| Overstromingsgevoelig | Geen |
|---|---|
| P-score | A |
| G-score | A |
| Bebouwde oppervlakte (m²) | 0 |
Vergunning
| Verkavelingsvergunning | Geen beschikbaar |
|---|
Uitrusting
| Investeringspand | Nee |
|---|---|
| Parking | Nee |
| Garage | Nee |
| Lift | Nee |
| Rioolaansluiting | Nee |
| Gasaansluiting | Nee |
| Wateraansluiting | Nee |
| Elektriciteitsaansluiting | Nee |
| Internetaansluiting | Nee |
| Telefoonaansluiting | Nee |
| Zonnepanelen | Nee |
| Zonneboiler | Nee |
| Alarm | Nee |
| Videofoon | Nee |
| Grondwaterput | Nee |
Appartementsblok
| Lift | Nee |
|---|---|
| Intercom | Nee |
Een pand van
De woonmakers
De Woonmakers Win-win in vastgoed
Bij De Woonmakers staat ervaring centraal. Sinds onze oprichting in 2020 hebben we ons voortdurend ontwikkeld als toonaangevend bedrijf in de vastgoedsector. Gedurende deze periode hebben we waardevolle inzichten verzameld en ons vakmanschap verfijnd om onze klanten een ongeëvenaarde dienstverlening te bieden.
Onze missie is om de perfecte match te creëren tussen individuen en vastgoed, en dit streven we na door onze diepgaande kennis van de markt te combineren met een innovatieve benadering van klantinteractie. Door te luisteren naar uw woonvoorkeuren en -behoeften, zijn we in staat om op maat gemaakte oplossingen te presenteren die naadloos aansluiten op uw levensstijl.
De drijvende krachten achter De Woonmakers, Jan en Krisja, delen een passie voor vastgoed en een toewijding om de klanten te voorzien van een ongeëvenaarde ervaring. Met jarenlange expertise in verschillende facetten van de vastgoedmarkt streven zij ernaar om een service te bieden die verder gaat dan alleen transacties. “Onze klanten kunnen rekenen op een persoonlijke aanpak die gericht is op het creëren van langdurige relaties en het leveren van op maat gemaakte oplossingen die voldoen aan hun specifieke behoeften.”
Vermeulenstraat 7C
Leer meer over vastgoed
26 October 2025
Fake huuradvertenties op Facebook
06 July 2025
Wie betaalt herstellingen aan de huurwoning?
01 July 2025
Ik wil mijn huurcontract opzeggen. Hoe doe ik dit?
20 April 2025
