Prachtig handelspand Lippenslaan 120
Een pand van Immo Van Acker
Favoriet
Jouw zoektocht
Jouw scoretabel voor dit pand
Aan het laden...
Jouw geplande bezichtigingen
Aan het laden...
Overzicht
- 156 m² bewoonbaar
- 70 m² grond
Beschrijving
Volledig vernieuwd handelspand/winkel op de Lippenslaan (zonnekant) met extra mezzanine en kelder gelegen tegenover Supermarkt Decloedt, Delissimma-Dame Blanche,naast Zushi en vele andere druk bezochte handelszaken.
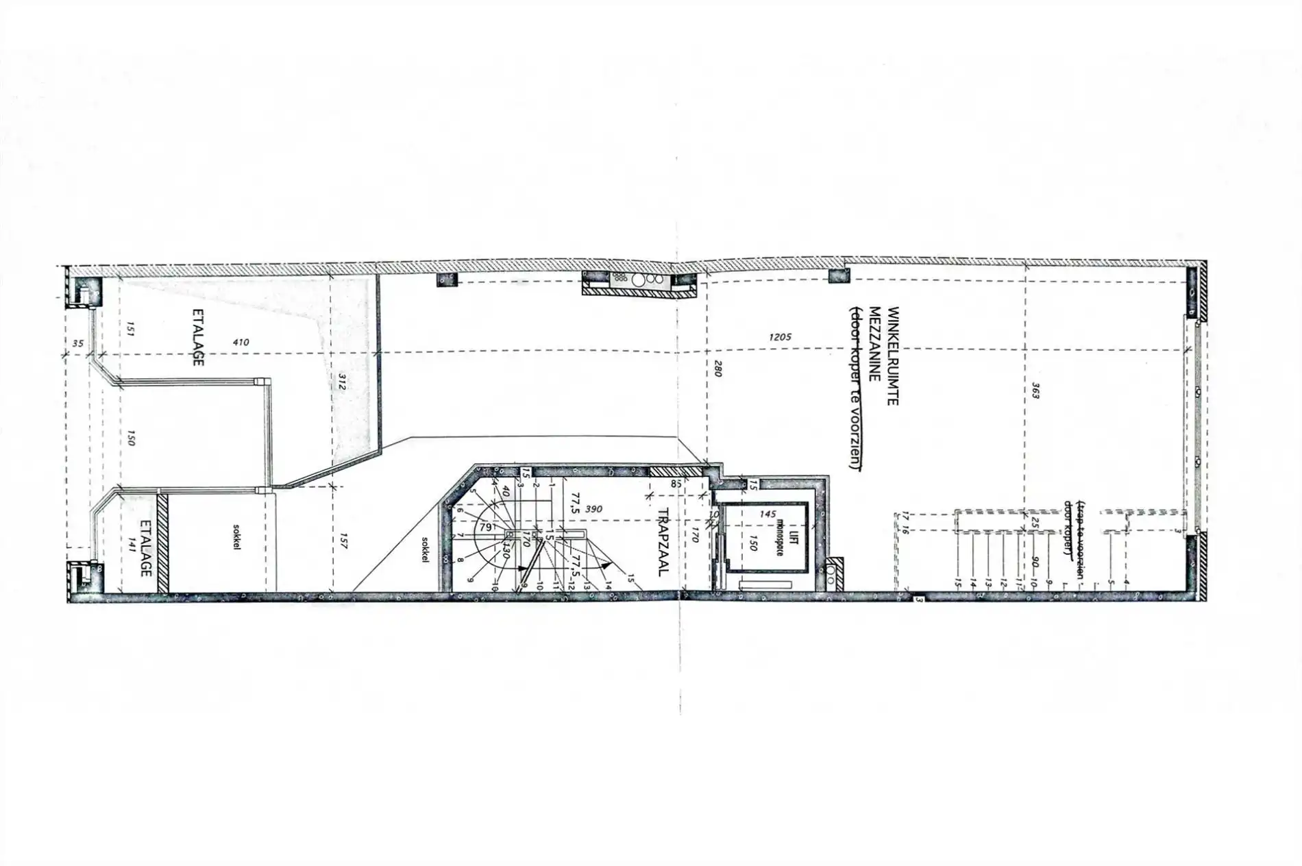
Bruikbare verkoopsoppervlakte op het gelijkvloers ongeveer 80m²
Oppervlakte van 220m²: 156m² gelijkvloers (inclusief keukengedeelte en wc) + kelder
mezzanine van 64m²
De winkel mag gebruikt worden als kantoor of luxewinkel, de winkel mag eveneens gebruikt worden voor het uitoefenen van een vrij beroep.
Zijn onder meer uitdrukkelijk verboden:
- elke handel in voeding in het algemeen;
- elke handel voor kansspelen, weddenschappen, casino;
- elke handel in vis en vlees, handel in dieren en dierenvoeding, frituur, nachtwinkel, seksshop, tattooshop, massagesalon, handel in legale en verdovende middelen en in het algemeen, elke handel die onwelriekende geuren verspreidt;
- dancing, night-club, privé-club, lunapark, muziekwinkel en in het algemeen elke handel die lawaaihinder veroorzaakt;
- tearoom, taverne, pub, café, brasserie, eethuis, take away van voeding, fastfood, ijssalon, broodjeszaak, vruchtensappenverkoop, koude bakker, patissier, restaurant en traiteurdienst, elke vorm van horeca en in het algemeen elke handel die dans-, eet- of drankgelegenheid voorziet;
- begrafenisondernemer, fietsenverhuring, fietsenwinkel;
- om de winkel te gebruiken als woning (slaapgelegenheid);
Zijn onder meer uitdrukkelijk toegelaten:
- iedere handel in luxe-artikelen, zoals kleding, juwelen, boeken, parfumerie, tabak, wijn, paramedische artikelen, enzovoort.
- burelen.
Het geven van zulkdanige bestemming houdt het recht in om alle installaties en apparaten te gebruiken die nodig of nuttig zijn voor gezegde bestemming.”
Gevelbreedte van 4,40m.
Onroerende voorheffing en syndickosten ten laste van de huurder. (huurder betaalt niet mee in kosten voor algemeen onderhoud in de hall noch in alle kosten mbt de lift)
Provisie van 240 eur per maand syndickosten.
De verlichting alsook de toonbank en alle legplanken te zien op de foto's blijven achter in het pand.
Vrij op 30 april 2025. Commissie van de vastgoedmakelaar bij verhuur is ten laste van de nieuwe huurder.
Contacteer ons voor een bezoek of meer inlichtingen, 0478 34 19 20 en-of virginie@vanackerknokke.be
Bruikbare verkoopsoppervlakte op het gelijkvloers ongeveer 80m²
Oppervlakte van 220m²: 156m² gelijkvloers (inclusief keukengedeelte en wc) + kelder
mezzanine van 64m²
De winkel mag gebruikt worden als kantoor of luxewinkel, de winkel mag eveneens gebruikt worden voor het uitoefenen van een vrij beroep.
Zijn onder meer uitdrukkelijk verboden:
- elke handel in voeding in het algemeen;
- elke handel voor kansspelen, weddenschappen, casino;
- elke handel in vis en vlees, handel in dieren en dierenvoeding, frituur, nachtwinkel, seksshop, tattooshop, massagesalon, handel in legale en verdovende middelen en in het algemeen, elke handel die onwelriekende geuren verspreidt;
- dancing, night-club, privé-club, lunapark, muziekwinkel en in het algemeen elke handel die lawaaihinder veroorzaakt;
- tearoom, taverne, pub, café, brasserie, eethuis, take away van voeding, fastfood, ijssalon, broodjeszaak, vruchtensappenverkoop, koude bakker, patissier, restaurant en traiteurdienst, elke vorm van horeca en in het algemeen elke handel die dans-, eet- of drankgelegenheid voorziet;
- begrafenisondernemer, fietsenverhuring, fietsenwinkel;
- om de winkel te gebruiken als woning (slaapgelegenheid);
Zijn onder meer uitdrukkelijk toegelaten:
- iedere handel in luxe-artikelen, zoals kleding, juwelen, boeken, parfumerie, tabak, wijn, paramedische artikelen, enzovoort.
- burelen.
Het geven van zulkdanige bestemming houdt het recht in om alle installaties en apparaten te gebruiken die nodig of nuttig zijn voor gezegde bestemming.”
Gevelbreedte van 4,40m.
Onroerende voorheffing en syndickosten ten laste van de huurder. (huurder betaalt niet mee in kosten voor algemeen onderhoud in de hall noch in alle kosten mbt de lift)
Provisie van 240 eur per maand syndickosten.
De verlichting alsook de toonbank en alle legplanken te zien op de foto's blijven achter in het pand.
Vrij op 30 april 2025. Commissie van de vastgoedmakelaar bij verhuur is ten laste van de nieuwe huurder.
Contacteer ons voor een bezoek of meer inlichtingen, 0478 34 19 20 en-of virginie@vanackerknokke.be
Energie
![]() |
- EPC Certificaat: 20201716-0002294900-KNR-1
- Verwarming: Geen
- Beglazing: Onbekend
Op de kaart

Financieel
| Prijs | |
|---|---|
| Kadastraal inkomen (niet geïndexeerd) | € 2.475 |
Bijkomende info
Gebouw
| Bouwjaar | 2011 |
|---|---|
| Renovatie jaar | 2022 |
| Staat | Goed onderhouden |
| Is beschermd | Nee |
| Bewoonbaar (m²) | 156 |
| Gevelbreedte | 4.4 |
Faciliteiten
| Luiken | Nee |
|---|---|
| Primair verwarmingstype | Geen verwarming |
| Brandstof primaire verwarming | Geen |
| Warm water type | Geen verwarming |
Perceel
| Totale oppervlakte (m²) | 70 |
|---|---|
| Bebouwde oppervlakte (m²) | 156 |
Uitrusting
| Meerdere eigenaars | Nee |
|---|---|
| Geschikt als kangoeroewoning | Nee |
| Geschikt voor rolstoelgebruikers | Nee |
| Geschikt voor praktijk | Nee |
| Volledig onderkelderd | Nee |
| Parking | Nee |
| Garage | Nee |
| Thuiskantoor | Nee |
| Kelder | Nee |
| Zolder | Nee |
| Opslagruimte | Nee |
| Tuin | Nee |
| Terras | Nee |
| Lift | Nee |
| Rioolaansluiting | Nee |
| Gasaansluiting | Nee |
| Wateraansluiting | Nee |
| Elektriciteitsaansluiting | Nee |
| TV aansluiting | Nee |
| Internetaansluiting | Nee |
| Zonnepanelen | Nee |
| Zonneboiler | Nee |
| Alarm | Nee |
| Zwembad | Nee |
| Jacuzzi | Nee |
| Toonzaal | Nee |
| Ventilatie | Nee |
Appartementsblok
| Lift | Nee |
|---|---|
| Intercom | Nee |
Een pand van
Immo Van Acker
VAN ACKER | real estate , insurance & invest
Van Acker : vastgoed en verzekeringen
TH864
Leer meer over vastgoed
04 January 2026
Zoek je een kantoor, een magazijn of… iets ertussenin? Bedrijfsvastgoed uitgelegd
05 November 2024
Bedrijfsvastgoed in transitie: ontdek de toekomst van werkplekken
16 October 2024
Opbrengsteigendom: een slim pad naar passief inkomen en vermogensgroei
09 September 2024
