Restaurant in nieuwbouwresidentie
Een pand van Agence Vanbeckevoort
Favoriet
Jouw zoektocht
Jouw scoretabel voor dit pand
Aan het laden...
Jouw geplande bezichtigingen
Aan het laden...
Overzicht
- 139 m² bewoonbaar
- 211 m² grond
- 4 Toilet(ten)
Overstromingsgevaar perceel
Beschrijving
Subliem en stijlvol ingericht handelsgelijkvloers geschikt voor horeca met zonneterras, gesitueerd in een gegeerde nieuwbouwsite. De excellente locatie is gelegen op het project "Green C" waar dagelijks een stroom van potentiële klanten voorbij komen.
Indeling:
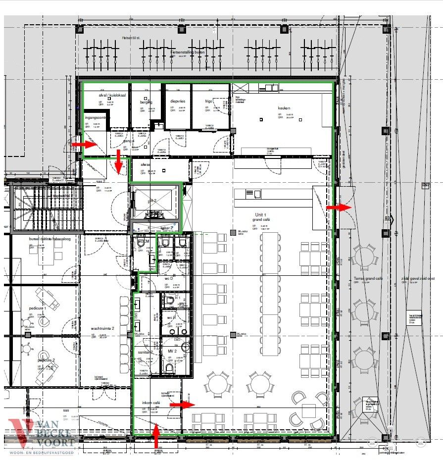
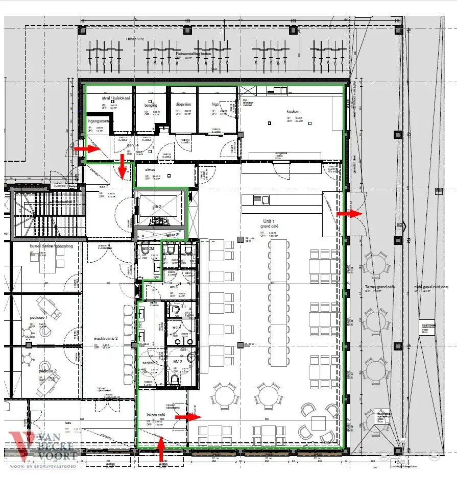
Inkomhal - ruime en open gelagzaal 139m² die tal van mogelijkheden biedt voor de verdere inrichting (naar eigen smaak en believen) - aanpalend een volumineus zonneterras 72m² waar gasten kunnen genieten van een heerlijke maaltijd of aperitief met geweldig uitzicht op het groen middenplein – een nog in te richten ruimte waar de keuken, afwasstraat, alsook de koel- en vriescel kunnen geplaatst worden - toiletten (dames, heren en WC voor rolstoelgebruikers) - mogelijkheid tot huren van een kelderberging en/of garagestandplaatsen op de site.
De handelsruimte werd grotendeels ingericht, de verdere inrichting dient voorzien te worden door de huurder in samenspraak met de eigenaar.
Troeven:
- handelsruimte: 139m²;
- zonnige terraszone van maar liefst 72m² mét zicht op binnentuin;
- de handelsruimte werd reeds aantrekkelijk ingericht met terrazzo vloeren, elektriciteit, verlichting, sanitair, vloerverwarming, muurbetegeling o.m. in de keuken, geschilderd,...;
- aanwezigheid van lichtcellen (10KVA);
- de keuken- en restaurant-inrichting kan naar eigen smaak worden afgewerkt (alle leidingen zijn voorzien);
- gevelbreedte kant binnentuin: 20 meter;
- vrije plafondhoogte: 3,48 meter;
- mogelijkheid tot huren van garage of kelder;
- gebouw voldoet aan de laatste nieuwbouwnormen;
- horeca vergunning ontvangen;
- ingang via oprit aan de zijkant en binnenplein;
- zeer toegankelijke voor rolstoelgebruikers;
- huurprijs onderhevig aan 21% btw;
- onmiddellijk beschikbaar.
Het nieuwbouwproject trekt verschillende bewoners en bezoekers aan, wat resulteert in een levendige en bruisende omgeving. Bent U een ervaren restauranteigenaar en op zoek naar een nieuwe uitdaging of een ondernemer met horecapassie? Dit restaurant is de ideale plek om jouw visie tot leven te brengen.
Grijp deze unieke kans om jouw culinaire dromen waar te maken in een moderne en levendige omgeving!
Indeling:
Inkomhal - ruime en open gelagzaal 139m² die tal van mogelijkheden biedt voor de verdere inrichting (naar eigen smaak en believen) - aanpalend een volumineus zonneterras 72m² waar gasten kunnen genieten van een heerlijke maaltijd of aperitief met geweldig uitzicht op het groen middenplein – een nog in te richten ruimte waar de keuken, afwasstraat, alsook de koel- en vriescel kunnen geplaatst worden - toiletten (dames, heren en WC voor rolstoelgebruikers) - mogelijkheid tot huren van een kelderberging en/of garagestandplaatsen op de site.
De handelsruimte werd grotendeels ingericht, de verdere inrichting dient voorzien te worden door de huurder in samenspraak met de eigenaar.
Troeven:
- handelsruimte: 139m²;
- zonnige terraszone van maar liefst 72m² mét zicht op binnentuin;
- de handelsruimte werd reeds aantrekkelijk ingericht met terrazzo vloeren, elektriciteit, verlichting, sanitair, vloerverwarming, muurbetegeling o.m. in de keuken, geschilderd,...;
- aanwezigheid van lichtcellen (10KVA);
- de keuken- en restaurant-inrichting kan naar eigen smaak worden afgewerkt (alle leidingen zijn voorzien);
- gevelbreedte kant binnentuin: 20 meter;
- vrije plafondhoogte: 3,48 meter;
- mogelijkheid tot huren van garage of kelder;
- gebouw voldoet aan de laatste nieuwbouwnormen;
- horeca vergunning ontvangen;
- ingang via oprit aan de zijkant en binnenplein;
- zeer toegankelijke voor rolstoelgebruikers;
- huurprijs onderhevig aan 21% btw;
- onmiddellijk beschikbaar.
Het nieuwbouwproject trekt verschillende bewoners en bezoekers aan, wat resulteert in een levendige en bruisende omgeving. Bent U een ervaren restauranteigenaar en op zoek naar een nieuwe uitdaging of een ondernemer met horecapassie? Dit restaurant is de ideale plek om jouw visie tot leven te brengen.
Grijp deze unieke kans om jouw culinaire dromen waar te maken in een moderne en levendige omgeving!
Energie
- E-peil: E0
- Beglazing: Onbekend
Op de kaart

Financieel
| Prijs | |
|---|---|
| Maandelijkse kosten | € 0 |
Bijkomende info
Gebouw
| Bouwjaar | 2024 |
|---|---|
| Bewoonbaar (m²) | 139 |
| Badkamers | 0 |
| Slaapkamers | 0 |
| Verdiepingen | 0 |
| Garages | 0 |
| Parkeerplaatsen | 0 |
| Toiletten | 4 |
Faciliteiten
| Septische tank | Nee |
|---|
Perceel
| Overstromingsgevoelig | Geen |
|---|---|
| P-score | D |
| G-score | A |
| Totale oppervlakte (m²) | 211 |
| Bebouwde oppervlakte (m²) | 0 |
| Oppervlakte terras (m²) | 0 |
Vergunning
| Verkavelingsvergunning | Geen beschikbaar |
|---|
Uitrusting
| Investeringspand | Nee |
|---|---|
| Parking | Nee |
| Garage | Nee |
| Opslagruimte | Ja |
| Terras | Ja |
| Lift | Nee |
| Rioolaansluiting | Ja |
| Gasaansluiting | Ja |
| Wateraansluiting | Ja |
| Elektriciteitsaansluiting | Ja |
| Internetaansluiting | Ja |
| Telefoonaansluiting | Nee |
| Zonnepanelen | Ja |
| Zonneboiler | Nee |
| Alarm | Nee |
| Videofoon | Nee |
| Grondwaterput | Nee |
Appartementsblok
| Lift | Nee |
|---|---|
| Intercom | Nee |
Een pand van
Agence Vanbeckevoort
Vanbeckevoort - Immo Oostende
Al drie generaties lang schuimt de familie Vanbeckevoort het vastgoedlandschap in Oostende af. Met bijzondere voorliefde voor bedrijfs- en residentiële panden bouwde het immo-kantoor een sterke expertise uit. Verhuren, verkopen, overnemen of een pand beschikbaar? Vanbeckevoort gaat voluit voor uw dossier. Van marktconforme schatting en de zoektocht naar de juiste kandidaat tot het opstellen en ondertekenen van het contract. Zodat uw vastgoeddromen maximale zuurstof krijgen.
Nieuwpoortsesteenweg 57
Leer meer over vastgoed
04 January 2026
Zoek je een kantoor, een magazijn of… iets ertussenin? Bedrijfsvastgoed uitgelegd
05 November 2024
Bedrijfsvastgoed in transitie: ontdek de toekomst van werkplekken
16 October 2024
Opbrengsteigendom: een slim pad naar passief inkomen en vermogensgroei
09 September 2024