In optie
Instapklaar energiezuinig appartement hartje Eernegem, met zonnig terras, topligging.
Een pand van Osaer-Pauwels Vastgoed
Overzicht
- 51.77 m² bewoonbaar
- 1 Slaapkamer(s)
- 1 Badkamer(s)
- 1 Toilet(ten)
Beschrijving
Op de 1e verdieping van de stijlvolle Residentie Capri, hartje Eernegem, bevindt zich dit instapklare 1-slaapkamer appartement. Het appartement met gezellig terras biedt uitzicht op de Markt en de kerk van Eernegem met vlakbij winkels, parking en openbaar vervoer.
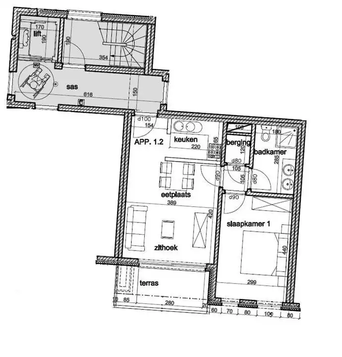
Indeling: lichtrijke leefruimte met ingerichte open keuken, de leefruimte geeft toegang tot het terras, nachthal met toegang tot de berging, badkamer met douche en toilet, 1 slaapkamer.
Het gebouw beschikt over een lift en een gemeenschappelijke fietsenberging. Het appartement heeft centrale verwarming aardgas en is met EPC A energiezuinig.
Indeling: lichtrijke leefruimte met ingerichte open keuken, de leefruimte geeft toegang tot het terras, nachthal met toegang tot de berging, badkamer met douche en toilet, 1 slaapkamer.
Het gebouw beschikt over een lift en een gemeenschappelijke fietsenberging. Het appartement heeft centrale verwarming aardgas en is met EPC A energiezuinig.
Energie
![]() |
- EPC Certificaat: 20250823-0003666205-RES-1
- E-peil: E79
- Verwarming: Gas
- Beglazing: Hoog efficient dubbel
Zelfcheck
Op de kaart

Financieel
| Prijs | |
|---|---|
| Maandelijkse kosten | € 0 |
Bijkomende info
Gebouw
| Bouwjaar | 2013 |
|---|---|
| Staat | Goed onderhouden |
| Is beschermd | Nee |
| Bewoonbaar (m²) | 51.77 |
| Verdieping | 1 |
| Badkamers | 1 |
| Slaapkamers | 1 |
| Toiletten | 1 |
Ruimtes
| Slaapkamer | 13.2 m² |
|---|---|
| Terras | 3.4 m² |
Faciliteiten
| Keuken | Open keuken |
|---|---|
| Keuken uitrusting | Goed uitgerust |
| Materiaal ramenomlijstingen | PVC |
| Beglazing | Hoog efficient dubbel |
| Luiken | Nee |
| Brandstof primaire verwarming | Gas |
Perceel
| Overstromingsgevoelig | Geen |
|---|---|
| P-score | C |
| G-score | A |
| Voorkeurrecht | Nee |
| Oppervlakte terras (m²) | 3 |
Vergunning
| Vergunning | Vergunning beschikbaar |
|---|---|
| Type gebied | Stedelijk |
Uitrusting
| Meerdere eigenaars | Nee |
|---|---|
| Geschikt als kangoeroewoning | Nee |
| Geschikt voor rolstoelgebruikers | Nee |
| Geschikt voor praktijk | Nee |
| Volledig onderkelderd | Nee |
| Parking | Ja |
| Garage | Ja |
| Thuiskantoor | Nee |
| Kelder | Nee |
| Zolder | Nee |
| Opslagruimte | Nee |
| Tuin | Nee |
| Terras | Ja |
| Lift | Ja |
| Rioolaansluiting | Nee |
| Gasaansluiting | Ja |
| Wateraansluiting | Ja |
| Elektriciteitsaansluiting | Ja |
| TV aansluiting | Nee |
| Internetaansluiting | Nee |
| Zonnepanelen | Nee |
| Zonneboiler | Nee |
| Alarm | Nee |
| Zwembad | Nee |
| Jacuzzi | Nee |
| Toonzaal | Nee |
| Ventilatie | Nee |
Appartementsblok
| Naam residentie | Capri |
|---|---|
| Lift | Ja |
| Ondergrondse parking | Ja |
| Intercom | Nee |
Een pand van
Osaer-Pauwels Vastgoed
Welkom bij Osaer & Pauwels: (ver)kopen of (ver)huren zonder zorgen!
Osaer & Pauwels vastgoed, professionele en gepassioneerde medewerkers, de perfecte match die u en uw vastgoed verdienen
Onze diensten: verkoop van uw eigendom: professioneel en met hoge flexibiliteit, verhuur van woningen, appartementen, handelsruimte, garage, loods,… snel en geroutineerd
Schatting van uw eigendom: correct en realistisch. Bent u geïnteresseerd in onze diensten en wenst u meer informatie of een vrijblijvend bezoek aan uw woning?
Heeft u vragen of onduidelijkheden omtrent het verkopen of kopen van een woning? Aarzel dan niet om contact met ons op te nemen! Wij helpen u graag en enthousiast verder!
Wij bieden u: ruim 15 jaar vastgoed-ervaring, persoonlijke begeleiding, een toegewijde en professionele afhandeling, vrijblijvend advies en tips, doorheen het hele traject, gerichte publiciteit : etalage, online, gedrukte pers,…, een duidelijke en correcte verkoopsovereenkomst en communicatie, een uitgebreide database aan kandidaat-kopers en huurders,...
Leer meer over vastgoed
26 October 2025
Fake huuradvertenties op Facebook
06 July 2025
Wie betaalt herstellingen aan de huurwoning?
01 July 2025
Ik wil mijn huurcontract opzeggen. Hoe doe ik dit?
20 April 2025
