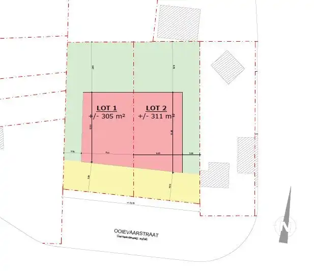
Grond te koop in Ichtegem
Resultaten in Ichtegem
- Te koop
- Gronden
85 panden gevonden
Relevantie
Relevantie
Dat zijn alle gronden in Ichtegem. Hieronder vind je andere types woningen in de omgeving van Ichtegem. Via de knop hiernaast krijg je een melding als er nieuwe gronden beschikbaar komen.




