Beschikbaar vanaf 16 aug. 2025
Overzicht
- 3000 m² bewoonbaar
Beschrijving
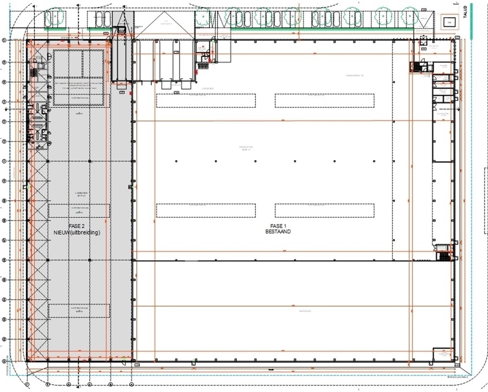
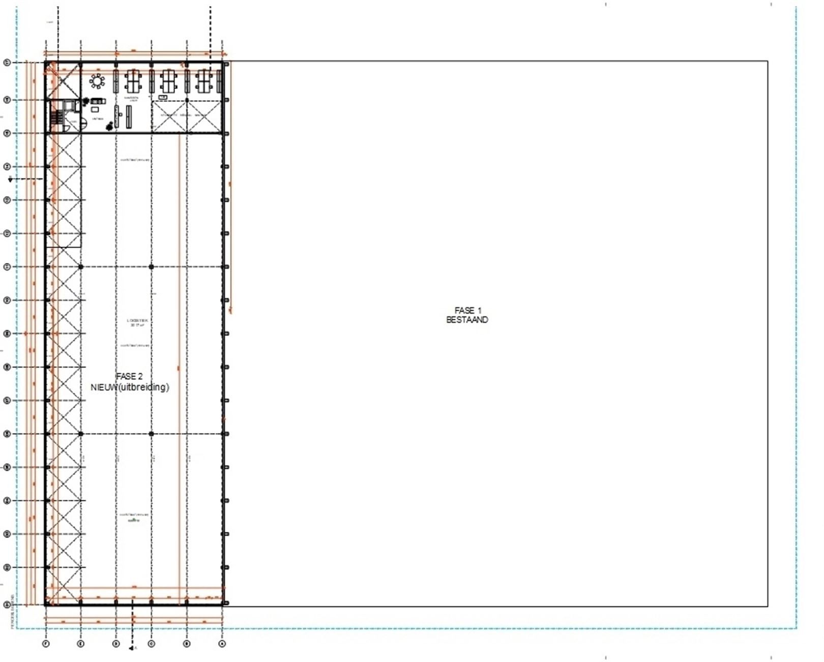
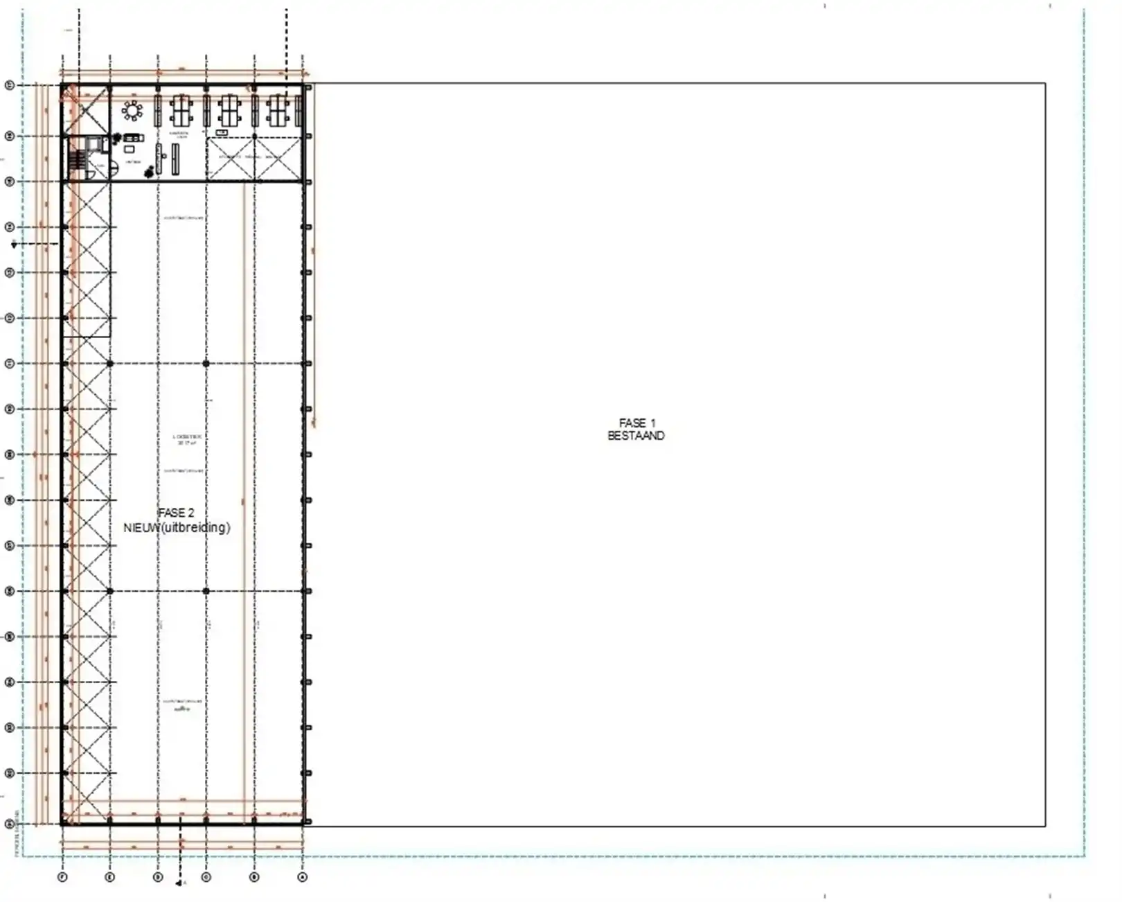
Magazijn te huur te Harelbeke
Ontdek dit hoogwaardig magazijn van 3000 m², gelegen in de strategische bedrijfszone Evolis in Harelbeke. Met een uitstekende bereikbaarheid en hoogwaardige specificaties biedt deze ruimte alles wat u nodig heeft om uw logistieke of opslagactiviteiten te optimaliseren.
Specificaties:
- Oppervlakte: 3000 m²
- Constructie: betonbouw
- Vrije hoogte: 10,55 meter
- Laad- en losfaciliteiten: 1 laad- en loskade en een grote sectionale poort
- Parkeren: Aantal parkeerplaatsen bespreekbaar op maat van uw noden
Topligging nabij autosnelwegen
Dit magazijn ligt in de economische zone Evolis, een locatie met uitstekende bereikbaarheid:
- E17: Slechts enkele minuten verwijderd, waardoor u directe verbinding heeft met belangrijke steden zoals Kortrijk, Gent en Rijsel.
- R8: Nabijgelegen ringweg zorgt voor een vlotte doorstroming in de regio en snelle aansluiting met omliggende gemeenten.
- N36: Rechtstreekse verbinding naar omliggende industriezones en regionale knooppunten.
Met deze centrale ligging bereikt u eenvoudig uw klanten, leveranciers en transportnetwerken.
Waarom kiezen voor dit magazijn?
- Gelegen in een moderne en dynamische bedrijvencampus
- Geschikt voor uiteenlopende sectoren: logistiek, productie of distributie
- Perfecte combinatie van ruimte, faciliteiten en bereikbaarheid
Bent u op zoek naar een magazijn dat uw bedrijfsactiviteiten naar een hoger niveau tilt? Contacteer ons vandaag voor meer informatie of een bezoek ter plaatse!
Energie
- E-peil: E0
- Beglazing: Onbekend
Op de kaart

Financieel
| Prijs | |
|---|---|
| Maandelijkse kosten | € 0 |
| Kadastraal inkomen (niet geïndexeerd) | € 0 |
| Kadastraal inkomen (geïndexeerd) | € 0 |
Bijkomende info
Gebouw
| Bouwcertificaat | Ja |
|---|---|
| Bewoonbaar (m²) | 3000 |
| Verdieping | 0 |
| Badkamers | 0 |
| Slaapkamers | 0 |
| Verdiepingen | 0 |
| Garages | 0 |
| Parkeerplaatsen | 0 |
| Doucheruimtes | 0 |
| Toiletten | 0 |
Faciliteiten
| Elektrisch keuringsattest | Ja |
|---|
Perceel
| Overstromingsgevoelig | Geen |
|---|---|
| Voorkeurrecht | Nee |
| Bebouwde oppervlakte (m²) | 0 |
| Tuin oppervlakte (m²) | 0 |
| Oppervlakte terras (m²) | 0 |
Uitrusting
| Investeringspand | Nee |
|---|---|
| Geschikt voor praktijk | Nee |
| Parking | Nee |
| Garage | Nee |
| Thuiskantoor | Nee |
| Kelder | Nee |
| Zolder | Nee |
| Tuin | Nee |
| Terras | Nee |
| Lift | Nee |
| Rioolaansluiting | Nee |
| Gasaansluiting | Nee |
| Wateraansluiting | Nee |
| Elektriciteitsaansluiting | Nee |
| TV aansluiting | Nee |
| Internetaansluiting | Nee |
| Telefoonaansluiting | Nee |
Appartementsblok
| Naam residentie | EVOLIS 119 HARELBEKE |
|---|---|
| Lift | Nee |
Een pand van
CEUSTERS
CEUSTERS
Onze experts in property management en vastgoedadvies stellen een kwalitatieve dienstverlening voorop. Creatief en flexibel gaat ons team op zoek naar kansen en oplossingen voor elke klant. Telkens een stapje verder. Naast onze kantoren in Antwerpen, Gent, Brussel, Hasselt en Rotterdam (Nederland), opereert CEUSTERS vanuit zes andere vestigingen verspreid over heel België. In deze snel veranderende wereld staat ons sterk inzicht in de lokale markt garant voor continuïteit.
EVOLIS 119 HARELBEKE
Leer meer over vastgoed
05 November 2024
Bedrijfsvastgoed in transitie: ontdek de toekomst van werkplekken
16 October 2024
Opbrengsteigendom: een slim pad naar passief inkomen en vermogensgroei
09 September 2024
Tijdelijk vastgoed: flexibele oplossingen voor een dynamische markt
12 August 2024