Nieuwbouw KMO-units van 223m² TE HUUR (VH van 7m, 2 parkings, aparte loopdeur en raam), te Kerkhove (Avelgem).
Een pand van CENTRO | VASTGOED
Favoriet
Jouw zoektocht
Jouw scoretabel voor dit pand
Aan het laden...
Jouw geplande bezichtigingen
Aan het laden...
Overzicht
- 223 m² bewoonbaar
- 223 m² grond
Beschrijving
Benaderende bruto-AFMETINGEN:
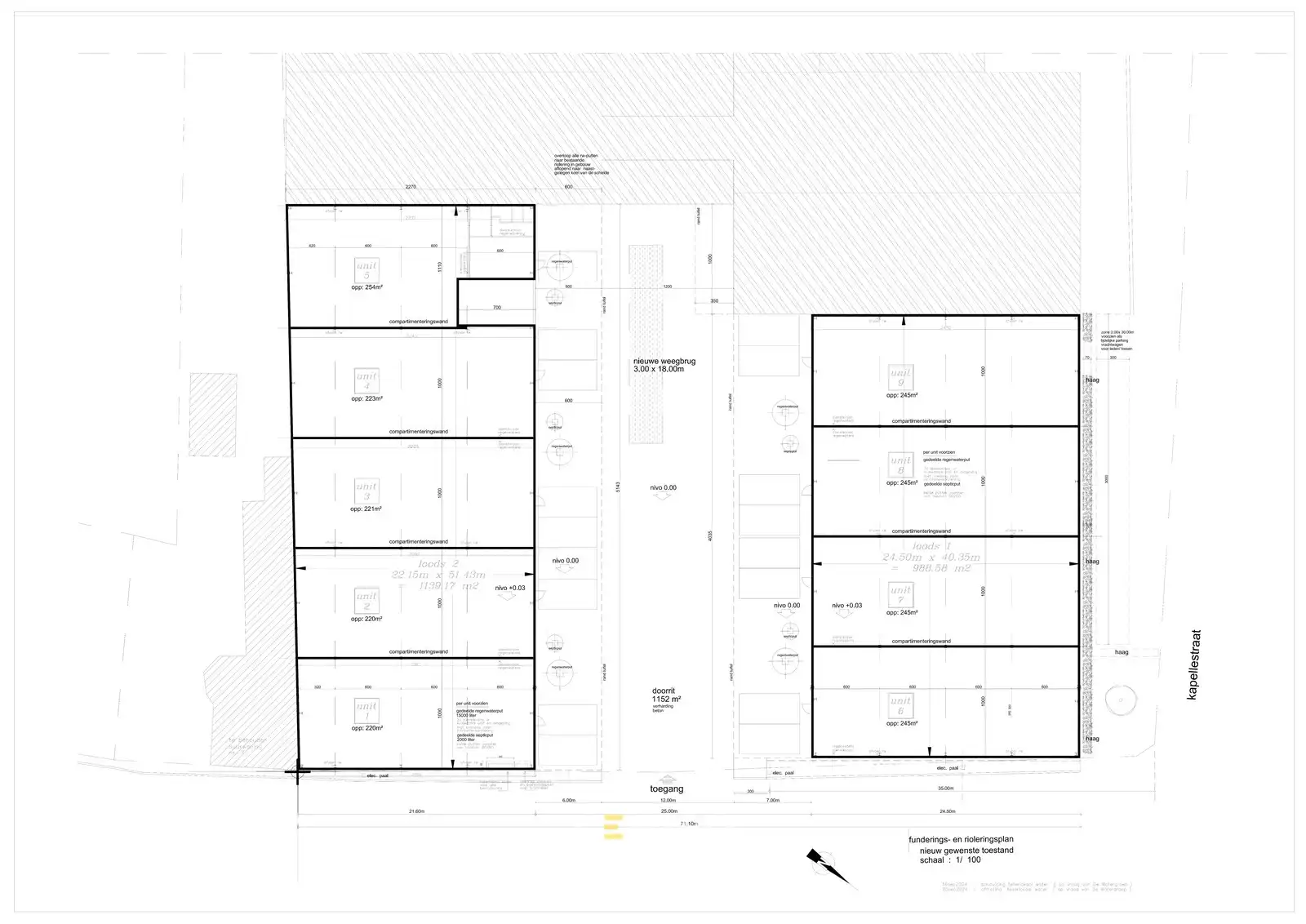
Magazijn: 223m²
2 private parkeerplaatsen
AFWERKING:
- Stalen constructie
- Gevelwanden in betonpanelen
- Gepolierde en gewapende betonvloer
- Luifel aan de voorkant !
- Geïsoleerd dak, bestaande uit steeldeck met grote centrale lichtstraat
- Geïsoleerde, elektrische sectionaalpoort (h: 4,5m; b: 4m)
- Afzonderlijke aluminium inkomdeur met raam, voorzien van aluminium schrijnwerk en hogerendementsbeglazing
- Twee stopcontacten + 1 drijfkracht
- Buitenverlichting
- Vrije hoogte 7m
NUTSVOORZIENINGEN:
Elektriciteit (63A) - stadswater - regenwater.
Iedere unit heeft een afzonderlijke tussenteller (de eigenaar plaatst zonnepanelen en een batterij).
Er is een gescheiden rioleringsstelsel voorzien voor afvoer regenwater en afvalwater. Per unit is een afvoer voorzien voor sanitaire module.
Per 2 units is er een RW-put van 15.000 liter voorzien. Deze regenput is voorzien van een aanzuigleiding socarex (1 per unit), met pomp.
OMGEVINGSWERKEN en TOEGANGSWEGEN:
Verharding in beton met een ruime doorrit van 12m breedte.
Weegbrug aanwezig 3 x 18m.
BESTEMMINGSMOGELIJKHEDEN:
Zone voor milieubelastende industrieën.
Opslag, productie, bewerking en verwerking van goederen.
LIGGING:
De KMO-loodsen aan Kaaistraat 5 in Kerkhove (deelgemeente van Avelgem) liggen in de Scheldevallei, in een zone met (watergebonden) bedrijvigheid langs de rivier de Schelde. Vlakbij het rondpunt naar N8 (Oudenaardsesteenweg-Brugstraat) en N36 (Bruggesteenweg).
E17 bereikbaar binnen ca. 20 minuten rijden.
* Bijzonderheden:
- Beschikbaar 01/06/2025.
- Geen gemene kosten !
- Mogelijkheid tot het plaatsen van een laadpaal op eigen kosten.
- Vermelde prijzen zijn excl. onroerende voorheffing (1m forfaitair), voorschot nutsen (€50/m) en BTW.
- Onze referentie op www.centro.be: P0497 of contacteer ons op 050 70 01 02.
Magazijn: 223m²
2 private parkeerplaatsen
AFWERKING:
- Stalen constructie
- Gevelwanden in betonpanelen
- Gepolierde en gewapende betonvloer
- Luifel aan de voorkant !
- Geïsoleerd dak, bestaande uit steeldeck met grote centrale lichtstraat
- Geïsoleerde, elektrische sectionaalpoort (h: 4,5m; b: 4m)
- Afzonderlijke aluminium inkomdeur met raam, voorzien van aluminium schrijnwerk en hogerendementsbeglazing
- Twee stopcontacten + 1 drijfkracht
- Buitenverlichting
- Vrije hoogte 7m
NUTSVOORZIENINGEN:
Elektriciteit (63A) - stadswater - regenwater.
Iedere unit heeft een afzonderlijke tussenteller (de eigenaar plaatst zonnepanelen en een batterij).
Er is een gescheiden rioleringsstelsel voorzien voor afvoer regenwater en afvalwater. Per unit is een afvoer voorzien voor sanitaire module.
Per 2 units is er een RW-put van 15.000 liter voorzien. Deze regenput is voorzien van een aanzuigleiding socarex (1 per unit), met pomp.
OMGEVINGSWERKEN en TOEGANGSWEGEN:
Verharding in beton met een ruime doorrit van 12m breedte.
Weegbrug aanwezig 3 x 18m.
BESTEMMINGSMOGELIJKHEDEN:
Zone voor milieubelastende industrieën.
Opslag, productie, bewerking en verwerking van goederen.
LIGGING:
De KMO-loodsen aan Kaaistraat 5 in Kerkhove (deelgemeente van Avelgem) liggen in de Scheldevallei, in een zone met (watergebonden) bedrijvigheid langs de rivier de Schelde. Vlakbij het rondpunt naar N8 (Oudenaardsesteenweg-Brugstraat) en N36 (Bruggesteenweg).
E17 bereikbaar binnen ca. 20 minuten rijden.
* Bijzonderheden:
- Beschikbaar 01/06/2025.
- Geen gemene kosten !
- Mogelijkheid tot het plaatsen van een laadpaal op eigen kosten.
- Vermelde prijzen zijn excl. onroerende voorheffing (1m forfaitair), voorschot nutsen (€50/m) en BTW.
- Onze referentie op www.centro.be: P0497 of contacteer ons op 050 70 01 02.
Energie
- E-peil: E0
- Beglazing: Onbekend
Op de kaart

Financieel
| Prijs | |
|---|---|
| Maandelijkse kosten | € 0 |
Bijkomende info
Gebouw
| Bouwjaar | 2026 |
|---|---|
| Bewoonbaar (m²) | 223 |
| Badkamers | 0 |
| Slaapkamers | 0 |
| Verdiepingen | 0 |
| Garages | 0 |
| Parkeerplaatsen | 0 |
| Toiletten | 0 |
Faciliteiten
| Septische tank | Nee |
|---|
Perceel
| Overstromingsgevoelig | Geen |
|---|---|
| P-score | A |
| G-score | A |
| Totale oppervlakte (m²) | 223 |
| Bebouwde oppervlakte (m²) | 223 |
Vergunning
| Verkavelingsvergunning | Geen beschikbaar |
|---|
Uitrusting
| Investeringspand | Nee |
|---|---|
| Parking | Nee |
| Garage | Nee |
| Lift | Nee |
| Rioolaansluiting | Ja |
| Gasaansluiting | Nee |
| Wateraansluiting | Ja |
| Elektriciteitsaansluiting | Ja |
| Internetaansluiting | Ja |
| Telefoonaansluiting | Nee |
| Zonnepanelen | Ja |
| Zonneboiler | Nee |
| Alarm | Nee |
| Videofoon | Nee |
| Grondwaterput | Ja |
Appartementsblok
| Lift | Nee |
|---|---|
| Intercom | Nee |
Een pand van
CENTRO | VASTGOED
CENTRO | VASTGOED is het ‘CENTRUM’ tussen partijen (Verkoper/koper, Verhuurder/huurder) in al uw vastgoedtransacties
SPECIALISATIES DRINGEN ZICH OP.
OOK IN HET VASTGOED!
Deze tendens is ook duidelijk zichtbaar op andere terreinen, denk maar aan dokters/specialisten, advocaten (strafpleiters, echtscheidingen, vennootschapsrecht, successie, …)
Alles even goed kunnen is een illusie. Men wil op vandaag geïnformeerd en gediend worden door een specialist, waardoor men onmiddellijk de juiste informatie krijgt en weet waar men staat. Met verkeerde informatie verliest men tijd en tijd kost geld!
CENTRO telt 4 specialisaties, met name bedrijfsvastgoed, woonvastgoed, investeringsvastgoed en nieuwbouw, die elk op een verschillende manier behandeld worden door onze experts.
Voor iedere specialisatie is er een andere doelgroep, waarvoor andere zoekcriteria gelden en een gerichte verkoopsstrategie vereisen.
Dankzij een sterke opleiding en heel wat jaren ervaring op de teller, kennen onze medewerkers deze complexe markten, met hun regelgevingen en trends als de beste.
P0497-4
Leer meer over vastgoed
04 January 2026
Zoek je een kantoor, een magazijn of… iets ertussenin? Bedrijfsvastgoed uitgelegd
05 November 2024
Bedrijfsvastgoed in transitie: ontdek de toekomst van werkplekken
16 October 2024
Opbrengsteigendom: een slim pad naar passief inkomen en vermogensgroei
09 September 2024