Centraal gelegen handelspand
Een pand van Janssen en Janssen
Jouw zoektocht
Overzicht
- 87 m² bewoonbaar
- 1 Toilet(ten)
Beschrijving
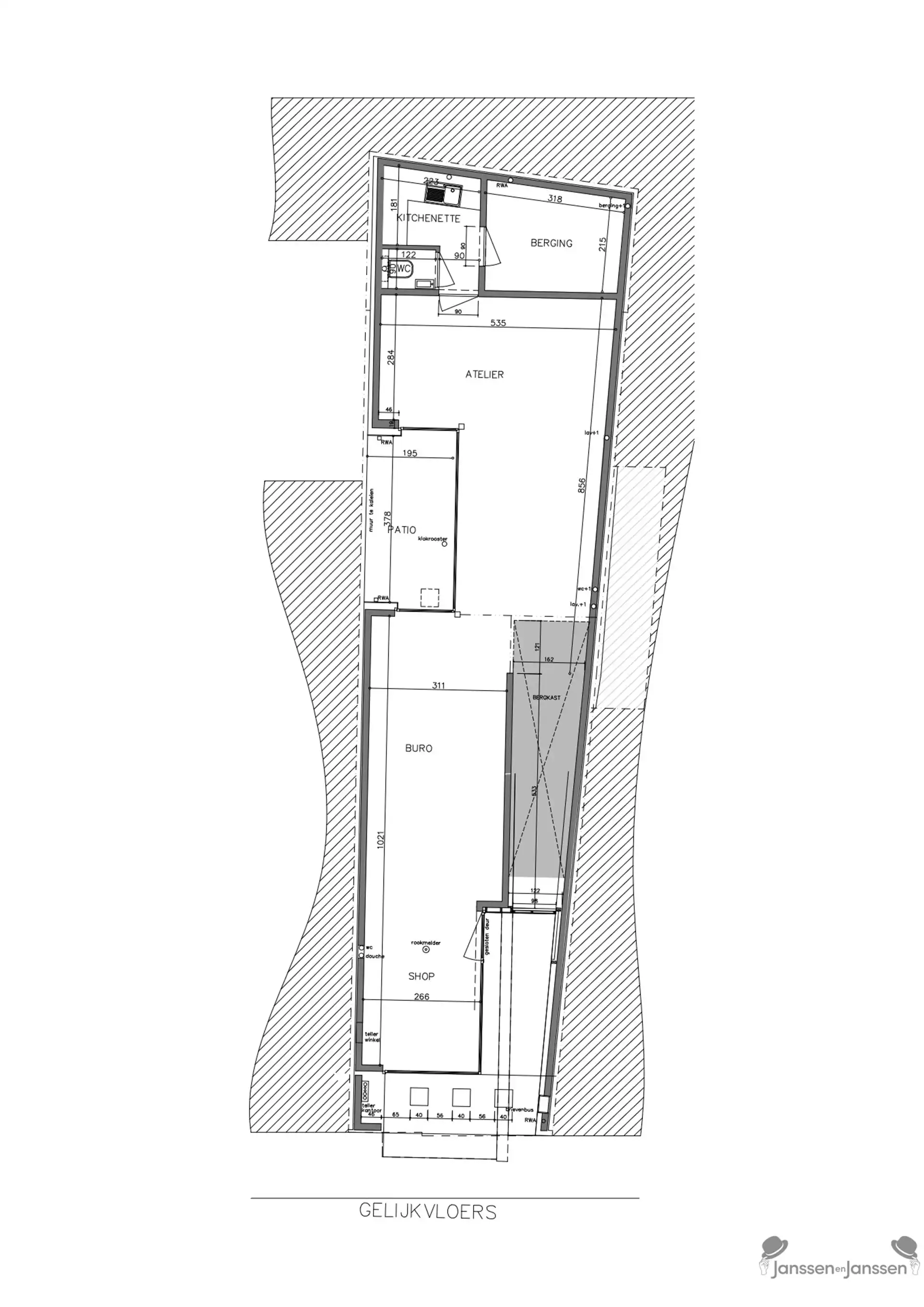
Handelspand te huur in centrum Dendermonde (87 m²) - vrij midden april 2026
Uniek en instapklaar handelspand te huur op een absolute toplocatie in hartje Dendermonde. Dit veelzijdige gelijkvloerse pand combineert een moderne look met een ruim en lichtrijk interieur, ideaal voor ondernemers die op zoek zijn naar een professionele, creatieve of commerciële ruimte in het centrum.
Het pand is volledig afgewerkt met strakke witte wanden, een industrieel plafond met zichtbare leidingen en een donkere gietvloer, wat zorgt voor een hedendaagse en professionele uitstraling.
Dankzij de indeling is dit pand perfect voor o.a.:
- Winkel / showroom
- Kantoor (bv. architect, advocaat, boekhouder, designstudio)
- Creatieve werkruimte of atelier
- Medische of paramedische praktijk (na aanpassingen
Troeven: energiezuinig (EPC B), grote glaspartijen, professionele uitstraling, rustige buitenruimte & multifunctioneel inzetbaar.
Interesse? Contacteer ons voor een bezoek op 052/50 50 00
Energie
![]() |
- EPC Certificaat: 20260130-0003787942-KNR-1
- E-peil: E0
- Beglazing: Standaard dubbel
Op de kaart

Financieel
| Prijs | |
|---|---|
| Maandelijkse kosten | € 0 |
| Kadastraal inkomen (niet geïndexeerd) | € 0 |
| Kadastraal inkomen (geïndexeerd) | € 0 |
Bijkomende info
Gebouw
| Bouwjaar | 2011 |
|---|---|
| Staat | Goed onderhouden |
| Bouwcertificaat | Nee |
| Bewoonbaar (m²) | 87 |
| Verdieping | 0 |
| Badkamers | 0 |
| Slaapkamers | 0 |
| Verdiepingen | 2 |
| Garages | 0 |
| Parkeerplaatsen | 0 |
| Doucheruimtes | 0 |
| Toiletten | 1 |
Faciliteiten
| Materiaal ramenomlijstingen | Aluminium |
|---|---|
| Beglazing | Standaard dubbel |
| Elektrisch keuringsattest | Nee |
Perceel
| Overstromingsgevoelig | Geen |
|---|---|
| P-score | A |
| G-score | A |
| Voorkeurrecht | Nee |
| Bebouwde oppervlakte (m²) | 0 |
| Tuin oppervlakte (m²) | 0 |
| Oppervlakte terras (m²) | 6 |
Vergunning
| Vergunning | Vergunning beschikbaar |
|---|
Uitrusting
| Investeringspand | Nee |
|---|---|
| Geschikt voor praktijk | Nee |
| Parking | Nee |
| Garage | Nee |
| Thuiskantoor | Ja |
| Kelder | Nee |
| Zolder | Nee |
| Tuin | Nee |
| Terras | Ja |
| Lift | Nee |
| Rioolaansluiting | Ja |
| Gasaansluiting | Nee |
| Wateraansluiting | Ja |
| Elektriciteitsaansluiting | Ja |
| TV aansluiting | Ja |
| Internetaansluiting | Ja |
| Telefoonaansluiting | Ja |
Appartementsblok
| Aantal verdiepingen | 2 |
|---|---|
| Lift | Nee |
