Magazijn + kantoor op zichtlocatie langs E17
€ 12.500
Een pand van CEUSTERS
Favoriet
Jouw zoektocht
Jouw scoretabel voor dit pand
Aan het laden...
Jouw geplande bezichtigingen
Aan het laden...
Overzicht
- 3181 m² bewoonbaar
Beschrijving
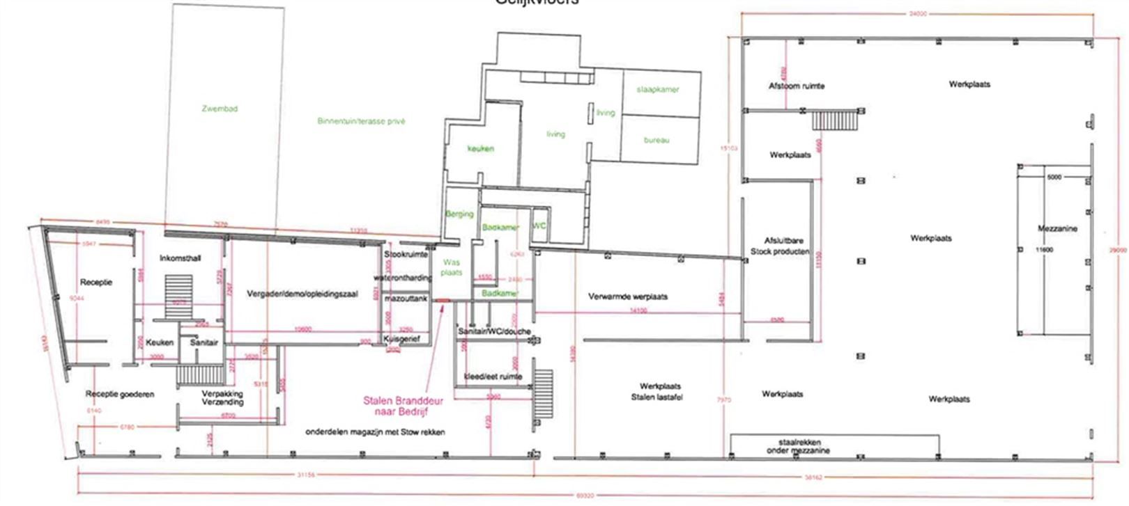
Ceusters biedt een magazijn (1.393 m²) met kantoren (588 m²) én buitenruimte (1.200 m²) aan op een toplocatie in Kruisem. De site ligt aan de E17 (richting Gent -> Kortrijk) waardoor er een indrukwekkende visibiliteit gecreëerd wordt (gevelbreedte +/- 40 meter). Deze strategische locatie biedt een gemakkelijke toegang tot belangrijke snelwegen en transportroutes. De oprit van de E17 is op minder dan 1 km gelegen, waardoor men enerzijds eenvoudig richting Gent of Kortrijk kan gaan, en anderzijds richting Deinze of Gavere via de N35.
- 1.150 m² magazijn + 243 m² mezzanine (werkatelier)
- 3 sectionaalpoorten
- polybetonvloer
- alarmsysteem
- 588 m² kantoren
- Verwarming en koeling aanwezig
- Ruime compartimentering met natuurlijke lichtinval
- Stijlvolle inkom
- verspreid over 2 verdiepingen
- 1.200 m² buitenruimte met visibiliteit E17
De site beschikt ook over een residentiële woning die mee in het pakket wordt aangeboden, maar niet moet gebruikt worden.
De site is vrij en onmiddellijk beschikbaar.
Energie
- E-peil: E0
- Beglazing: Onbekend
Op de kaart

Financieel
| Prijs | |
|---|---|
| Maandelijkse kosten | € 0 |
| Kadastraal inkomen (niet geïndexeerd) | € 0 |
| Kadastraal inkomen (geïndexeerd) | € 0 |
Bijkomende info
Gebouw
| Bouwcertificaat | Nee |
|---|---|
| Bewoonbaar (m²) | 3181 |
| Verdieping | 0 |
| Badkamers | 0 |
| Slaapkamers | 0 |
| Verdiepingen | 0 |
| Garages | 0 |
| Parkeerplaatsen | 0 |
| Doucheruimtes | 0 |
| Toiletten | 0 |
Faciliteiten
| Elektrisch keuringsattest | Ja |
|---|
Perceel
| Overstromingsgevoelig | Geen |
|---|---|
| Voorkeurrecht | Nee |
| Bebouwde oppervlakte (m²) | 0 |
| Tuin oppervlakte (m²) | 0 |
| Oppervlakte terras (m²) | 0 |
Vergunning
| Vergunning | Vergunning beschikbaar |
|---|
Uitrusting
| Investeringspand | Nee |
|---|---|
| Geschikt voor praktijk | Nee |
| Parking | Nee |
| Garage | Nee |
| Thuiskantoor | Nee |
| Kelder | Nee |
| Zolder | Nee |
| Tuin | Nee |
| Terras | Nee |
| Lift | Nee |
| Rioolaansluiting | Ja |
| Gasaansluiting | Ja |
| Wateraansluiting | Ja |
| Elektriciteitsaansluiting | Ja |
| TV aansluiting | Nee |
| Internetaansluiting | Nee |
| Telefoonaansluiting | Ja |
Appartementsblok
| Naam residentie | MG Kruisem |
|---|---|
| Lift | Nee |
Een pand van
CEUSTERS
CEUSTERS
Onze experts in property management en vastgoedadvies stellen een kwalitatieve dienstverlening voorop. Creatief en flexibel gaat ons team op zoek naar kansen en oplossingen voor elke klant. Telkens een stapje verder. Naast onze kantoren in Antwerpen, Gent, Brussel, Hasselt en Rotterdam (Nederland), opereert CEUSTERS vanuit zes andere vestigingen verspreid over heel België. In deze snel veranderende wereld staat ons sterk inzicht in de lokale markt garant voor continuïteit.
LEENBEEKSTRAAT 9 KRUISEM
Leer meer over vastgoed
04 January 2026
Zoek je een kantoor, een magazijn of… iets ertussenin? Bedrijfsvastgoed uitgelegd
05 November 2024
Bedrijfsvastgoed in transitie: ontdek de toekomst van werkplekken
16 October 2024
Opbrengsteigendom: een slim pad naar passief inkomen en vermogensgroei
09 September 2024