Nieuw Virtual tour
Opbrengstwoning met 2 appartementen en 3 garageboxen
Een pand van Multimmo
Overzicht
- 199 m² bewoonbaar
- 250 m² grond
- 3 Slaapkamer(s)
- 2 Badkamer(s)
- 3 Garage(s)
Beschrijving
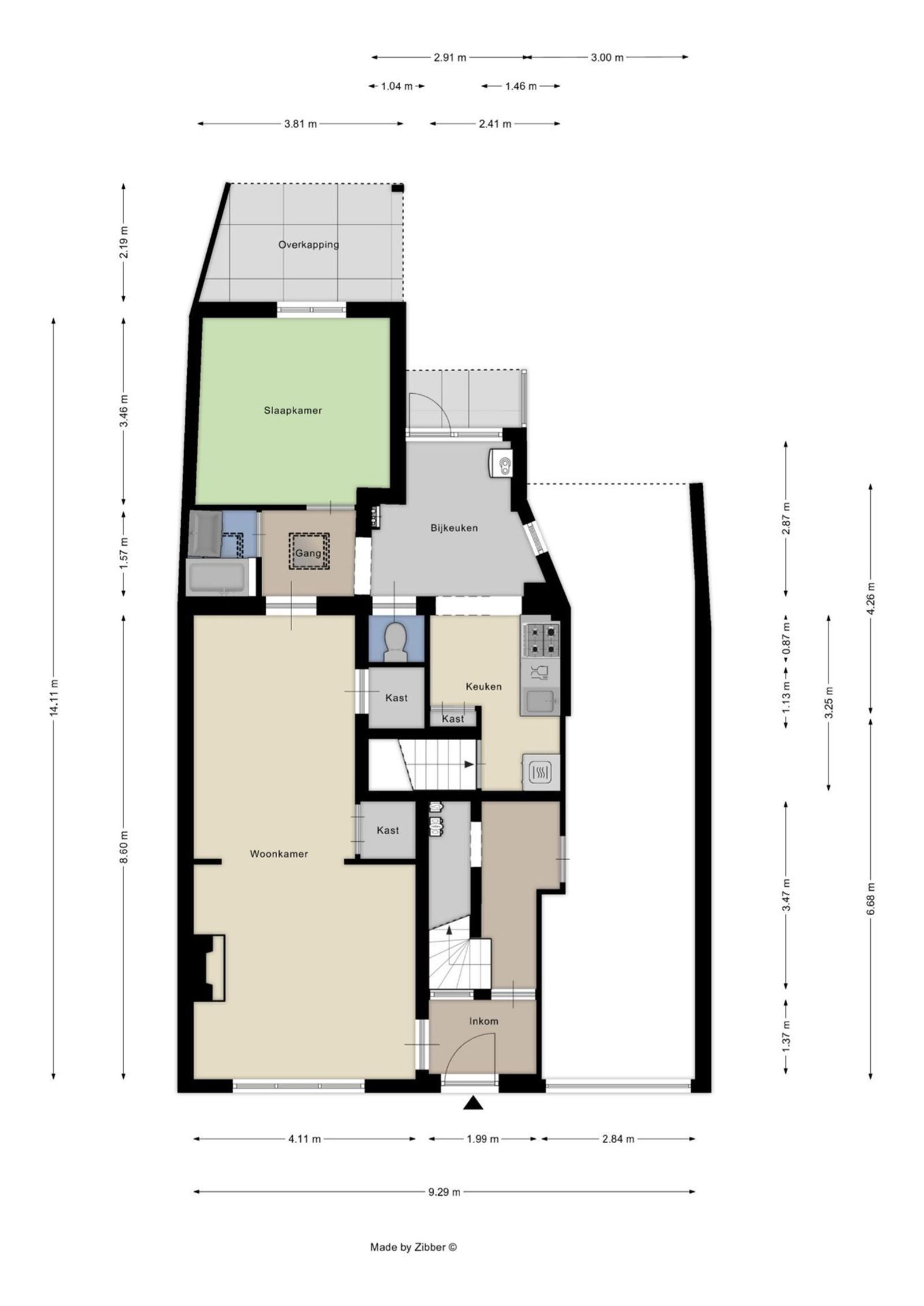
Gelijkvloers
Inkomhal
Hal
Living 3,9m x 4,5m = 17,5m² ( parket )
Eetkamer 4,5m x 3,2m = 14,4m² ( parket )
Keuken 2,1m x 2,7m = 5,7m² ( tegels )
Badkamer 1,6m x 1,2m = 1,9m² ( tegels , bad, lavabo )
WC ( tegels )
Slaapkamer 3,4m x 3,8m = 12,9m² ( parket )
Garage ( 3 garageboxen toegankelijk via een doorgang rechts van het gebouw )
Verdieping 1
Hal
Living en eetkamer 5,1m x 5,1m = 26,1m² ( parket )
Keuken 3,4m x 3,0m = 10,2m² ( tegels )
Badkamer 2,1m x 2,1m = 4,4m² ( tegels )
WC ( tegels )
Slaapkamer 4,0m x 2,5m = 10,0m²
Slaapkamer 4,8m x 4,0m = 19,2m² ( tapijttegels )
Verdieping 2
Bergingszolder
Energie
![]() |
- Energieverbruik: 553 kWh/m²/jaar
- E-peil: E0
- Verwarming: Gas
- Beglazing: Enkel
Op de kaart

Downloads
- Asbestinventarisattest 1ste verdiep.pdf
- Asbestinventarisattest GV.pdf
- EPC 1ste verdiep.pdf
- EPC GV.pdf
- Overstromingsrapport.pdf
- gdpr Elektrische keuring 1ste verdiep Terheydestraat 16 SGR.pdf
- gdpr Elektrische keuring GV Terheydestraat 16 SGR.pdf
- SI Terheydestraat 16 SGR.pdf
- asbestattest VME- Terheydestraat 16, Sint-Genesius-Rode - gemeenschappelijk gebruikte delen.pdf
- 1STE.pdf
- garage.pdf
- GV.pdf
- kelder.pdf
Financieel
Prijs | |
---|---|
Kadastraal inkomen (niet geïndexeerd) | € 2.508 |
Kadastraal inkomen (geïndexeerd) | € 0 |
Berekening kosten
Je aankoopkosten? Die heb je snel berekent via de knop hieronder.
Bijkomende info
Gebouw
Bouwjaar | 1930 |
---|---|
Staat | Op te frissen |
Bouwcertificaat | Nee |
Bewoonbaar (m²) | 199 |
Verdieping | 0 |
Badkamers | 2 |
Slaapkamers | 3 |
Verdiepingen | 0 |
Garages | 3 |
Parkeerplaatsen | 0 |
Doucheruimtes | 0 |
Toiletten | 0 |
Faciliteiten
Keuken uitrusting | Standaard |
---|---|
Materiaal ramenomlijstingen | Hout |
Beglazing | Enkel |
Brandstof primaire verwarming | Gas |
Elektrisch keuringsattest | Nee |
Perceel
Overstromingsgevoelig | Geen |
---|---|
P-score | A |
G-score | A |
Voorkeurrecht | Ja |
Totale oppervlakte (m²) | 250 |
Bebouwde oppervlakte (m²) | 0 |
Tuin oppervlakte (m²) | 0 |
Oppervlakte terras (m²) | 0 |
Oriëntatie tuin | Zuid |
Vergunning
Vergunning | Vergunning beschikbaar |
---|
Uitrusting
Investeringspand | Ja |
---|---|
Geschikt voor praktijk | Nee |
Parking | Nee |
Garage | Ja |
Thuiskantoor | Nee |
Kelder | Nee |
Zolder | Ja |
Tuin | Nee |
Terras | Nee |
Lift | Nee |
Rioolaansluiting | Nee |
Gasaansluiting | Ja |
Wateraansluiting | Ja |
Elektriciteitsaansluiting | Ja |
TV aansluiting | Ja |
Internetaansluiting | Ja |
Telefoonaansluiting | Ja |
Appartementsblok
Lift | Nee |
---|
Een pand van
Multimmo
Vastgoedkantoor
Multimmo werd in 2000 opgericht door Olivier Degreef en Filip Derkinderen. Een brede ploeg van medewerkers deelt graag zijn ervaring met u. Dankzij onze sterke verbondenheid met en kennis van de regio voelen we goed aan hoe we uw woning het best in de markt zetten.
Ons ruime aanbod trekt sowieso veel kopers en huurders aan. U vindt ons aanbod terug op www.multimmo.be
TERHEYDESTRAAT 16 SINT-GENESIUS-RODE
Leer meer over vastgoed
11 June 2025
Huis kopen met bouwovertreding? Dit moet je weten
11 May 2025
Renoveren? Vraag je Mijn VerbouwPremie aan
22 April 2025
Je allereerste renovatieproject selecteren én budgetteren: met de praktische hulp van Spotto
17 February 2025