Appartement met tuin
€ 286.000
1800 VILVOORDE
Een pand van Ring Consult
Jouw zoektocht
Overzicht
- 108 m² bewoonbaar
- 2 Slaapkamer(s)
- 1 Badkamer(s)
- 1 Toilet(ten)
- 1 Tuin
Beschrijving
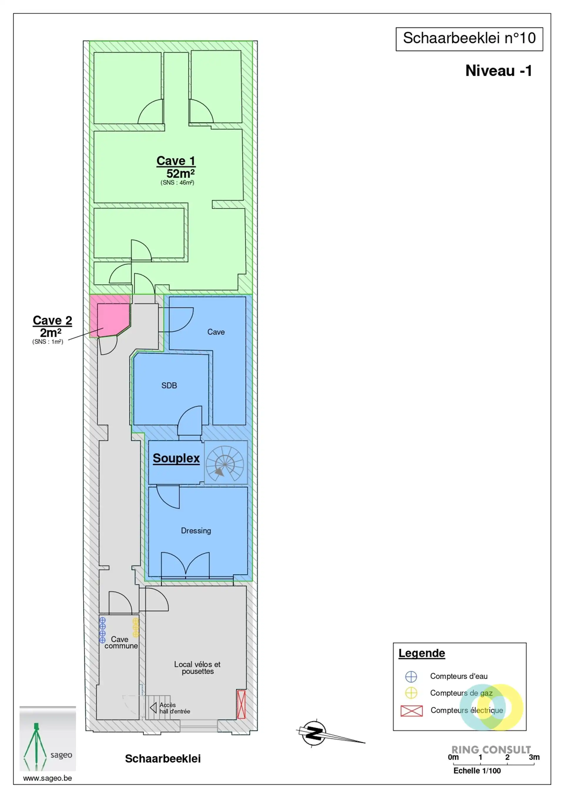
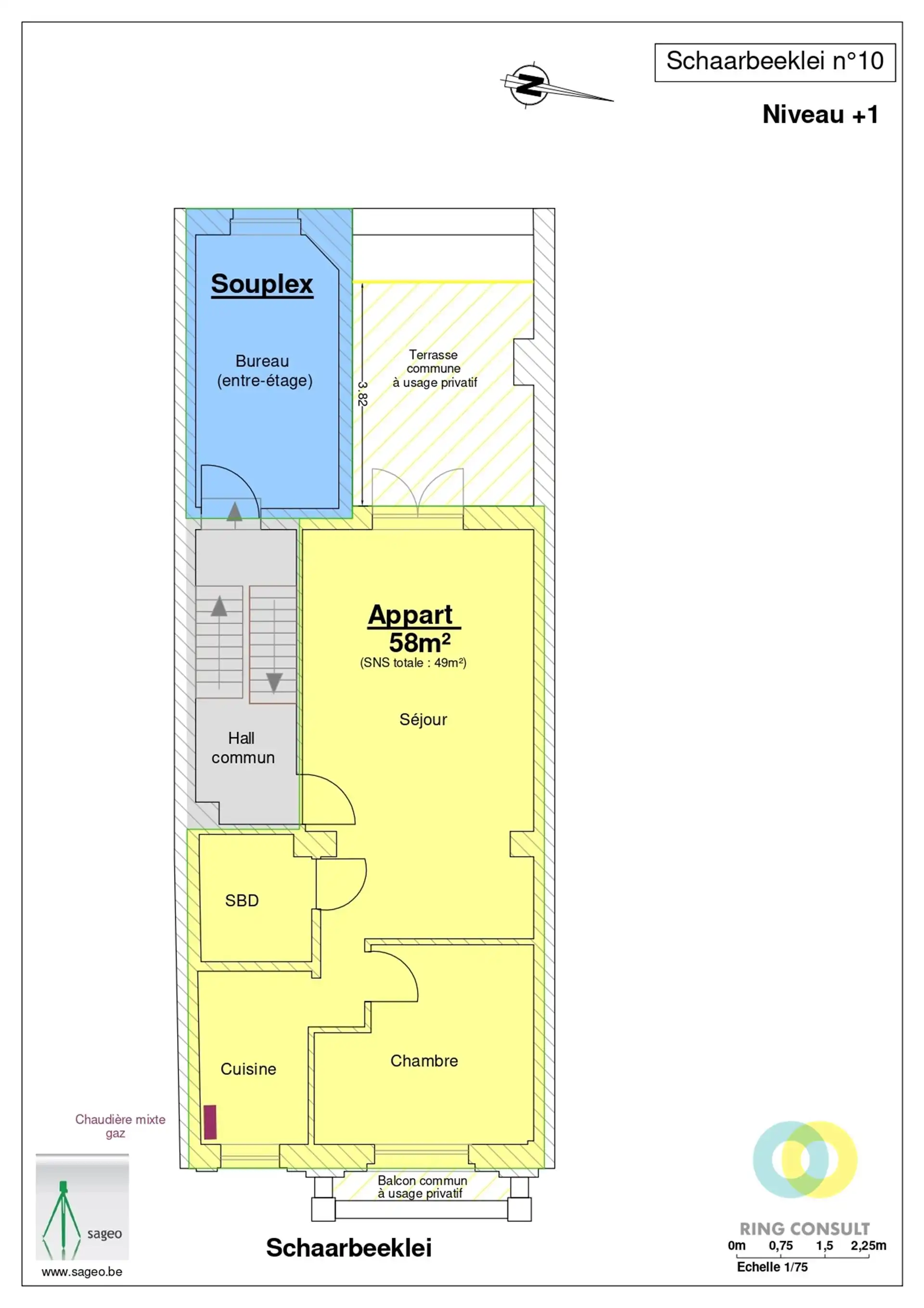
Dit appartement is ideaal gelegen in het centrum van Vilvoorde, op wandelafstand van het station en met een uitstekende bereikbaarheid. Het appartement beslaat het gelijkvloers van een kleinschalig gebouw met slechts drie units, zonder gemeenschappelijke lasten, een belangrijke meerwaarde voor zowel eigen bewoning als investering. In 2025 werd het appartement grondig gerenoveerd en het combineert vandaag een centrale ligging met hedendaags wooncomfort. Bovendien is het volledig conform de geldende wooncode en beschikt het over een gunstig EPC-attest (label C), wat garant staat voor een energiezuinige en zorgeloze investering. De indeling (waarvan uw in de foto's een plan vind) omvat een lichtrijke leefruimte met open keuken van in totaal 42,5 m², die uitkijkt op en toegang geeft tot de ruime buitenruimte met een terras van 60 m² en een tuin van 24 m², ideaal om te genieten van zomerse barbecues of voor wie een huisdier heeft. Op het gelijkvloers bevindt zich tevens de eerste slaapkamer van 14,5 m². Vanuit de leefruimte leidt een inpandige trap naar de badkamer en een bureau. Op het entresol bevindt zich een tweede kamer die dienst kan doen als gastenkamer of bureau, gescheiden door de gemeenschappelijke trap. Daarnaast beschikt het appartement over een praktische polyvalente ruimte op de -1 verdieping van 54 m². Deze ruimte is momenteel opgedeeld in verschillende bergingen, maar kan volledig heringericht worden volgens eigen wensen en behoeften. Extra troef is de gemeenschappelijke fietsenberging.
Energie
![]() |
- EPC Certificaat: 20250605-0003618385-RES-1
- Energieverbruik: 280 kWh/m²/jaar
- E-peil: E0
- Verwarming: Gas
- Beglazing: Standaard dubbel
Financieel
| Prijs | |
|---|---|
| Kadastraal inkomen (niet geïndexeerd) | € 609 |
| Kadastraal inkomen (geïndexeerd) | € 0 |
Berekening kosten
Je aankoopkosten? Die heb je snel berekend via de knop hieronder.
Bijkomende info
Gebouw
| Bouwjaar | 1918 |
|---|---|
| Staat | Goed onderhouden |
| Bouwcertificaat | Nee |
| Bewoonbaar (m²) | 108 |
| Verdieping | 0 |
| Badkamers | 1 |
| Slaapkamers | 2 |
| Verdiepingen | 3 |
| Garages | 0 |
| Parkeerplaatsen | 0 |
| Doucheruimtes | 0 |
| Toiletten | 1 |
Faciliteiten
| Keuken uitrusting | Luxueus uitgerust |
|---|---|
| Materiaal ramenomlijstingen | PVC |
| Beglazing | Standaard dubbel |
| Brandstof primaire verwarming | Gas |
| Elektrisch keuringsattest | Ja |
Perceel
| Overstromingsgevoelig | Mogelijk overstromingsgevoelig |
|---|---|
| P-score | C |
| G-score | C |
| Voorkeurrecht | Ja |
| Bebouwde oppervlakte (m²) | 0 |
| Tuin oppervlakte (m²) | 24 |
| Oppervlakte terras (m²) | 60 |
| Oriëntatie tuin | West |
Vergunning
| Vergunning | Aanvraag ingediend |
|---|---|
| Verkavelingsvergunning | Aanvraag ingediend |
Uitrusting
| Investeringspand | Nee |
|---|---|
| Geschikt voor praktijk | Nee |
| Parking | Nee |
| Garage | Nee |
| Thuiskantoor | Nee |
| Kelder | Ja |
| Zolder | Nee |
| Tuin | Ja |
| Terras | Ja |
| Lift | Nee |
| Rioolaansluiting | Ja |
| Gasaansluiting | Ja |
| Wateraansluiting | Ja |
| Elektriciteitsaansluiting | Ja |
| TV aansluiting | Ja |
| Internetaansluiting | Ja |
| Telefoonaansluiting | Ja |
Appartementsblok
| Aantal verdiepingen | 3 |
|---|---|
| Lift | Nee |
