Nieuw
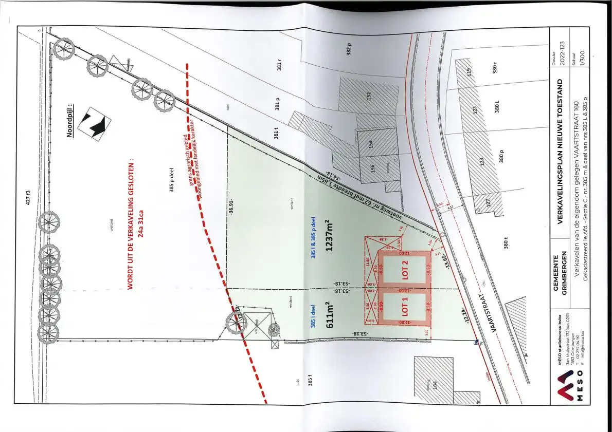
Prachtige bouwgrond te koop op 12are te Grimbergen!
€ 295.000
Een pand van Dewaele Vastgoed
Overzicht
- 1200 m² grond
Beschrijving
Goed gelegen bouwgrond voor een driegevelwoning, in een rustige straat te Grimbergen!
Deze grond is perfect gelegen vlakbij het centrum van Humbeek en Grimbergen! Ideaal om te bouwen, met prachtig zicht op weiland. De grond is niet gelegen in overstromingsgevoelig gebied.
De voorschriften kan u rechtstreeks downloaden via onze website maar hierbij al enkelen:
Maximaal 2 bouwlagen, exclusief dakverdieping.
Ondergronds kan een extra bouwlaag worden
toegestaan, binnen de maximale bouwzone
De bebouwbare oppervlakte op het gelijkvloers
dient minimaal 80m² te bedragen en maximaal
deze van de op het verkavelingsplan aangegeven
bouwperimeter.
Maximale kroonlijsthoogte bij een hellend dak:
6,00m. Maximale kroonlijsthoogte bij een plat dak 6,50m
bij twee bouwlagen en 3,50m voor de gelijkvloerse
bouwlaag!
De voorschriften kan u rechtstreeks downloaden via onze website maar hierbij al enkelen:
Maximaal 2 bouwlagen, exclusief dakverdieping.
Ondergronds kan een extra bouwlaag worden
toegestaan, binnen de maximale bouwzone
De bebouwbare oppervlakte op het gelijkvloers
dient minimaal 80m² te bedragen en maximaal
deze van de op het verkavelingsplan aangegeven
bouwperimeter.
Maximale kroonlijsthoogte bij een hellend dak:
6,00m. Maximale kroonlijsthoogte bij een plat dak 6,50m
bij twee bouwlagen en 3,50m voor de gelijkvloerse
bouwlaag!
Energie
Op de kaart

Financieel
| Prijs |
|---|
Berekening kosten
Je aankoopkosten? Die heb je snel berekent via de knop hieronder.
Bijkomende info
Perceel
| Totale oppervlakte (m²) | 1200 |
|---|
Uitrusting
| Investeringspand | Nee |
|---|
Een pand van
Dewaele Vastgoed
Dewaele Real Estate nv
Dewaele Real Estate nv
D1850-23022-K
Leer meer over vastgoed
24 November 2025
Uitgezocht voor jouw gemeente: Hoeveel stijgt de waarde van je woning door een renovatie?
22 October 2025
Hoeveel kan ik lenen om een huis te kopen?
11 June 2025
Huis kopen met bouwovertreding? Dit moet je weten
11 May 2025