Nieuw
Karaktervolle 2-gevelwoning te koop in Grimbergen
€ 399.000
Een pand van Dewaele Vastgoed
Overzicht
- 273 m² grond
- 3 Slaapkamer(s)
- 1 Badkamer(s)
- 1 Toilet(ten)
- 1 Tuin
Beschrijving
Op zoek naar een charmante woning met ruimte, licht en een uitstekende ligging? Deze karaktervolle 2-gevelwoning met centrale ligging in Grimbergen combineert authenticiteit met hedendaags comfort.
De woning is gelegen langs de Beigemsesteenweg, een belangrijke verbindingsas tussen Grimbergen en de omliggende gemeenten.
U geniet hier van:
- Vlotte verbindingen naar Brussel en de Ring
- Nabijheid van scholen, winkels en openbaar vervoer
- De charme van het historische Grimbergen met zijn abdij, wandel- en fietsroutes
De indeling van de woning ziet er als volgt uit:
Gelijkvloers
- Ruime inkomhal
- Woonkamer met zithoek en eetplaats
- Moderne badkamer met inloopdouche en dubbele lavabo
- Lichtrijke keuken voorzien van een dubbele spoeltafel, ingebouwde oven en koelkast
- Naast de keuken bevindt zich een ruime berging
- Gastentoilet
- Rechtstreekse toegang naar de grote tuin (153m²)
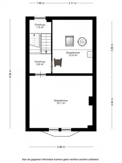
Eerste verdiep
- Masterbedroom (20m²)
- Tweede slaapkamer (12m²)
Tweede verdiep
- Derde slaapkamer (19m²), nog verder af te werken
- Zolderruimte met vide (16m²)
Ondergrondse verdieping
- Ruime kelder aanwezig (9m²)
Troeven:
- Karaktervol en instapklaar huis
- Goede EPC-score
- Elektriciteit conform
- Autostaanplaats met laadpaal aanwezig
Wenst u meer informatie en/of een bezoek? Neem dan contact op met onze makelaar Vicky en ze helpt u graag verder.
De eigendom wordt aangeboden via de Pre-sale formule. Op 15/03/2026 tussen 10:00 en 12:00 kan u de woning op afspraak komen bezichtigen en een bod uitbrengen. De vermelde prijs is een instelprijs. Voor meer info, gelieve contact op te nemen met de dossierverantwoordelijke.
U geniet hier van:
- Vlotte verbindingen naar Brussel en de Ring
- Nabijheid van scholen, winkels en openbaar vervoer
- De charme van het historische Grimbergen met zijn abdij, wandel- en fietsroutes
De indeling van de woning ziet er als volgt uit:
Gelijkvloers
- Ruime inkomhal
- Woonkamer met zithoek en eetplaats
- Moderne badkamer met inloopdouche en dubbele lavabo
- Lichtrijke keuken voorzien van een dubbele spoeltafel, ingebouwde oven en koelkast
- Naast de keuken bevindt zich een ruime berging
- Gastentoilet
- Rechtstreekse toegang naar de grote tuin (153m²)
Eerste verdiep
- Masterbedroom (20m²)
- Tweede slaapkamer (12m²)
Tweede verdiep
- Derde slaapkamer (19m²), nog verder af te werken
- Zolderruimte met vide (16m²)
Ondergrondse verdieping
- Ruime kelder aanwezig (9m²)
Troeven:
- Karaktervol en instapklaar huis
- Goede EPC-score
- Elektriciteit conform
- Autostaanplaats met laadpaal aanwezig
Wenst u meer informatie en/of een bezoek? Neem dan contact op met onze makelaar Vicky en ze helpt u graag verder.
De eigendom wordt aangeboden via de Pre-sale formule. Op 15/03/2026 tussen 10:00 en 12:00 kan u de woning op afspraak komen bezichtigen en een bod uitbrengen. De vermelde prijs is een instelprijs. Voor meer info, gelieve contact op te nemen met de dossierverantwoordelijke.
Energie
![]() |
Op de kaart

Financieel
| Prijs | |
|---|---|
| Kadastraal inkomen (niet geïndexeerd) | € 989 |
Berekening kosten
Je aankoopkosten? Die heb je snel berekend via de knop hieronder.
Bijkomende info
Gebouw
| Bouwjaar | 1935 |
|---|---|
| Staat | Zo goed als nieuw |
| Badkamers | 1 |
| Slaapkamers | 3 |
| Verdiepingen | 5 |
| Parkeerplaatsen | 1 |
| Toiletten | 1 |
Perceel
| Diepte (m) | 53 |
|---|---|
| Breedte (m) | 5 |
| Totale oppervlakte (m²) | 273 |
| Bebouwde oppervlakte (m²) | 99 |
| Tuin oppervlakte (m²) | 0 |
Uitrusting
| Investeringspand | Nee |
|---|---|
| Parking | Ja |
| Garage | Nee |
| Thuiskantoor | Nee |
| Opslagruimte | Nee |
| Tuin | Ja |
| Terras | Nee |
| Lift | Nee |
Een pand van
Dewaele Vastgoed
Dewaele Real Estate nv
Dewaele Real Estate nv
D1850-26017-K
Leer meer over vastgoed
24 November 2025
Uitgezocht voor jouw gemeente: Hoeveel stijgt de waarde van je woning door een renovatie?
22 October 2025
Hoeveel kan ik lenen om een huis te kopen?
11 June 2025
Huis kopen met bouwovertreding? Dit moet je weten
11 May 2025
