Nieuw
Nieuwbouwproject te Kampenhout
Een pand van ImmoVos
Overzicht
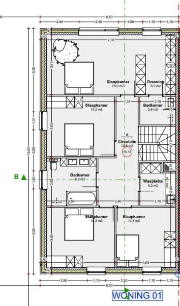
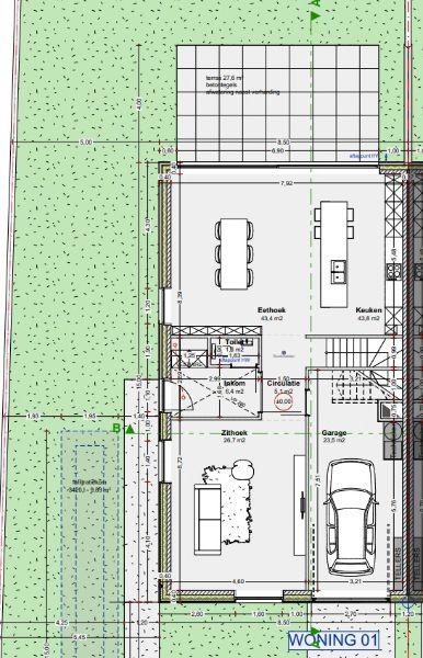
- 255 m² bewoonbaar
- 4 Slaapkamer(s)
- 2 Badkamer(s)
- 2 Toilet(ten)
- 1 Tuin
- 1 Garage(s)
Beschrijving
Bouw reeds opgestart. Oplevering voorzien zomer 2026.
Nieuwbouw half open bebouwing rustig gelegen in Kampenhout.
Ontdek deze nieuwbouw gezinswoning op ruim perceel grond van 12are 11ca te Kampenhout.
BTW tarief van 6% is mogelijk - contacteer ons voor meer info.
Met een moderne uitstraling en een beschikbare woonoppervlakte van 255m² wordt dit de ideale gezinswoningen voor gezinnen die op zoek zijn naar een energiezuinige, rustig gelegen nieuwbouwwoning.
Dit kleinschalig nieuwbouwproject bestaat uit 2 halfopen bebouwingen en is gelegen aan de Hubert Tobbackstraat 33 te Kampenhout. Het betreft een residentiële straat, rustig gelegen en toch zeer bereikbaar naar E19 - Leuven en Mechelen.
Vlakbij op wandelafstand kan u genieten van de open velden, bossen en de Leuvense Vaart. Openbaar vervoer en alle mogelijk winkels zijn in de buurt beschikbaar.
Troeven;
* Nieuwbouw 2025/2026
* Inspraak in afwerking door de koper
* Warmtepomp
* Vloerverwarming
* Ventilatie D
* 10 zonnepanelen
* 3 of 4 volwardige slaapkamers mogelijk
* Ruime afwerkingsbudgetten
Prijzen zijn inclusief afwerking volgens lastenboek en exclusief BTW en aankoopkosten.
Interesse of meer info? Maak een afspraak via 0477/ 29 72 50 of ken@immovos.be.
Energie
![]() |
- Energieverbruik: 20 kWh/m²/jaar
- E-peil: E0
- Beglazing: Onbekend
Op de kaart

Financieel
Prijs |
---|
Bijkomende info
Gebouw
Bouwjaar | 2025 |
---|---|
Staat | Nieuw |
Bouwcertificaat | Nee |
Bewoonbaar (m²) | 255 |
Badkamers | 2 |
Slaapkamers | 4 |
Verdiepingen | 0 |
Garages | 1 |
Parkeerplaatsen | 0 |
Toiletten | 2 |
Faciliteiten
Septische tank | Nee |
---|
Perceel
Overstromingsgevoelig | Geen |
---|---|
P-score | A |
G-score | A |
Bebouwde oppervlakte (m²) | 0 |
Tuin oppervlakte (m²) | 0 |
Oppervlakte terras (m²) | 0 |
Vergunning
Verkavelingsvergunning | Vergunning beschikbaar |
---|
Uitrusting
Investeringspand | Nee |
---|---|
Parking | Nee |
Garage | Ja |
Opslagruimte | Ja |
Tuin | Ja |
Terras | Ja |
Lift | Nee |
Rioolaansluiting | Nee |
Gasaansluiting | Nee |
Wateraansluiting | Nee |
Elektriciteitsaansluiting | Ja |
Internetaansluiting | Ja |
Telefoonaansluiting | Nee |
Zonnepanelen | Ja |
Zonneboiler | Nee |
Alarm | Nee |
Videofoon | Nee |
Grondwaterput | Nee |
Een pand van
ImmoVos
Verkoop- Verhuur- Beheer- Projectontwikkeling
IMMOVOS is als vastgoedkantoor ontstaan in 2004. Wat begonnen is als een extra service voor bestaande klanten uit de bank en verzekeringsactiviteiten is uitgegroeid tot een zelfstandig en volwaardig vastgoedkantoor met kantoren in Muizen en Mechelen.
De basisfilosofie van de zaakvoerders Ken Gobbers en Bart Vos is nog steeds dezelfde: het aanbieden van een totaalpakket en een persoonlijke service aan iedere klant. Het uitwerken van oplossingen op maat van de klant staat steeds voorop.
IMMOVOS staat bekend als een kantoor met een uitgebreide kennis op verschillende domeinen. Zo kan u bij ons terecht voor advies ivm alle vastgoedtransacties, projectontwikkeling, beheer van eigendommen en bank en verzekeringsdossiers.
Dit kan een advies zijn per domein of een geïntegreerd advies waarbij de verschillende aspecten samen worden bekeken.
8747CCW1C
Leer meer over vastgoed
11 June 2025
Huis kopen met bouwovertreding? Dit moet je weten
11 May 2025
Renoveren? Vraag je Mijn VerbouwPremie aan
22 April 2025
Je allereerste renovatieproject selecteren én budgetteren: met de praktische hulp van Spotto
17 February 2025