Nieuwbouwproject te Kampenhout
Een pand van ImmoVos
Overzicht
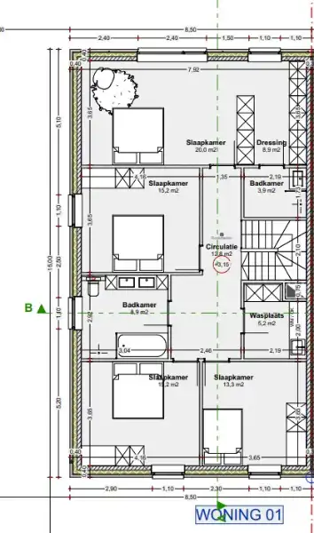
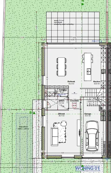
- 255 m² bewoonbaar
- 1211 m² grond
- 4 Slaapkamer(s)
- 2 Badkamer(s)
- 2 Toilet(ten)
- 1 Tuin
- 1 Garage(s)
Beschrijving
Bouw reeds opgestart. Oplevering voorzien zomer 2026.
Nieuwbouw half open bebouwing rustig gelegen in Kampenhout.
Ontdek deze nieuwbouw gezinswoning op ruim perceel grond van 12are 11ca te Kampenhout.
BTW tarief van 6% is mogelijk - contacteer ons voor meer info.
Met een moderne uitstraling en een beschikbare woonoppervlakte van 255m² wordt dit de ideale gezinswoningen voor gezinnen die op zoek zijn naar een energiezuinige, rustig gelegen nieuwbouwwoning.
Dit kleinschalig nieuwbouwproject bestaat uit 2 halfopen bebouwingen en is gelegen aan de Hubert Tobbackstraat 33 te Kampenhout. Het betreft een residentiële straat, rustig gelegen en toch zeer bereikbaar naar E19 - Leuven en Mechelen.
Vlakbij op wandelafstand kan u genieten van de open velden, bossen en de Leuvense Vaart. Openbaar vervoer en alle mogelijk winkels zijn in de buurt beschikbaar.
Troeven;
* Nieuwbouw 2025/2026
* Inspraak in afwerking door de koper
* Warmtepomp
* Vloerverwarming
* Ventilatie D
* 10 zonnepanelen
* 3 of 4 volwardige slaapkamers mogelijk
* Ruime afwerkingsbudgetten
Prijzen zijn inclusief afwerking volgens lastenboek en exclusief BTW en aankoopkosten.
Interesse of meer info? Maak een afspraak via 0477/ 29 72 50 of ken@immovos.be.
Energie
![]() |
- Energieverbruik: 20 kWh/m²/jaar
- E-peil: E0
- Beglazing: Onbekend
Op de kaart

Financieel
| Prijs |
|---|
Bijkomende info
Gebouw
| Bouwjaar | 2026 |
|---|---|
| Staat | Nieuw |
| Bouwcertificaat | Nee |
| Bewoonbaar (m²) | 255 |
| Badkamers | 2 |
| Slaapkamers | 4 |
| Verdiepingen | 0 |
| Garages | 1 |
| Parkeerplaatsen | 0 |
| Toiletten | 2 |
Faciliteiten
| Septische tank | Nee |
|---|
Perceel
| Overstromingsgevoelig | Geen |
|---|---|
| P-score | A |
| G-score | A |
| Totale oppervlakte (m²) | 1211 |
| Bebouwde oppervlakte (m²) | 0 |
| Tuin oppervlakte (m²) | 0 |
| Oppervlakte terras (m²) | 0 |
Vergunning
| Verkavelingsvergunning | Vergunning beschikbaar |
|---|
Uitrusting
| Investeringspand | Nee |
|---|---|
| Parking | Nee |
| Garage | Ja |
| Opslagruimte | Ja |
| Tuin | Ja |
| Terras | Ja |
| Lift | Nee |
| Rioolaansluiting | Nee |
| Gasaansluiting | Nee |
| Wateraansluiting | Nee |
| Elektriciteitsaansluiting | Ja |
| Internetaansluiting | Ja |
| Telefoonaansluiting | Nee |
| Zonnepanelen | Ja |
| Zonneboiler | Nee |
| Alarm | Nee |
| Videofoon | Nee |
| Grondwaterput | Nee |
Een pand van
ImmoVos
Verkoop- Verhuur- Beheer- Projectontwikkeling
IMMOVOS is als vastgoedkantoor ontstaan in 2004. Wat begonnen is als een extra service voor bestaande klanten uit de bank en verzekeringsactiviteiten is uitgegroeid tot een zelfstandig en volwaardig vastgoedkantoor met kantoren in Muizen en Mechelen.
De basisfilosofie van de zaakvoerders Ken Gobbers en Bart Vos is nog steeds dezelfde: het aanbieden van een totaalpakket en een persoonlijke service aan iedere klant. Het uitwerken van oplossingen op maat van de klant staat steeds voorop.
IMMOVOS staat bekend als een kantoor met een uitgebreide kennis op verschillende domeinen. Zo kan u bij ons terecht voor advies ivm alle vastgoedtransacties, projectontwikkeling, beheer van eigendommen en bank en verzekeringsdossiers.
Dit kan een advies zijn per domein of een geïntegreerd advies waarbij de verschillende aspecten samen worden bekeken.
8747CCW1C
Leer meer over vastgoed
Nieuw
01 March 2026
Wanneer heb ik een bouwvergunning of omgevingsvergunning nodig?
17 February 2026
Hoe breng ik een bod uit op een woning?
24 November 2025
Uitgezocht voor jouw gemeente: Hoeveel stijgt de waarde van je woning door een renovatie?
22 October 2025
