Nieuw
A0103 Rivert nieuwbouwappartement Antwerpen
€ 585.000
Een pand van Dewaele Vastgoed
Overzicht
- 2 Slaapkamer(s)
- 1 Badkamer(s)
Beschrijving
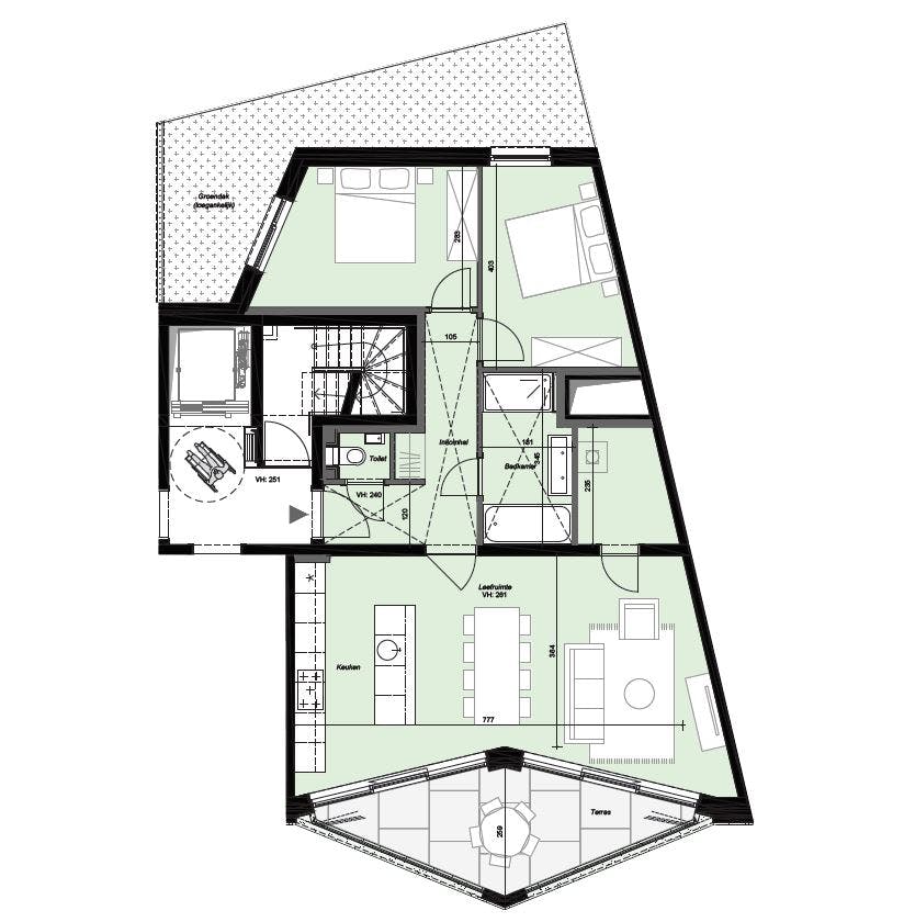
Dit nieuwbouwappartement van ca 96 m² op de eerste verdieping in Rivert is gelegen aan de Van Meterenkaai in centrum Antwerpen en heeft een prachtig terras met zicht op de Schelde. Achteraan is er tevens een toegankelijk groen dak voorzien.
V1R Rivert nieuwbouwappartement ca 96 m² met terras
Algemene kenmerken:
- nieuwbouwproject op toplocatie in Antwerpen
- terras met uniek uitzicht op de Schelde en de jachthaven van Linkeroever
- vloerverwarming
- optie microtopping en maatwerk
- verkoop deels onder registratie, deels onder btw
Indeling
- inkomhal met apart toilet en vestiare
- leefruimte met prachtig zicht op de Schelde
- open keuken met kookeiland
- berging
- terras met schuifdraaisysteem
- achteraan 2 slaapkamers
- badkamer met ligbad, douche en dubbele lavabo
Microtopping “ Less is More”
Dit nieuwbouwproject in Antwerpen biedt verschillende extra opties naar afwerking zoals microtopping. Microtopping is een perfecte keuze voor mensen die houden van een naadloos oppervlak, verticaal of horizontaal voor een unieke, elegante en moderne uitstraling. Een eindeloze keuze in kleuren, effecten en afwerking.
Even More
Goplus geeft je nog meer opties in Rivert, namelijk een volledig maatwerk van het totaalinterieur. Dit gaat van een geïntegreerde wand in houtfineer tot scheidingswanden, dressing en deuren. The sky's the limit!
Verkoop onder BTW stelsel.
Bent u geïnteresseerd in nieuwbouw, een appartement of woning te koop in Antwerpen? Aarzel dan niet om ons te contacteren.
Had u graag uw eigen eigendom te koop aangeboden contacteer ons dan voor een vrijblijvende schatting, telefonisch op het nummer 03/206.76.76 of per mail naar antwerpen@dewaele.com. Ook voor alle andere vragen omtrent vastgoed, kopen of verkopen in Antwerpen kan u steeds bij ons terecht!
Algemene kenmerken:
- nieuwbouwproject op toplocatie in Antwerpen
- terras met uniek uitzicht op de Schelde en de jachthaven van Linkeroever
- vloerverwarming
- optie microtopping en maatwerk
- verkoop deels onder registratie, deels onder btw
Indeling
- inkomhal met apart toilet en vestiare
- leefruimte met prachtig zicht op de Schelde
- open keuken met kookeiland
- berging
- terras met schuifdraaisysteem
- achteraan 2 slaapkamers
- badkamer met ligbad, douche en dubbele lavabo
Microtopping “ Less is More”
Dit nieuwbouwproject in Antwerpen biedt verschillende extra opties naar afwerking zoals microtopping. Microtopping is een perfecte keuze voor mensen die houden van een naadloos oppervlak, verticaal of horizontaal voor een unieke, elegante en moderne uitstraling. Een eindeloze keuze in kleuren, effecten en afwerking.
Even More
Goplus geeft je nog meer opties in Rivert, namelijk een volledig maatwerk van het totaalinterieur. Dit gaat van een geïntegreerde wand in houtfineer tot scheidingswanden, dressing en deuren. The sky's the limit!
Verkoop onder BTW stelsel.
Bent u geïnteresseerd in nieuwbouw, een appartement of woning te koop in Antwerpen? Aarzel dan niet om ons te contacteren.
Had u graag uw eigen eigendom te koop aangeboden contacteer ons dan voor een vrijblijvende schatting, telefonisch op het nummer 03/206.76.76 of per mail naar antwerpen@dewaele.com. Ook voor alle andere vragen omtrent vastgoed, kopen of verkopen in Antwerpen kan u steeds bij ons terecht!
Energie
Op de kaart

Financieel
| Prijs |
|---|
Bijkomende info
Gebouw
| Bouwjaar | 2025 |
|---|---|
| Staat | Nieuw |
| Verdieping | 1 |
| Badkamers | 1 |
| Slaapkamers | 2 |
| Verdiepingen | 9 |
| Toiletten | 0 |
Perceel
| Oppervlakte terras (m²) | 11 |
|---|
Uitrusting
| Investeringspand | Nee |
|---|---|
| Parking | Nee |
| Garage | Nee |
| Thuiskantoor | Nee |
| Opslagruimte | Nee |
| Tuin | Nee |
| Terras | Ja |
| Lift | Ja |
Een pand van
Dewaele Vastgoed
Dewaele Real Estate nv
Dewaele Real Estate nv
D2000-22008
Leer meer over vastgoed
22 October 2025
Hoeveel kan ik lenen om een huis te kopen?
11 June 2025
Huis kopen met bouwovertreding? Dit moet je weten
11 May 2025
Renoveren? Vraag je Mijn VerbouwPremie aan
22 April 2025