Nieuw
Nieuwbouw duplexpenthouse
€ 1.855.000
Een pand van Dewaele Vastgoed
Overzicht
- 2 Slaapkamer(s)
- 2 Badkamer(s)
- 2 Toilet(ten)
Beschrijving
Uitzonderlijke duplexpenthouse van ca 220 m² in het nieuwbouwproject r!vert gelegen aan de Van Meterenkaai in centrum Antwerpen heeft een prachtig terras met frontaal zicht op de Schelde.
Algemene kenmerken:
- nieuwbouwproject op toplocatie in Antwerpen
- terras met uniek uitzicht op de Schelde en de jachthaven van Linkeroever
- vloerverwarming
- optie microtopping en maatwerk
- zonnepanelen
- verkoop deels onder registratie, deels onder btw
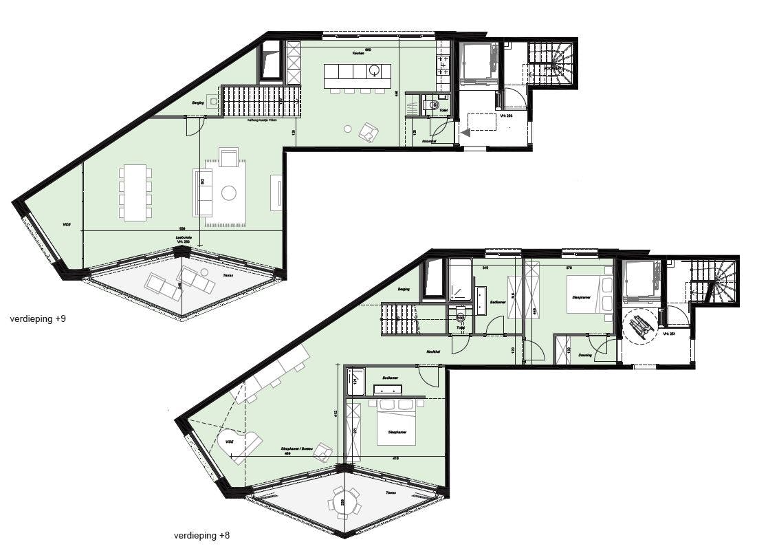
Indeling
9de verdieping
- inkomhal met apart toilet
- leefkeuken met een panoramisch zicht op de Stad.
- riante leefruimte met uniek zicht op de schelde en Linkeroever
- berging
- open terras
- trap naar beneden
8ste verdieping
- nachthal
- open kamer welke kan ingericht worden als bureau, bibliotheek of derde slaapkamer
- terras met schruifdraaisysteem
- masterbedroom aan de rustige achterzijde met ensuite dressing
- badkamer met inloopdouche en dubbele lavabo
- slaapkamer aan de voorzijde met toegang tot het terras
- douchekamer
- apart toilet
Microtopping “ Less is More”
Dit nieuwbouwproject in Antwerpen biedt verschillende extra opties naar afwerking toe zoals microtopping. Microtopping is een perfecte keuze voor mensen die houden van een naadloos oppervlak en een unieke, elegante en moderne uitstraling. U zal dus een haast eindeloze keuze hebben in kleuren, effecten en afwerking.
Even More
Goplus geeft je nog meer opties in r!vert, namelijk een optie voor maatwerk van het totaalinterieur. Dit gaat van een geïntegreerde wand in houtfineer tot scheidingswanden, dressing en deuren. The sky is the limit!
Verkoop onder BTW-stelsel.
Bent u geïnteresseerd in nieuwbouw, een appartement of een woning te koop in Antwerpen? Aarzel dan niet om ons te contacteren.
Had u graag uw eigen eigendom te koop aangeboden contacteer ons dan voor een vrijblijvende schatting, telefonisch op het nummer 03/206.76.76 of per mail naar antwerpen@dewaele.com. Ook voor alle andere vragen omtrent vastgoed, kopen of verkopen in Antwerpen kan u steeds bij ons terecht.
- nieuwbouwproject op toplocatie in Antwerpen
- terras met uniek uitzicht op de Schelde en de jachthaven van Linkeroever
- vloerverwarming
- optie microtopping en maatwerk
- zonnepanelen
- verkoop deels onder registratie, deels onder btw
Indeling
9de verdieping
- inkomhal met apart toilet
- leefkeuken met een panoramisch zicht op de Stad.
- riante leefruimte met uniek zicht op de schelde en Linkeroever
- berging
- open terras
- trap naar beneden
8ste verdieping
- nachthal
- open kamer welke kan ingericht worden als bureau, bibliotheek of derde slaapkamer
- terras met schruifdraaisysteem
- masterbedroom aan de rustige achterzijde met ensuite dressing
- badkamer met inloopdouche en dubbele lavabo
- slaapkamer aan de voorzijde met toegang tot het terras
- douchekamer
- apart toilet
Microtopping “ Less is More”
Dit nieuwbouwproject in Antwerpen biedt verschillende extra opties naar afwerking toe zoals microtopping. Microtopping is een perfecte keuze voor mensen die houden van een naadloos oppervlak en een unieke, elegante en moderne uitstraling. U zal dus een haast eindeloze keuze hebben in kleuren, effecten en afwerking.
Even More
Goplus geeft je nog meer opties in r!vert, namelijk een optie voor maatwerk van het totaalinterieur. Dit gaat van een geïntegreerde wand in houtfineer tot scheidingswanden, dressing en deuren. The sky is the limit!
Verkoop onder BTW-stelsel.
Bent u geïnteresseerd in nieuwbouw, een appartement of een woning te koop in Antwerpen? Aarzel dan niet om ons te contacteren.
Had u graag uw eigen eigendom te koop aangeboden contacteer ons dan voor een vrijblijvende schatting, telefonisch op het nummer 03/206.76.76 of per mail naar antwerpen@dewaele.com. Ook voor alle andere vragen omtrent vastgoed, kopen of verkopen in Antwerpen kan u steeds bij ons terecht.
Energie
Op de kaart

Financieel
| Prijs |
|---|
Bijkomende info
Gebouw
| Bouwjaar | 2025 |
|---|---|
| Staat | Nieuw |
| Verdieping | 9 |
| Badkamers | 2 |
| Slaapkamers | 2 |
| Verdiepingen | 9 |
| Parkeerplaatsen | 1 |
| Toiletten | 2 |
Perceel
| Oppervlakte terras (m²) | 22 |
|---|
Uitrusting
| Investeringspand | Nee |
|---|---|
| Parking | Ja |
| Garage | Nee |
| Thuiskantoor | Nee |
| Opslagruimte | Nee |
| Tuin | Nee |
| Terras | Ja |
| Lift | Ja |
Een pand van
Dewaele Vastgoed
Dewaele Real Estate nv
Dewaele Real Estate nv
D2000-21095
Leer meer over vastgoed
22 October 2025
Hoeveel kan ik lenen om een huis te kopen?
11 June 2025
Huis kopen met bouwovertreding? Dit moet je weten
11 May 2025
Renoveren? Vraag je Mijn VerbouwPremie aan
22 April 2025