Nieuw
B.4.1 Loggia - te koop nieuwbouw appartementen in Antwerpen
€ 749.000
Een pand van Dewaele Vastgoed
Favoriet
Jouw zoektocht
Jouw scoretabel voor dit pand
Aan het laden...
Jouw geplande bezichtigingen
Aan het laden...
Overzicht
- 2 Slaapkamer(s)
- 1 Badkamer(s)
Beschrijving
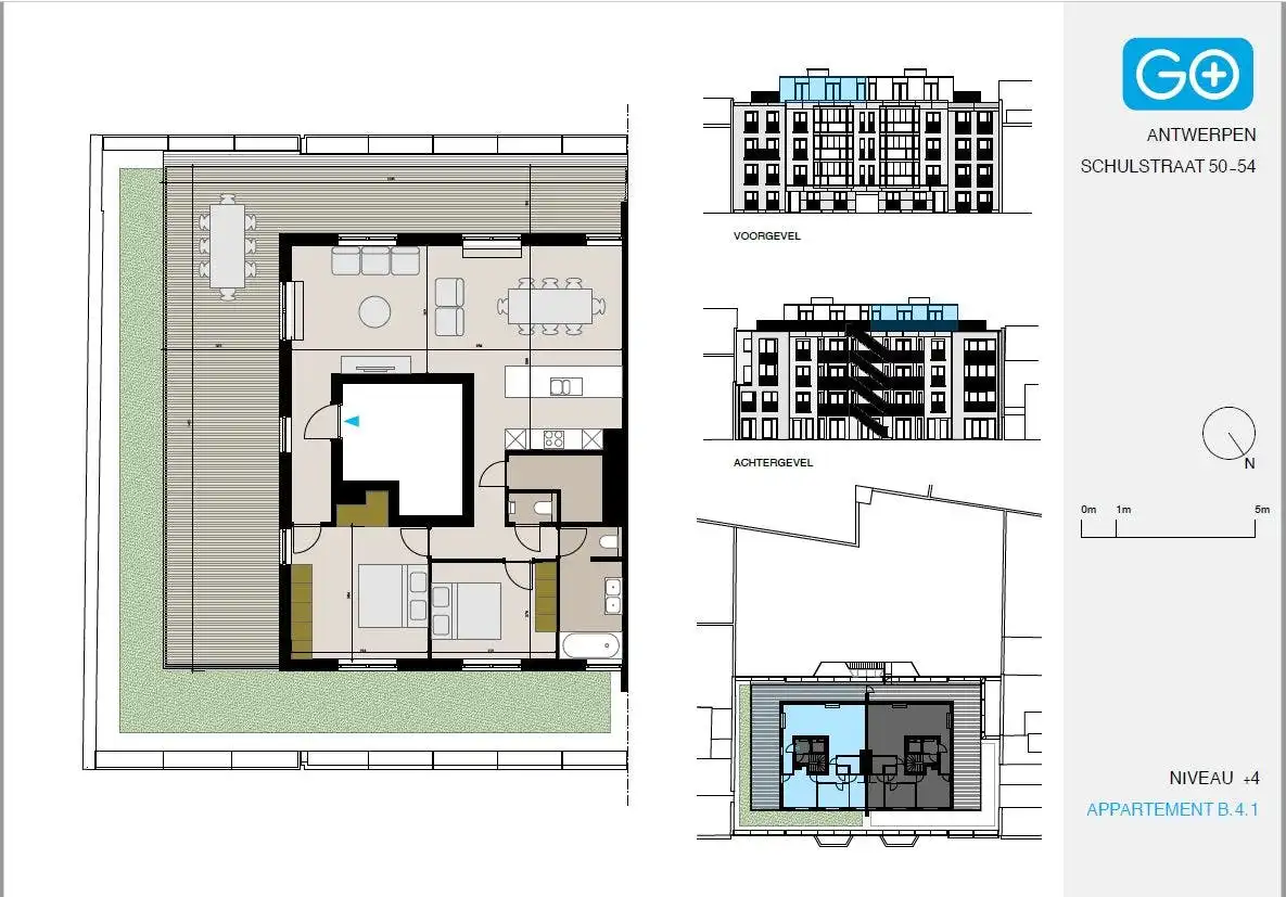
De exclusieve en luxueuze penthouse in het nieuwbouwproject Loggia is voorzien van royale woonvertrekken en magnifieke dakterrassen die een spectaculair zicht bieden op de wijde omgeving. De penthouse geniet van een bewoonbare oppervlakte van rond de 110 m².
Deze penthouse van ca 110 m² te koop in project Loggia is gelegen te Antwerpen, Harmonie.
Algemene kenmerken:
- nieuwbouwproject op toplocatie te koop in Antwerpen.
- zonnige terrassen en tuinen met uitzicht op de binnentuin
- vloerverwarming, warmtepomp en zonnepanelen
- duurzame, tijdloze en kwalitatieve afwerkingsmaterialen
- de penthouses kunnen samengevoegd worden tot 1 ruim luxe-appartement
- verkoop deels onder registratie, deels onder btw
Indeling:
- inkomhal
- lichtrijke leef- en zitruimte
- open keuken met kookeiland
- magnifiek dakterras (68 m²) met spectaculair uitzicht
- ruime berging
- nachthal met apart toilet
- 2 volwaardige slaapkamers
- badkamer met ligbad, dubbele lavabo en toilet
Ondergrondse autostaanplaatsen apart mee aan te kopen.
Verkoop mogelijk onder verlaagd BTW-tarief (6%), indien cfr. de voorwaarden.
Bent u geïnteresseerd in nieuwbouw, een appartement of woning te koop in Antwerpen? Aarzel dan niet om ons te contacteren.
Had u graag uw eigen eigendom te koop aangeboden contacteer ons dan voor een vrijblijvende schatting, telefonisch op het nummer 03/206.76.76 of per mail naar antwerpen@dewaele.com. Ook voor alle andere vragen omtrent vastgoed, kopen of verkopen in Antwerpen kan u steeds bij ons terecht!
Algemene kenmerken:
- nieuwbouwproject op toplocatie te koop in Antwerpen.
- zonnige terrassen en tuinen met uitzicht op de binnentuin
- vloerverwarming, warmtepomp en zonnepanelen
- duurzame, tijdloze en kwalitatieve afwerkingsmaterialen
- de penthouses kunnen samengevoegd worden tot 1 ruim luxe-appartement
- verkoop deels onder registratie, deels onder btw
Indeling:
- inkomhal
- lichtrijke leef- en zitruimte
- open keuken met kookeiland
- magnifiek dakterras (68 m²) met spectaculair uitzicht
- ruime berging
- nachthal met apart toilet
- 2 volwaardige slaapkamers
- badkamer met ligbad, dubbele lavabo en toilet
Ondergrondse autostaanplaatsen apart mee aan te kopen.
Verkoop mogelijk onder verlaagd BTW-tarief (6%), indien cfr. de voorwaarden.
Bent u geïnteresseerd in nieuwbouw, een appartement of woning te koop in Antwerpen? Aarzel dan niet om ons te contacteren.
Had u graag uw eigen eigendom te koop aangeboden contacteer ons dan voor een vrijblijvende schatting, telefonisch op het nummer 03/206.76.76 of per mail naar antwerpen@dewaele.com. Ook voor alle andere vragen omtrent vastgoed, kopen of verkopen in Antwerpen kan u steeds bij ons terecht!
Energie
Op de kaart

Financieel
| Prijs |
|---|
Bijkomende info
Gebouw
| Bouwjaar | 2024 |
|---|---|
| Staat | Goed onderhouden |
| Verdieping | 4 |
| Badkamers | 1 |
| Slaapkamers | 2 |
| Verdiepingen | 4 |
| Toiletten | 0 |
Perceel
| Oppervlakte terras (m²) | 68 |
|---|
Uitrusting
| Investeringspand | Nee |
|---|---|
| Parking | Nee |
| Garage | Nee |
| Thuiskantoor | Nee |
| Opslagruimte | Nee |
| Tuin | Nee |
| Terras | Ja |
| Lift | Ja |
Een pand van
Dewaele Vastgoed
Dewaele Real Estate nv
Dewaele Real Estate nv
D2000-23030-B.4.1
Leer meer over vastgoed
23 March 2026
Op Spotto zoeken als een pro: 10 slimme tips
21 March 2026
Hoeveel kan ik lenen om een huis te kopen?
01 March 2026
Wanneer heb ik een bouwvergunning of omgevingsvergunning nodig?
17 February 2026