Atypisch landmarkpand te koop op de Kanaalsite van Axel Vervoordt
€ 843.165,19
Een pand van CEUSTERS
Jouw zoektocht
Overzicht
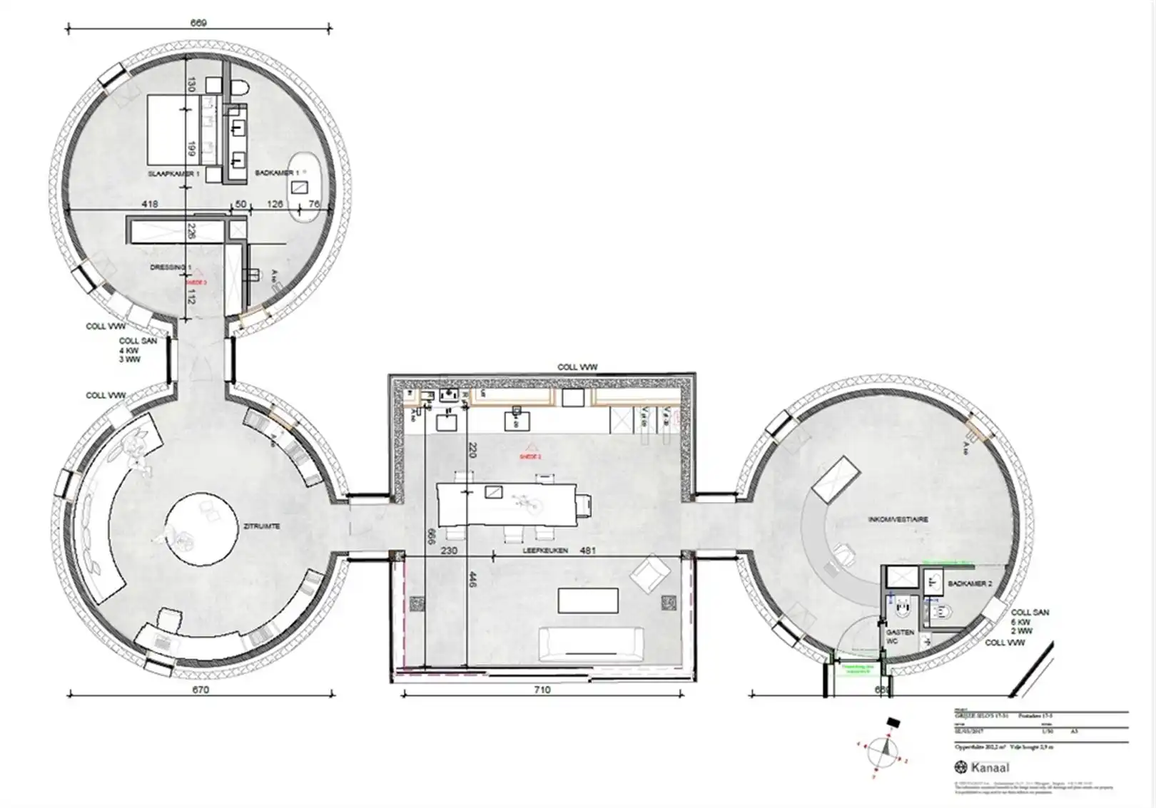
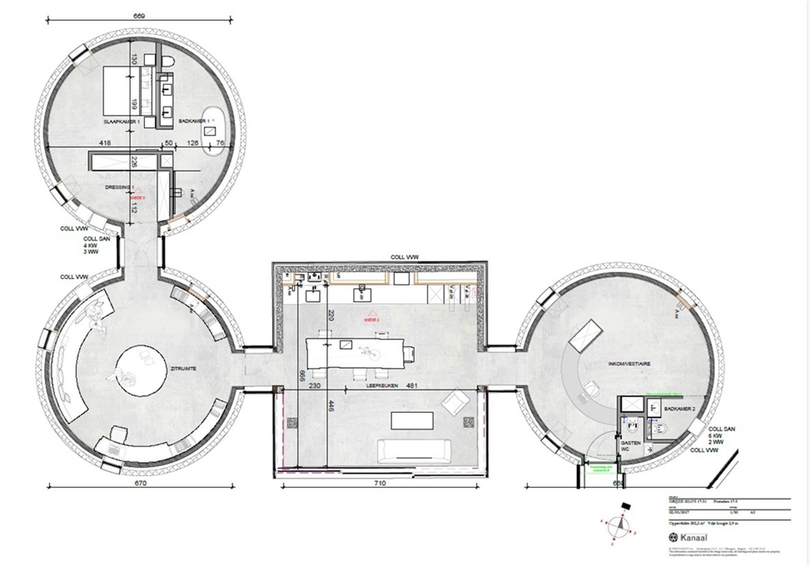
- 202 m² bewoonbaar
Beschrijving
Atypisch landmarkpand te koop op de Kanaalsite van Axel Vervoordt
In deze unieke omgeving waar wonen, werken en ontdekken samenkomen, bevindt zich een karaktervol residentieel pand dat op heden is ingericht als kantoor.
De combinatie van industriële architectuur en het omringende groen creëert een inspirerende rustplek.
De ruimte bestaat uit een inkomhal met achterliggende douche, een open werkruimte met geïnstalleerde keuken en verschuifbare wanden en twee stijlvolle vergaderzalen.
Het kantoor/appartement is toegankelijk via een lift.
De verwarming gebeurt via een centrale verwarming op gas en de ruimte beschikt over mechanische ventilatie met zowel toevoer als afvoer.
Momenteel is de ruimte verhuurd.
De koper heeft de mogelijkheid om, indien gewenst, een verdere huurovereenkomst aan te gaan met de huidige huurder.
Energie
![]() |
- EPC Certificaat: 20240917-0003367057-KNR-1
- E-peil: E0
- Beglazing: Onbekend
Op de kaart

Financieel
| Prijs | |
|---|---|
| Kadastraal inkomen (niet geïndexeerd) | € 0 |
| Kadastraal inkomen (geïndexeerd) | € 0 |
Berekening kosten
Je aankoopkosten? Die heb je snel berekend via de knop hieronder.
Bijkomende info
Gebouw
| Bouwcertificaat | Nee |
|---|---|
| Bewoonbaar (m²) | 202 |
| Verdieping | 0 |
| Badkamers | 0 |
| Slaapkamers | 0 |
| Verdiepingen | 0 |
| Garages | 0 |
| Parkeerplaatsen | 0 |
| Doucheruimtes | 0 |
| Toiletten | 0 |
Faciliteiten
| Elektrisch keuringsattest | Nee |
|---|
Perceel
| Overstromingsgevoelig | Geen |
|---|---|
| P-score | C |
| G-score | C |
| Voorkeurrecht | Nee |
| Bebouwde oppervlakte (m²) | 0 |
| Tuin oppervlakte (m²) | 0 |
| Oppervlakte terras (m²) | 0 |
Vergunning
| Vergunning | Vergunning beschikbaar |
|---|---|
| Verkavelingsvergunning | Geen beschikbaar |
Uitrusting
| Investeringspand | Nee |
|---|---|
| Geschikt voor praktijk | Nee |
| Parking | Nee |
| Garage | Nee |
| Thuiskantoor | Nee |
| Kelder | Nee |
| Zolder | Nee |
| Tuin | Nee |
| Terras | Nee |
| Lift | Nee |
| Rioolaansluiting | Nee |
| Gasaansluiting | Nee |
| Wateraansluiting | Nee |
| Elektriciteitsaansluiting | Nee |
| TV aansluiting | Nee |
| Internetaansluiting | Nee |
| Telefoonaansluiting | Nee |
Appartementsblok
| Naam residentie | SILO |
|---|---|
| Lift | Nee |
