PERFECT ONDERHOUDEN DUPLEX APPARTEMENT (157M²) MET 3 SLAAPKAMERS EN RUIM TERRAS TE HERENTALS CENTRUM
€ 325.000
Een pand van Het Vastgoedkantoor
Overzicht
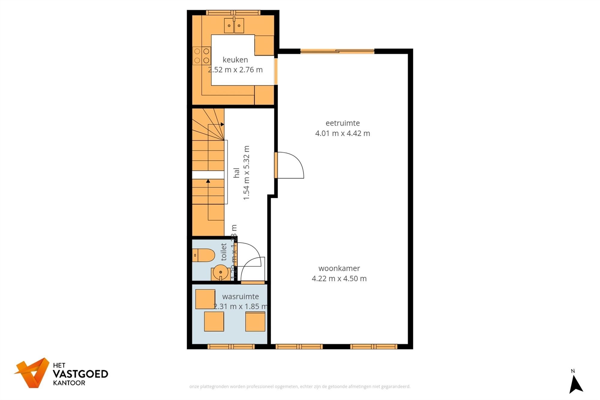
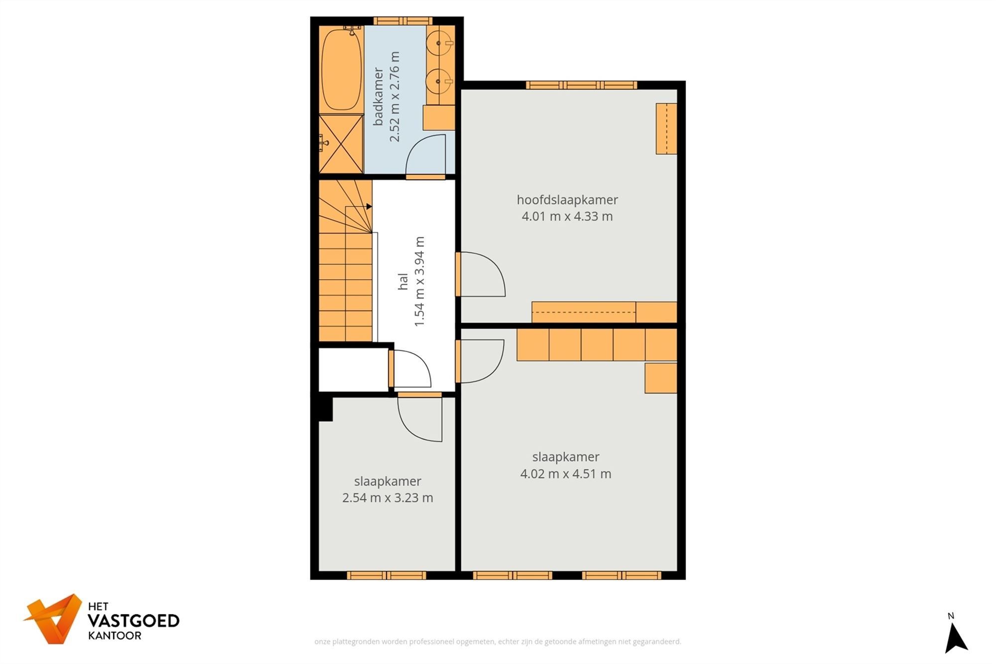
- 157 m² bewoonbaar
- 3 Slaapkamer(s)
- 1 Badkamer(s)
Beschrijving
Perfect onderhouden duplex appartement (157m²) met 3 slaapkamers en ruim terras te Herentals centrum.
Belangrijkste troeven:
- Centrale ligging
- Ramen en gasketel werden vervangen in 2021
- 3 slaapkamers, waarvan 2 hele grote
- Ruime kelderberging
- Zeer ruim terras zonder inkijk van buren
- Mogelijkheid tot het huren van een afgesloten parkeerplaats achteraan voor 35/maand
- Bad, douche en 2 wc's
- Elektrische rolluiken aan de voorkant van het gebouw
- Geen gemeenschappelijke kosten
Bekijk zeker ook de grondplannen met de afmetingen. Zo krijgt u van thuis uit al een perfect beeld van wat deze woning te bieden heeft!
Wenst u meer info of een vrijblijvende bezichtiging, contacteer dan ons kantoor op het nummer 011 85 15 15 en wij helpen u graag verder.
Energie
![]() |
- EPC Certificaat: 20250324-0003560892-RES-1
- Energieverbruik: 323 kWh/m²/jaar
- E-peil: E0
- Verwarming: Gas
- Beglazing: Standaard dubbel
Extra budget nodig voor je renovatie?

Op de kaart

Financieel
| Prijs | |
|---|---|
| Kadastraal inkomen (niet geïndexeerd) | € 829 |
| Kadastraal inkomen (geïndexeerd) | € 0 |
Berekening kosten
Je aankoopkosten? Die heb je snel berekent via de knop hieronder.
Bijkomende info
Gebouw
| Staat | Goed onderhouden |
|---|---|
| Bouwcertificaat | Nee |
| Bewoonbaar (m²) | 157 |
| Verdieping | 0 |
| Badkamers | 1 |
| Slaapkamers | 3 |
| Verdiepingen | 0 |
| Garages | 0 |
| Parkeerplaatsen | 0 |
| Doucheruimtes | 0 |
| Toiletten | 0 |
Faciliteiten
| Keuken uitrusting | Luxueus uitgerust |
|---|---|
| Materiaal ramenomlijstingen | PVC |
| Beglazing | Standaard dubbel |
| Brandstof primaire verwarming | Gas |
| Elektrisch keuringsattest | Nee |
Perceel
| Overstromingsgevoelig | Geen |
|---|---|
| P-score | A |
| G-score | A |
| Voorkeurrecht | Nee |
| Bebouwde oppervlakte (m²) | 0 |
| Tuin oppervlakte (m²) | 0 |
| Oppervlakte terras (m²) | 0 |
Vergunning
| Vergunning | Vergunning beschikbaar |
|---|
Uitrusting
| Investeringspand | Nee |
|---|---|
| Geschikt voor praktijk | Nee |
| Parking | Nee |
| Garage | Nee |
| Thuiskantoor | Nee |
| Kelder | Ja |
| Zolder | Nee |
| Tuin | Nee |
| Terras | Nee |
| Lift | Nee |
| Rioolaansluiting | Ja |
| Gasaansluiting | Ja |
| Wateraansluiting | Ja |
| Elektriciteitsaansluiting | Ja |
| TV aansluiting | Ja |
| Internetaansluiting | Ja |
| Telefoonaansluiting | Ja |
Appartementsblok
| Lift | Nee |
|---|


