Welkom! Knappe en instapklare woning met thuisbatterij!
€ 368.000
Een pand van Immo Kong
Jouw zoektocht
Overzicht
- 186 m² grond
- 4 Slaapkamer(s)
- 1 Badkamer(s)
- 1 Toilet(ten)
- 1 Tuin
- 1 Garage(s)
Overstromingsgevaar gebouw
Overstromingsgevaar perceel
Beschrijving
Voorzien van zonnepanelen en thuisbatterij, 4 slaapkamers én een gezellige tuin met buitenkeuken.
Extra troef: garage achteraan.
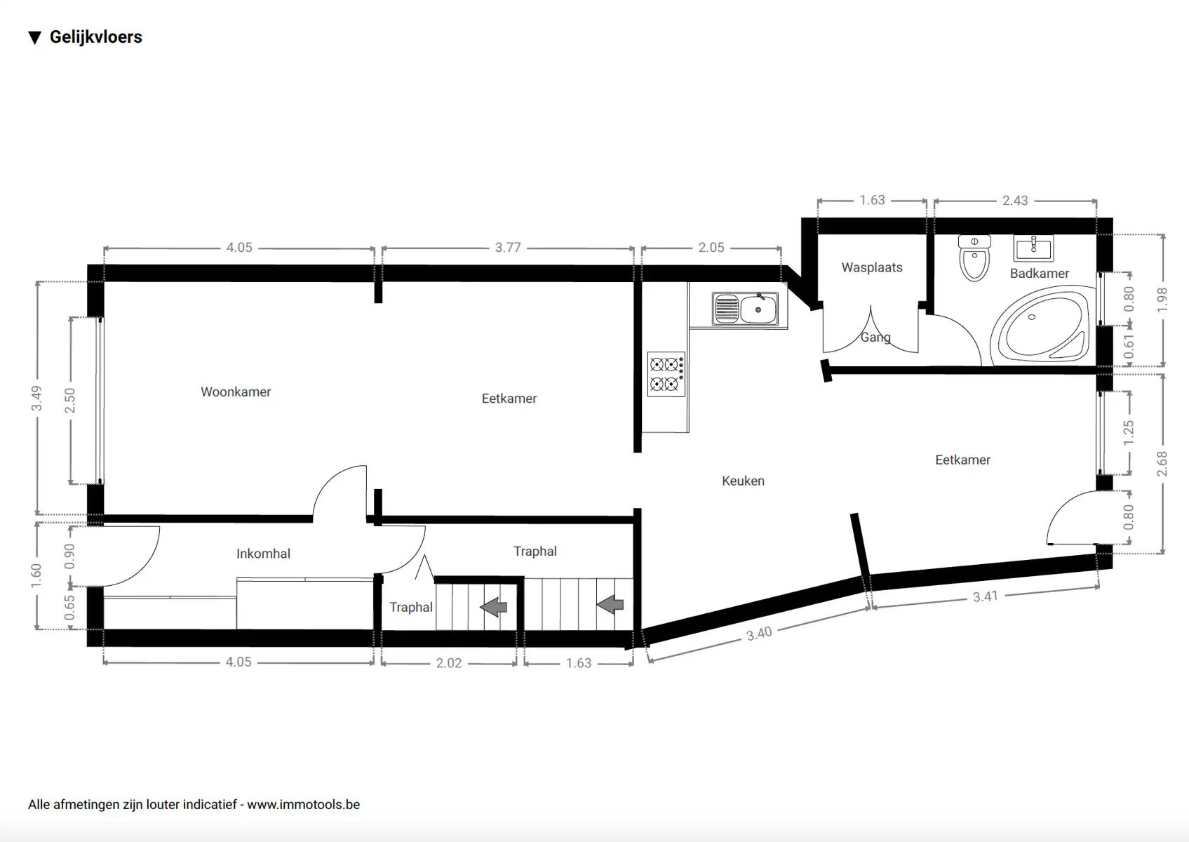
GELIJKVLOERS
Bij binnenkomst kan je de jassen en schoenen netjes opbergen in de ingemaakte kasten van de inkomhal. Vanuit hier bereik je de gezellige woonkamer, waarin de houtkachel zorgt voor warmte en sfeer. De open verbinding met de keuken creëert een ruimtelijk gevoel en maakt het geheel extra uitnodigend. De praktische keuken biedt bovendien directe toegang tot de badkamer met toilet.
Een van de grootste troeven van deze woning is de eetkamer. Dankzij de lichtkoepels wordt het binnen volledig verlicht door natuurlijk licht, terwijl je tegelijkertijd geniet van een prachtig zicht op de tuin.
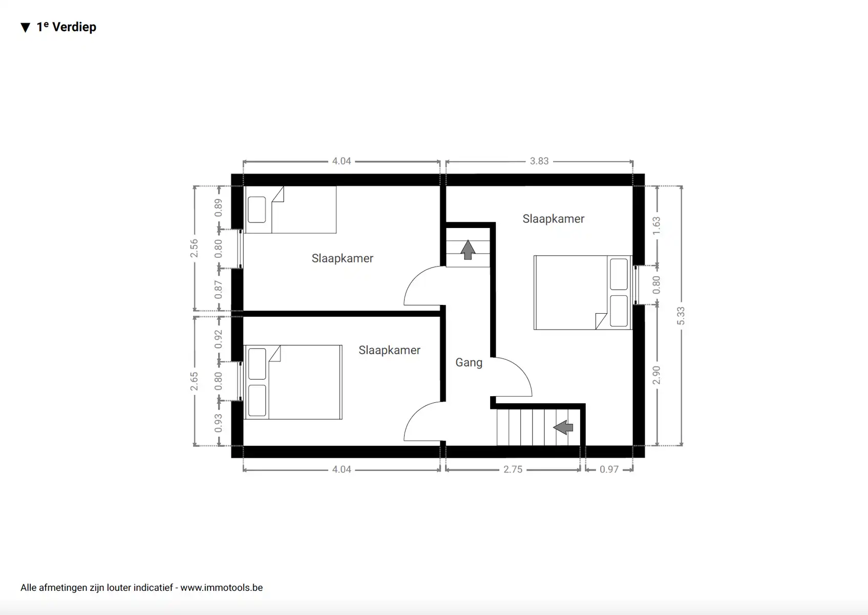
EERSTE VERDIEPING
Op de eerste verdieping vind je drie ruime slaapkamers, ideaal voor een gezin of voor wie een extra bureau of hobbyruimte wenst. De zolderverdieping herbergt nog een extra slaapkamer, perfect als logeerkamer.
KELDER
De ruime staankelder biedt veel opbergruimte, zodat je woning altijd netjes en georganiseerd blijft.
TUIN
Buiten wacht een prachtig aangelegde tuin, een oase van rust, compleet met buitenkeuken. Perfect voor gezellige zomeravonden. Achteraan de tuin bevindt zich een volwaardige garage, ideaal voor het opbergen van tuingerief en fietsen, en bovendien toegankelijk met de wagen.
Kortom, een woning vol troeven, klaar om zijn nieuwe bewoners te verwelkomen!
WELKOM!
Instapklare, recent geschilderde woning met veel natuurlijke lichtinval.
Voorzien van zonnepanelen en thuisbatterij, 4 slaapkamers én een gezellige tuin met buitenkeuken.
Extra troef: garage achteraan.
GELIJKVLOERS
Bij binnenkomst kan je de jassen en schoenen netjes opbergen in de ingemaakte kasten van de inkomhal. Vanuit hier bereik je de gezellige woonkamer, waarin de houtkachel zorgt voor warmte en sfeer. De open verbinding met de keuken creëert een ruimtelijk gevoel en maakt het geheel extra uitnodigend. De praktische keuken biedt bovendien directe toegang tot de badkamer met toilet.
Een van de grootste troeven van deze woning is de eetkamer. Dankzij de lichtkoepels wordt het binnen volledig verlicht door natuurlijk licht, terwijl je tegelijkertijd geniet van een prachtig zicht op de tuin.
EERSTE VERDIEPING
Op de eerste verdieping vind je drie ruime slaapkamers, ideaal voor een gezin of voor wie een extra bureau of hobbyruimte wenst. De zolderverdieping herbergt nog een extra slaapkamer, perfect als logeerkamer.
KELDER
De ruime staankelder biedt veel opbergruimte, zodat je woning altijd netjes en georganiseerd blijft.
TUIN
Buiten wacht een prachtig aangelegde tuin, een oase van rust, compleet met buitenkeuken. Perfect voor gezellige zomeravonden. Achteraan de tuin bevindt zich een volwaardige garage, ideaal voor het opbergen van tuingerief en fietsen, en bovendien toegankelijk met de wagen.
Kortom, een woning vol troeven, klaar om zijn nieuwe bewoners te verwelkomen!
Energie
![]() |
- EPC Certificaat: 20250203-0003520708-RES-1
- Energieverbruik: 279 kWh/m²/jaar
Op de kaart

Financieel
| Prijs | |
|---|---|
| Kadastraal inkomen (niet geïndexeerd) | € 401 |
Berekening kosten
Je aankoopkosten? Die heb je snel berekend via de knop hieronder.
Bijkomende info
Gebouw
| Bouwjaar | 1899 |
|---|---|
| Renovatie jaar | 2020 |
| Gevels | 2 |
| Badkamers | 1 |
| Slaapkamers | 4 |
| Garages | 1 |
| Parkeerplaatsen | 1 |
| Doucheruimtes | 1 |
| Toiletten | 1 |
Faciliteiten
| Type vloer | |
|---|---|
| Keuken uitrusting | Luxueus uitgerust |
| Elektrisch keuringsattest | Nee |
Perceel
| Overstromingsgevoelig | Geen |
|---|---|
| P-score | D |
| G-score | D |
| Voorkeurrecht | Nee |
| Totale oppervlakte (m²) | 186 |
| Tuin oppervlakte (m²) | 0 |
| Oriëntatie voorgevel | West |
| Oriëntatie terras | ZuidOost |
Vergunning
| Vergunning | Geen beschikbaar |
|---|---|
| Verkavelingsvergunning | Geen beschikbaar |
| Bouwovertreding | Geen |
| Bouwovertreding dagvaardiging | Geen |
Uitrusting
| Parking | Ja |
|---|---|
| Garage | Ja |
| Kelder | Ja |
| Zolder | Ja |
| Tuin | Ja |
| Terras | Ja |
| Gasaansluiting | Ja |
| Wateraansluiting | Ja |
| Elektriciteitsaansluiting | Ja |
| TV aansluiting | Ja |
| Telefoonaansluiting | Ja |
