Nieuw
Assistentie woning 1.8 Residentie Den Eik in Retie
€ 299.000
Overzicht
- 94 m² bewoonbaar
- 2 Slaapkamer(s)
Beschrijving
Interessant investeringspand in een rustige zijstraat nabij centrum Retie op de eerste verdieping.
Voor plannen en documenten www.immodelien.be.
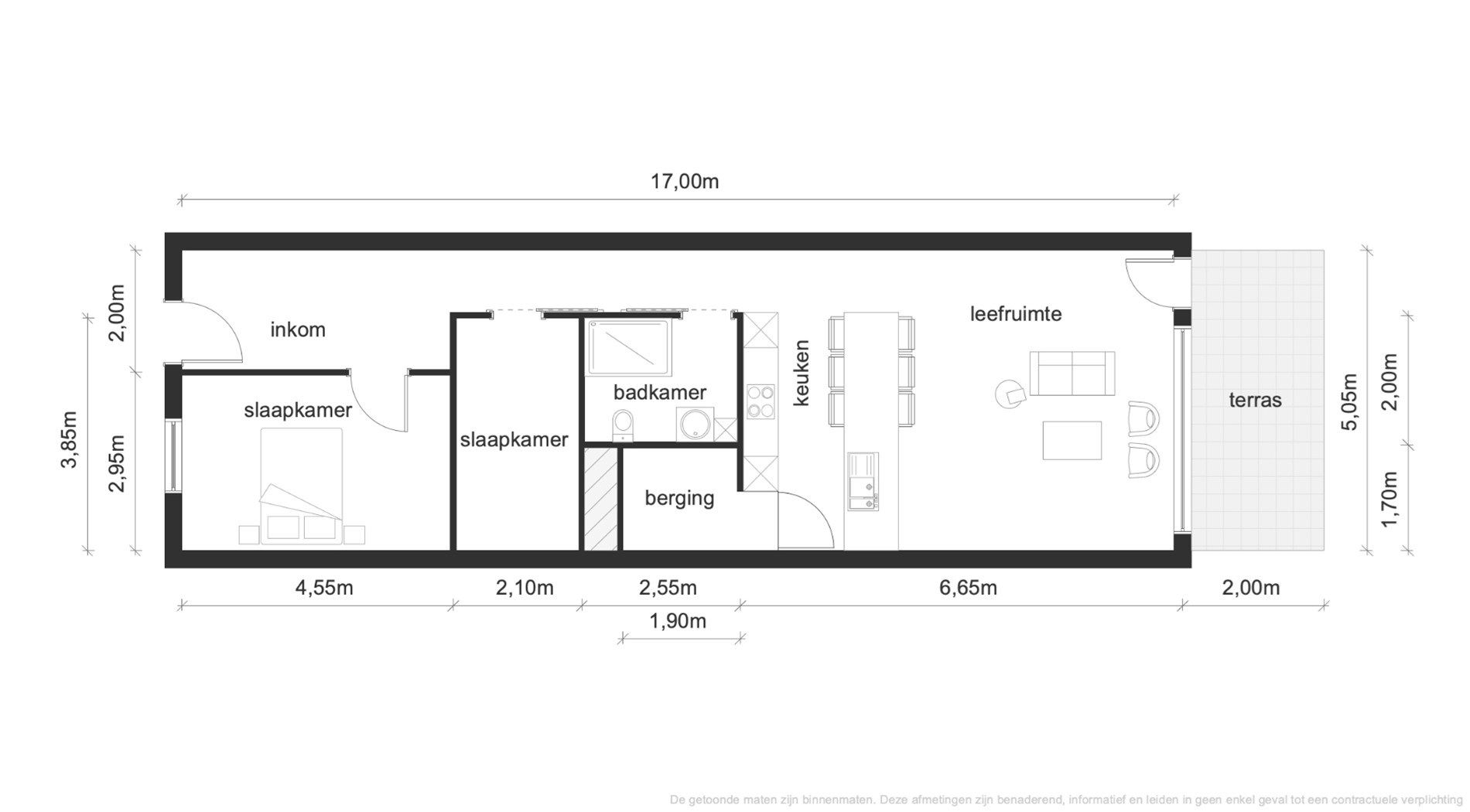
Deze energiezuinige assistentiewoning met EPC 69 met twee slaapkamers en ruim terras is rustig gelegen op wandelafstand van het centrum van Retie. Winkels, openbaar vervoer en dagelijkse voorzieningen zoals bakker, slager en supermarkt bevinden zich in de onmiddellijke nabijheid, wat de verhuurbaarheid sterk ondersteunt.
Het appartement (94m²) is vlot toegankelijk via lift of trap, beschikt over een aparte inkomdeur en maakt deel uit van Residentie Den Eik, waar bewoners en bezoekers gebruik kunnen maken van een aangename gemeenschappelijke ruimte.
De woonunit is afgewerkt met modern comfort en omvat een lichtrijke leefruimte met toegang tot een overdekt terras van 10 m², een ingerichte keuken, twee volwaardige slaapkamers, een badkamer met inloopdouche en een praktische wasplaats/berging.
Bij het appartement horen twee fietsenstaanplaatsen met oplaadpunt.
Een autostaanplaats parking 8 wordt aangeboden voor €20.000.
Belangrijk voor investeerders: rendement 3,15% (inclusief garage)
Het appartement is goed onderhouden, energiezuinig en momenteel verhuurd. De vaste diensten worden maandelijks betaald door de verkopers, wat de kostenstructuur voor de eigenaar overzichtelijk houdt. Deze eigendom is uitdrukkelijk bedoeld als investeringspand, met de mogelijkheid tot verdere verhuur of eigen bewoning op langere termijn (niet onmiddellijk beschikbaar voor eigen gebruik).
Assistentiewoningen binnen de residentie Den Eik zijn door de Vlaamse regering erkend.
De vaste diensten omvatten onder andere:
Oproepsysteem met permanentie
Begeleiding door een woonassistente
Organisatie van aanvullende zorg en diensten
Gebruik van gemeenschappelijke ruimtes
Videoparlofoon
Afvalbeheer
Onderhoud van gemene delen en tuin
Verzekeringen
Contact:
Voor meer informatie of een bezichtiging:
Rob Deliën – 0483 73 79 00 (telefonisch of via WhatsApp)
.
Voor plannen en documenten www.immodelien.be.
Deze energiezuinige assistentiewoning met EPC 69 met twee slaapkamers en ruim terras is rustig gelegen op wandelafstand van het centrum van Retie. Winkels, openbaar vervoer en dagelijkse voorzieningen zoals bakker, slager en supermarkt bevinden zich in de onmiddellijke nabijheid, wat de verhuurbaarheid sterk ondersteunt.
Het appartement (94m²) is vlot toegankelijk via lift of trap, beschikt over een aparte inkomdeur en maakt deel uit van Residentie Den Eik, waar bewoners en bezoekers gebruik kunnen maken van een aangename gemeenschappelijke ruimte.
De woonunit is afgewerkt met modern comfort en omvat een lichtrijke leefruimte met toegang tot een overdekt terras van 10 m², een ingerichte keuken, twee volwaardige slaapkamers, een badkamer met inloopdouche en een praktische wasplaats/berging.
Bij het appartement horen twee fietsenstaanplaatsen met oplaadpunt.
Een autostaanplaats parking 8 wordt aangeboden voor €20.000.
Belangrijk voor investeerders: rendement 3,15% (inclusief garage)
Het appartement is goed onderhouden, energiezuinig en momenteel verhuurd. De vaste diensten worden maandelijks betaald door de verkopers, wat de kostenstructuur voor de eigenaar overzichtelijk houdt. Deze eigendom is uitdrukkelijk bedoeld als investeringspand, met de mogelijkheid tot verdere verhuur of eigen bewoning op langere termijn (niet onmiddellijk beschikbaar voor eigen gebruik).
Assistentiewoningen binnen de residentie Den Eik zijn door de Vlaamse regering erkend.
De vaste diensten omvatten onder andere:
Oproepsysteem met permanentie
Begeleiding door een woonassistente
Organisatie van aanvullende zorg en diensten
Gebruik van gemeenschappelijke ruimtes
Videoparlofoon
Afvalbeheer
Onderhoud van gemene delen en tuin
Verzekeringen
Contact:
Voor meer informatie of een bezichtiging:
Rob Deliën – 0483 73 79 00 (telefonisch of via WhatsApp)
.
Energie
![]() |
- E-peil: E69
- Verwarming: Gas
- Beglazing: Onbekend
Op de kaart

Downloads
Financieel
| Prijs | |
|---|---|
| Kadastraal inkomen (niet geïndexeerd) | € 0 |
| Kadastraal inkomen (geïndexeerd) | € 0 |
Berekening kosten
Je aankoopkosten? Die heb je snel berekent via de knop hieronder.
Bijkomende info
Gebouw
| Bouwjaar | 2016 |
|---|---|
| Is beschermd | Nee |
| Bewoonbaar (m²) | 94 |
| Slaapkamers | 2 |
Faciliteiten
| Luiken | Nee |
|---|---|
| Brandstof primaire verwarming | Gas |
| Warm water type | Geen verwarming |
Perceel
| Overstromingsgevoelig | Geen |
|---|---|
| P-score | B |
| G-score | B |
| Voorkeurrecht | Ja |
Vergunning
| Vergunning | Vergunning beschikbaar |
|---|---|
| Verkavelingsvergunning | Vergunning beschikbaar |
| Type gebied | Stedelijk |
Uitrusting
| Meerdere eigenaars | Nee |
|---|---|
| Geschikt voor rolstoelgebruikers | Nee |
| Geschikt voor praktijk | Nee |
| Volledig onderkelderd | Nee |
| Parking | Nee |
| Garage | Ja |
| Thuiskantoor | Nee |
| Kelder | Ja |
| Zolder | Nee |
| Opslagruimte | Nee |
| Tuin | Nee |
| Terras | Ja |
| Lift | Nee |
| Rioolaansluiting | Nee |
| Gasaansluiting | Nee |
| Wateraansluiting | Nee |
| Elektriciteitsaansluiting | Nee |
| TV aansluiting | Nee |
| Internetaansluiting | Nee |
| Zonnepanelen | Nee |
| Zonneboiler | Nee |
| Alarm | Nee |
| Zwembad | Nee |
| Jacuzzi | Nee |
| Toonzaal | Nee |
| Ventilatie | Nee |
Appartementsblok
| Lift | Nee |
|---|---|
| Intercom | Nee |
Leer meer over vastgoed
24 November 2025
Uitgezocht voor jouw gemeente: Hoeveel stijgt de waarde van je woning door een renovatie?
22 October 2025
Hoeveel kan ik lenen om een huis te kopen?
11 June 2025
Huis kopen met bouwovertreding? Dit moet je weten
11 May 2025
