UNIEK APPARTEMENT (215M2!) MET VERANDA, TUIN, 4 SLPKS EN LIFT IN CENTRUM BALEN
€ 399.000
Een pand van Het Vastgoedkantoor
Jouw zoektocht
Overzicht
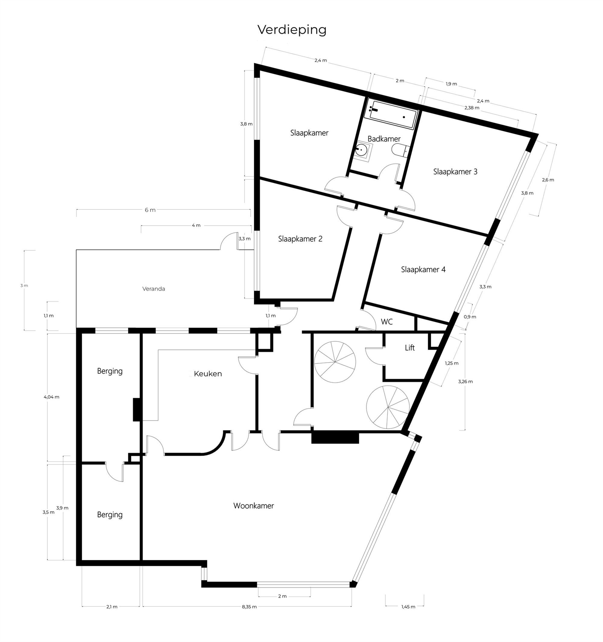
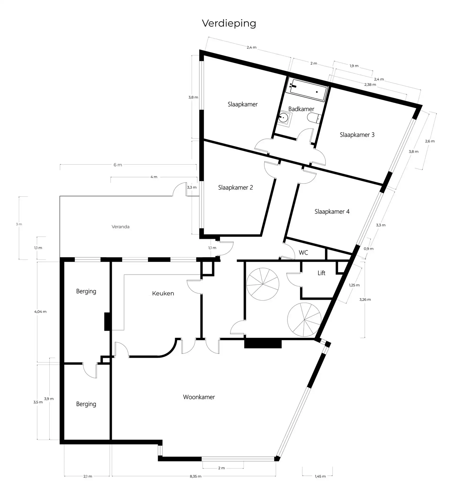
- 295 m² bewoonbaar
- 392 m² grond
- 4 Slaapkamer(s)
- 2 Badkamer(s)
Beschrijving
Uniek appartement (295m2!) met veranda, tuin, 4 slpks en lift in centrum Balen.
Belangrijkste troeven:
- Kwalitatieve materialen en volledig instapklaar
- Zeer ruim (295m2!) met praktische indeling en zeer mooie ruimtes
- Ruime woonkamer met prachtige lichtinval en zichten
- Lift aanwezig dus geen trappen nodig!
- Dubbele inpandige garage en ruime kelderberging in de prijs inbegrepen
- Veranda, privétuin
- Geen renovatieplicht
- Centrale ligging
Bekijk zeker ook onze grondplannen met afmetingen. Zo krijgt u van thuis uit al een perfect beeld van wat deze woning te bieden heeft!
Wenst u meer info of een vrijblijvende bezichtiging, contacteer dan ons kantoor op het nummer 014 39 99 99 en wij helpen u graag verder!
Energie
![]() |
- EPC Certificaat: 0003026029-RES-1
- Energieverbruik: 233 kWh/m²/jaar
- E-peil: E0
- Verwarming: Gas
- Beglazing: Standaard dubbel
Op de kaart

Virtual tour
Ontdek het hele pand alvorens je bezoek via de virtuele tour, werkelijkheid gemaakt door Walkly. Geen verassingen tijdens het bezoek!
Beleef de virtuele tourFinancieel
| Prijs | |
|---|---|
| Kadastraal inkomen (niet geïndexeerd) | € 0 |
| Kadastraal inkomen (geïndexeerd) | € 0 |
Berekening kosten
Je aankoopkosten? Die heb je snel berekend via de knop hieronder.
Bijkomende info
Gebouw
| Bouwjaar | 1971 |
|---|---|
| Bouwcertificaat | Nee |
| Bewoonbaar (m²) | 295 |
| Verdieping | 0 |
| Badkamers | 2 |
| Slaapkamers | 4 |
| Verdiepingen | 0 |
| Garages | 0 |
| Parkeerplaatsen | 2 |
| Doucheruimtes | 0 |
| Toiletten | 0 |
Faciliteiten
| Materiaal ramenomlijstingen | Aluminium |
|---|---|
| Beglazing | Standaard dubbel |
| Brandstof primaire verwarming | Gas |
| Elektrisch keuringsattest | Nee |
Perceel
| Overstromingsgevoelig | Geen |
|---|---|
| Voorkeurrecht | Nee |
| Totale oppervlakte (m²) | 392 |
| Bebouwde oppervlakte (m²) | 0 |
| Tuin oppervlakte (m²) | 0 |
| Oppervlakte terras (m²) | 0 |
| Oriëntatie tuin | Zuid |
Vergunning
| Vergunning | Geen beschikbaar |
|---|---|
| Verkavelingsvergunning | Geen beschikbaar |
Uitrusting
| Investeringspand | Nee |
|---|---|
| Geschikt voor praktijk | Nee |
| Parking | Ja |
| Garage | Nee |
| Thuiskantoor | Nee |
| Kelder | Ja |
| Zolder | Nee |
| Tuin | Nee |
| Terras | Nee |
| Lift | Ja |
| Rioolaansluiting | Nee |
| Gasaansluiting | Nee |
| Wateraansluiting | Nee |
| Elektriciteitsaansluiting | Nee |
| TV aansluiting | Nee |
| Internetaansluiting | Nee |
| Telefoonaansluiting | Nee |
Appartementsblok
| Lift | Ja |
|---|
