ENERGIEZUINIGE, KWALITATIEVE NIEUWBOUWWONING TE BALEN VERKOOP ONDER REGISTRATIE
€ 495.000
Een pand van Het Vastgoedkantoor
Overzicht
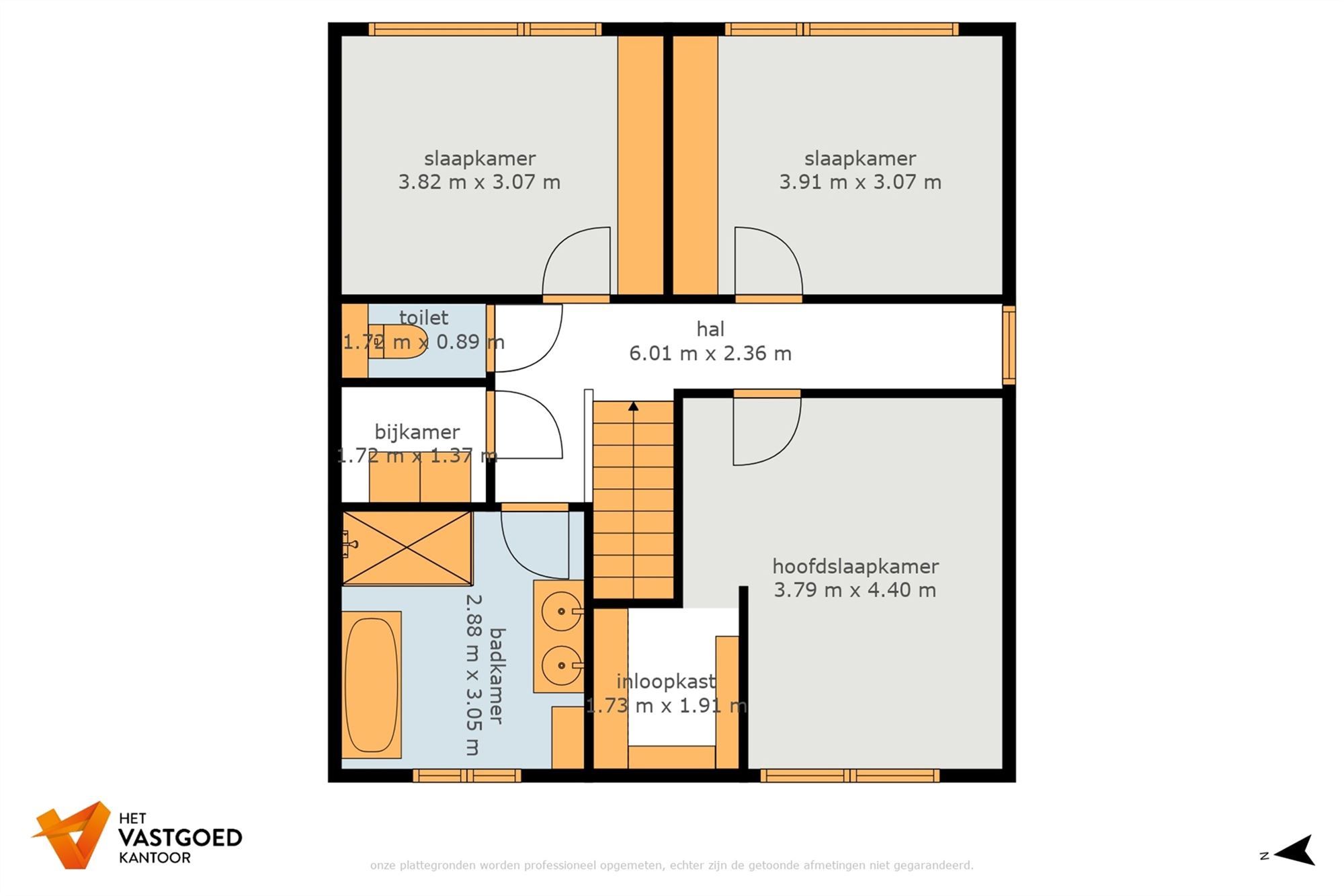
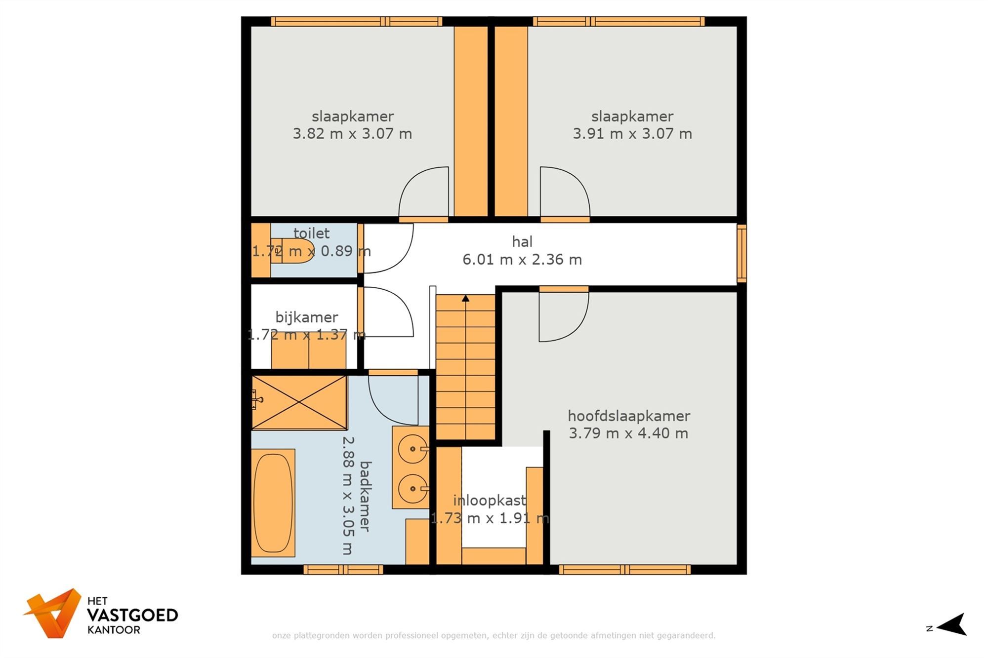
- 172 m² bewoonbaar
- 3 Slaapkamer(s)
- 1 Badkamer(s)
- 1 Garage(s)
Beschrijving
Energiezuinige, kwalitatieve nieuwbouwwoning, 2% registratie!
Belangrijkste troeven:
- Nieuwbouwwoning met de beste materialen en technieken
- Vloerverwarming + koeling via warmtepomp, ook op slaapkamers
- Prachtige keuken met Siemens inbouwtoestellen en knap eiland
- Prachtige badkamer met inloopdouche, ligbad en dubbel wasmeubel
- Omheind perceel van 529m² met ruim terras, grote carport, tuinberging en extra tuinhuis
- Rustige, kindvriendelijke ligging in doodlopende straat vlakbij natuurdomein De Keiheuvel
- Extra's: domotica, camera's, ...
- Verkoop onder registratie mogelijk!
Bekijk zeker ook de 3D virtuele rondleiding en de grondplannen met de afmetingen. Zo krijgt u van thuis uit al een perfect beeld van wat deze woning te bieden heeft!
Wenst u meer info of een vrijblijvende bezichtiging, contacteer dan ons kantoor op het nummer 014 39 99 99 en wij helpen u graag verder.
Energie
![]() |
- Energieverbruik: 15 kWh/m²/jaar
- E-peil: E8
- Beglazing: Standaard dubbel
Op de kaart

Financieel
| Prijs | |
|---|---|
| Kadastraal inkomen (niet geïndexeerd) | € 981 |
| Kadastraal inkomen (geïndexeerd) | € 0 |
Berekening kosten
Je aankoopkosten? Die heb je snel berekent via de knop hieronder.
Bijkomende info
Gebouw
| Bouwjaar | 2024 |
|---|---|
| Bouwcertificaat | Nee |
| Bewoonbaar (m²) | 172 |
| Verdieping | 0 |
| Badkamers | 1 |
| Slaapkamers | 3 |
| Verdiepingen | 0 |
| Garages | 1 |
| Parkeerplaatsen | 1 |
| Doucheruimtes | 0 |
| Toiletten | 0 |
Faciliteiten
| Materiaal ramenomlijstingen | Aluminium |
|---|---|
| Beglazing | Standaard dubbel |
| Elektrisch keuringsattest | Ja |
Perceel
| Overstromingsgevoelig | Geen |
|---|---|
| P-score | A |
| G-score | A |
| Voorkeurrecht | Nee |
| Bebouwde oppervlakte (m²) | 0 |
| Tuin oppervlakte (m²) | 0 |
| Oppervlakte terras (m²) | 0 |
Vergunning
| Vergunning | Vergunning beschikbaar |
|---|---|
| Verkavelingsvergunning | Vergunning beschikbaar |
Uitrusting
| Investeringspand | Nee |
|---|---|
| Geschikt voor praktijk | Nee |
| Parking | Ja |
| Garage | Ja |
| Thuiskantoor | Nee |
| Kelder | Nee |
| Zolder | Nee |
| Tuin | Nee |
| Terras | Nee |
| Lift | Nee |
| Rioolaansluiting | Nee |
| Gasaansluiting | Nee |
| Wateraansluiting | Nee |
| Elektriciteitsaansluiting | Nee |
| TV aansluiting | Nee |
| Internetaansluiting | Nee |
| Telefoonaansluiting | Nee |
