TWEEWOONST OP FANTASTISCH ZUIDGERICHT PERCEEL VAN 3019 M2
€ 349.000
Een pand van Het Vastgoedkantoor
Overzicht
- 318 m² bewoonbaar
- 3019 m² grond
- 4 Slaapkamer(s)
- 2 Badkamer(s)
- 1 Tuin
- 1 Garage(s)
Beschrijving
Tweewoonst op fantastisch zuidgericht perceel van 3019m2
Belangrijkste troeven:
- Beide woningen hebben 2 slaapkamers
- Mogelijkheid tot extra kamers
- Optie om volledig zelf te wonen door woningen samen te voegen tot 1 zeer ruime woning
- Andere optie is zelf bewonen en andere woning verhuren
- Ook mogelijk om beide woningen te verhuren als opbrengsteigendom
- Fantastisch perceel van 3019m2
- Zuidelijk georiënteerd en voorzien van garage, werkhuis en schuur
- Ideale ligging nabij natuurdomein de Keiheuvel en de Most
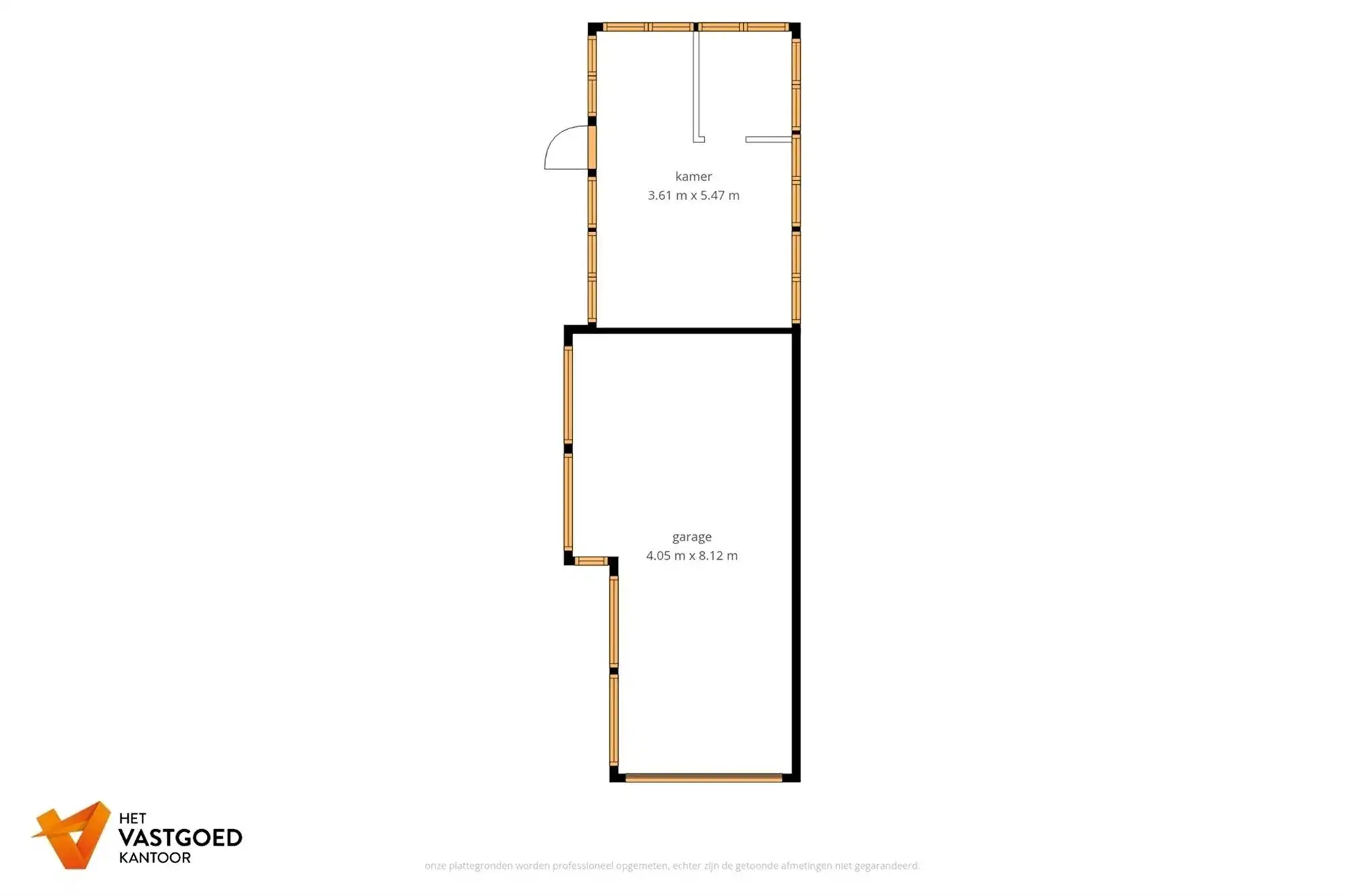
Bekijk zeker ook de grondplannen met de afmetingen. Zo krijgt u van thuis uit al een perfect beeld van wat deze woning te bieden heeft!
Energie
![]() |
- EPC Certificaat: 20250520-0003606245-RES-1
- Energieverbruik: 496 kWh/m²/jaar
- E-peil: E0
- Beglazing: Standaard dubbel
Extra budget nodig voor je renovatie?

Op de kaart

Financieel
| Prijs | |
|---|---|
| Kadastraal inkomen (niet geïndexeerd) | € 0 |
| Kadastraal inkomen (geïndexeerd) | € 0 |
Berekening kosten
Je aankoopkosten? Die heb je snel berekent via de knop hieronder.
Bijkomende info
Gebouw
| Bouwjaar | 1960 |
|---|---|
| Staat | Goed onderhouden |
| Bouwcertificaat | Nee |
| Bewoonbaar (m²) | 318 |
| Verdieping | 2 |
| Badkamers | 2 |
| Slaapkamers | 4 |
| Verdiepingen | 0 |
| Garages | 1 |
| Parkeerplaatsen | 0 |
| Doucheruimtes | 0 |
| Toiletten | 0 |
Faciliteiten
| Beglazing | Standaard dubbel |
|---|---|
| Elektrisch keuringsattest | Ja |
Perceel
| Overstromingsgevoelig | Geen |
|---|---|
| Voorkeurrecht | Ja |
| Totale oppervlakte (m²) | 3019 |
| Bebouwde oppervlakte (m²) | 0 |
| Tuin oppervlakte (m²) | 0 |
| Oppervlakte terras (m²) | 0 |
| Oriëntatie tuin | Zuid |
Vergunning
| Vergunning | Aanvraag ingediend |
|---|---|
| Verkavelingsvergunning | Aanvraag ingediend |
Uitrusting
| Investeringspand | Nee |
|---|---|
| Geschikt voor praktijk | Nee |
| Parking | Nee |
| Garage | Ja |
| Thuiskantoor | Nee |
| Kelder | Ja |
| Zolder | Ja |
| Tuin | Ja |
| Terras | Ja |
| Lift | Nee |
| Rioolaansluiting | Ja |
| Gasaansluiting | Ja |
| Wateraansluiting | Ja |
| Elektriciteitsaansluiting | Ja |
| TV aansluiting | Ja |
| Internetaansluiting | Ja |
| Telefoonaansluiting | Ja |



