GERENOVEERDE INSTAPKLARE WONING OP 1726M2 TEGEN NATUURGEBIED!
€ 359.000
Een pand van Het Vastgoedkantoor
Overzicht
- 168 m² bewoonbaar
- 1726 m² grond
- 3 Slaapkamer(s)
- 1 Badkamer(s)
- 1 Garage(s)
Beschrijving
Gerenoveerde, instapklare woning op 1726m2 tegen natuurgebied!
Belangrijkste troeven:
- Perfect instapklaar
- Reeds gerenoveerd: keuken, dak, elektriciteit, verwarming,…
- Praktische indeling met mooie ruimtes
- Gelegen op een zuidgericht perceel van 1726m2 tegen natuurgebied achteraan!
- Ruime vrijstaande garage en gezellige, nieuwe chalet met overdekt terras
- Kelder aanwezig, rolluiken…
- Elektriciteit conform, geen renovatieplicht, asbestveilig!
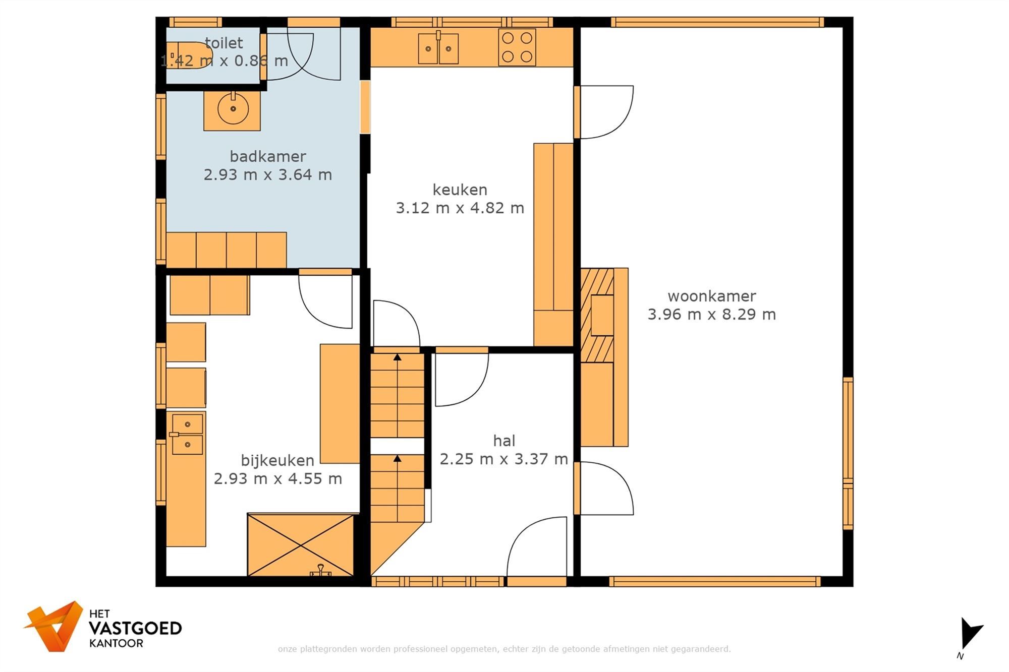
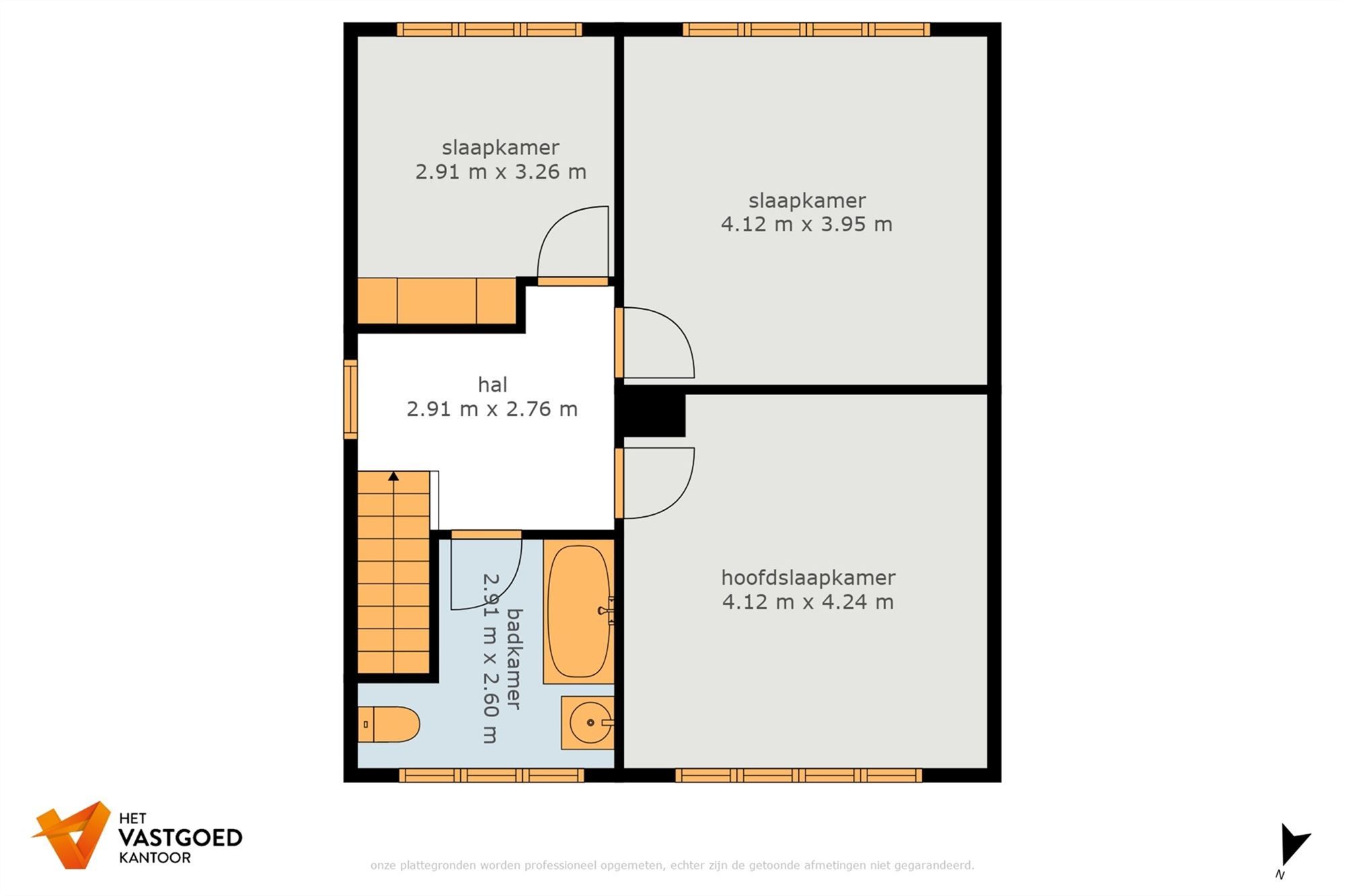
Bekijk zeker ook de grondplannen met de afmetingen. Zo krijgt u van thuis uit al een perfect beeld van wat deze woning te bieden heeft!
Wenst u meer info of een vrijblijvende bezichtiging, contacteer dan ons kantoor op het nummer 014 39 99 99 en wij helpen u graag verder!
Energie
![]() |
- EPC Certificaat: 20250831-0003675133-Res-1
- Energieverbruik: 380 kWh/m²/jaar
- E-peil: E0
- Beglazing: Standaard dubbel
Extra budget nodig voor je renovatie?

Op de kaart

Financieel
Prijs | |
---|---|
Kadastraal inkomen (niet geïndexeerd) | € 0 |
Kadastraal inkomen (geïndexeerd) | € 0 |
Berekening kosten
Je aankoopkosten? Die heb je snel berekent via de knop hieronder.
Bijkomende info
Gebouw
Bouwjaar | 1966 |
---|---|
Bouwcertificaat | Nee |
Bewoonbaar (m²) | 168 |
Verdieping | 1 |
Badkamers | 1 |
Slaapkamers | 3 |
Verdiepingen | 0 |
Garages | 1 |
Parkeerplaatsen | 0 |
Doucheruimtes | 0 |
Toiletten | 0 |
Faciliteiten
Materiaal ramenomlijstingen | PVC |
---|---|
Beglazing | Standaard dubbel |
Elektrisch keuringsattest | Ja |
Perceel
Overstromingsgevoelig | Geen |
---|---|
Voorkeurrecht | Ja |
Totale oppervlakte (m²) | 1726 |
Bebouwde oppervlakte (m²) | 0 |
Tuin oppervlakte (m²) | 0 |
Oppervlakte terras (m²) | 0 |
Vergunning
Vergunning | Aanvraag ingediend |
---|---|
Verkavelingsvergunning | Aanvraag ingediend |
Uitrusting
Investeringspand | Nee |
---|---|
Geschikt voor praktijk | Nee |
Parking | Nee |
Garage | Ja |
Thuiskantoor | Nee |
Kelder | Ja |
Zolder | Nee |
Tuin | Nee |
Terras | Nee |
Lift | Nee |
Rioolaansluiting | Nee |
Gasaansluiting | Nee |
Wateraansluiting | Nee |
Elektriciteitsaansluiting | Nee |
TV aansluiting | Nee |
Internetaansluiting | Nee |
Telefoonaansluiting | Nee |